Remax Monarcha

Prodej rodinného domu, Tršice, 173 m2

Tršice

8 500 000 Kč
/za nemovitost
Hypotéka od 37 990 Kč /měs. Chci hypotéku

Parametry domu

AdresaTršice
ID373/25
StavbaCihlová
Stav objektuVe výstavbě
Typ objektuPatrový
Druh objektuRohový
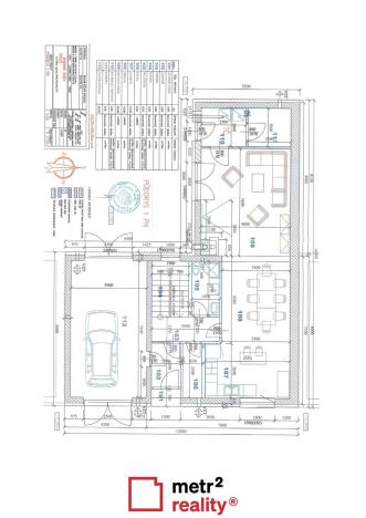
Užitná plocha173 m2
Podlahová plocha201 m2
Plocha pozemku214 m2
Třída energetické náročnostiB - Velmi úsporná
Ukazatel energetické náročnosti65.8 kWh/m2 za rok
Garáž

Origo partneři v Tršicích

Popis

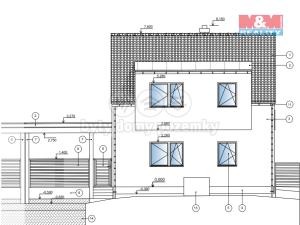
Ve výhradním zastoupení majitele si Vám dovolujeme nabídnout k prodeji novostavbu krajního řadového domu v obci Tršice, která je vzdálená 16 km od Olomouce. Dům je nyní ve výstavbě a termín dokončení je naplánovaný do konce roku 2025. Jedná se o dvoupodlažní zděný dům o dispozici 5+kk s garáží, užitná plocha domu činí krásných 173 m2 + garáž 28 m2. K domu náleží pozemek o výměře 214 m2. V přízemí se nachází vstupní chodba, ze které se vchází do koupelny s WC, kuchyně s jídelnou, obývacího pokoje, komory a garáže, v patře jsou pak čtyři samostatné ložnice, velká šatna a druhá koupelna s WC. Z obývacího pokoje se francouzským oknem dostanete na oplocený dvůr, který nabízí maximální soukromí na odpočinek. Dům bude napojen na veškeré inženýrské sítě – vodovod, kanalizace, elektřina. Vytápění bude zajišťovat tepelné čerpadlo voda – vzduch, v přízemí bude podlahové vytápění, v patře pak radiátory. Dům bude dokončen ve vysokém standardu, vyjma kuchyňské linky. Dům má sedlovou střechu, krytina poplastovaný plech, okna jsou plastová s trojskly. V interiéru budou laminátové podlahy v kombinaci s dlažbou, obložkové dýhované dveře, schodiště do patra bude monolitické s dřevěným obložením z dubového masivu. Obec Tršice nabízí svým obyvatelům veškerou občanskou vybavenost, nachází se zde mateřská i základní škola, zdravotní středisko, sportovní zařízení s tenisovými kurty, obchod aj. Velkou výhodou je velmi dobrá dopravní dostupnost do Olomouce i Přerova. V případě zájmu o bližší informace či prohlídku nás neváhejte kontaktovat.

Makléř

Máte zájem o tento dům?

Tímto, v souladu s nařízením Evropského parlamentu a Rady (EU) 2016/679, v platném znění, prohlašuji, že mi je alespoň 16 let a uděluji tak svůj souhlas se zpracováním zadaných údajů (jméno, telefon, e-mail, ip adresa) společnosti B3 Technology, s.r.o., IČ: 07330600, se sídlem Novostavby 126/23, 435 11 Lom (správce dat), za účelem předání dotazu z tohoto formuláře Vámi vybranému inzerentovi a zpětného kontaktování mé osoby. Osobní údaje bude správce zpracovávat manuálně i automaticky přímo prostřednictvím svých zaměstnanců. Informace předané tímto formulářem budou uloženy v databázi správce maximálně po dobu 10 let. Odvolání souhlasu s uložením a zpracováním poskytnutých dat lze e-mailem na info@origo-reality.cz. V případě podezření na neoprávněné použití Vámi poskytnutých údajů máte právo předat podnět k šetření Úřadu pro ochranu osobních údajů. Více informací
Chystáte se prodat nemovitost?
Pomůžeme Vám!

Přihlášení k odběru

Nenechte si ujít nejnovější nabídky prodeje rodinných domů v Tršicích.