Prodej bytu 3+kk, Praha, Tetauerova, 114 m2 (ID: 1770552)

Tetauerova, Praha 3

18 200 000 Kč
/za nemovitost
Hypotéka od 81 343 Kč /měs. Chci hypotéku

Parametry bytu

AdresaTetauerova, Praha 3
ID1369
StavbaSkeletová
Stav objektuNovostavba
Patro3. z 3
VybavenoNe
Lokalita objektuKlidná část obce
VlastnictvíOsobní
Užitná plocha114 m2
Podlahová plocha114 m2
Třída energetické náročnostiB - Velmi úsporná
Elektřina230V
OdpadVeřejná kanalizace
KomunikaceAsfaltová
TelekomunikaceTelefon, Internet, Satelit, Kabelová televize, Kabelové rozvody, Ostatní
DopravaVlak, Silnice, MHD, Autobus
VodaVodovod
Balkon
Garáž
Sklep
Lodžie
Výtah
Bezbarierový přístup

Origo partneři v Praze 3

Stěhovací služby

Výkup a prodej starého nábytku

Popis

V žádané lokalitě Prahy 3 nabízíme k prodeji prostorný byt 3+kk v nově vzniklém rezidenčním komplexu, který je umístěn v nejvyšším patře a je ze dvou stran obklopen nosnými zdmi. Tento luxusní byt se nachází v unikátním projektu, který přetváří část Žižkova na moderní městskou lokalitu s rozsáhlými zelenými plochami a kompletní infrastrukturou. Byt nabízí komfortní bydlení s vynikající dopravní dostupností a kompletní občanskou vybaveností v okolí.

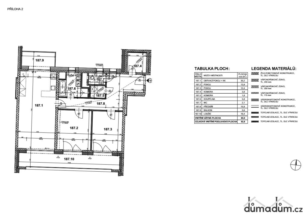
Celková plocha bytu včetně lodžie a balkonu, avšak bez sklepa a garážového stání, činí 93 m². Interiér bytu dominuje prostorný obývací pokoj s kuchyňským koutem (30 m²) a velkou lodžii (16 m²) orientovanou na jih, která rozšiřuje obytný prostor a je ideální k odpočinku. Obývací pokoj disponuje také balkonem (6 m²) na severní straně s výhledem do vnitrobloku rezidence, což umožňuje příjemnou cirkulaci vzduchu a nabízí alternativní venkovní prostor. Dvě samostatné ložnice (14 m² a 12 m²) poskytují dostatek soukromí pro všechny členy rodiny. Koupelna s WC (6 m²) a samostatné WC jsou navrženy s důrazem na funkčnost a estetiku, obě místnosti jsou vybaveny okny. Praktické dvě komory nabízejí dostatečný úložný prostor.

K bytu náleží sklepní kóje a parkovací stání v podzemní garáži.

Byt je vybaven nadstandardními prvky pro maximální komfort bydlení. Systém řízeného větrání s rekuperací tepla zajišťuje zdravé vnitřní prostředí a úsporu energií. Klimatizace poskytuje příjemné prostředí v horkých letních dnech. Sofistikovaný systém podlahového vytápění přináší optimální teplotní komfort v každém koutě bytu. Předokenní žaluzie a kvalitní okna s trojskly zaručují optimální tepelnou a zvukovou izolaci. Na lodžii a balkonu je položena mrazuvzdorná keramická dlažba.
Byt se nachází v rezidenci se zvláštním důrazem na ekologii a pohodlí. Zelené střechy, retenční nádrže na dešťovou vodu a parkové úpravy s vodními prvky přispívají k příjemnému mikroklimatu. Součástí projektu je také výstavba nové mateřské školy a vytvoření rozsáhlého parku, který poskytne ideální prostor pro relaxaci a aktivní odpočinek.

Lokalita nabízí vynikající dopravní dostupnost - pouhých 5 minut chůze ke stanici metra Želivského a plánovanou novou tramvajovou trať přímo v srdci čtvrti. V okolí se nachází kompletní občanská vybavenost včetně škol, zdravotnických zařízení, obchodů a restaurací. Díky své poloze v širším centru Prahy, nadstandardnímu vybavení a promyšlenému urbanistickému řešení celé čtvrti je tento byt ideální volbou pro náročné zájemce o kvalitní bydlení.

Energetická třída PENB B — velmi úsporná.

ID: 1369

Makléř

Máte zájem o tento byt?

Tímto, v souladu s nařízením Evropského parlamentu a Rady (EU) 2016/679, v platném znění, prohlašuji, že mi je alespoň 16 let a uděluji tak svůj souhlas se zpracováním zadaných údajů (jméno, telefon, e-mail, ip adresa) společnosti B3 Technology, s.r.o., IČ: 07330600, se sídlem Novostavby 126/23, 435 11 Lom (správce dat), za účelem předání dotazu z tohoto formuláře Vámi vybranému inzerentovi a zpětného kontaktování mé osoby. Osobní údaje bude správce zpracovávat manuálně i automaticky přímo prostřednictvím svých zaměstnanců. Informace předané tímto formulářem budou uloženy v databázi správce maximálně po dobu 10 let. Odvolání souhlasu s uložením a zpracováním poskytnutých dat lze e-mailem na info@origo-reality.cz. V případě podezření na neoprávněné použití Vámi poskytnutých údajů máte právo předat podnět k šetření Úřadu pro ochranu osobních údajů. Více informací
Chystáte se prodat nemovitost?
Pomůžeme Vám!

Přihlášení k odběru

Nenechte si ujít nejnovější nabídky prodeje bytů 3+kk v Praze 3.