Prodej rodinného domu, Březinky, 65 m2
Březinky
/za nemovitost
cena vč. právních služeb a provize RK
Parametry domu
| Adresa | Březinky | 
|---|---|
| ID | 160-NP02744 | 
| Stavba | Cihlová | 
| Stav objektu | Po rekonstrukci | 
| Typ objektu | Patrový | 
| Druh objektu | Samostatný | 
| Lokalita objektu | Klidná část obce | 
| Užitná plocha | 65 m2 | 
| Zastavěná plocha | 53 m2 | 
| Plocha pozemku | 76 m2 | 
| Třída energetické náročnosti | D - Méně úsporná | 
| Elektřina | 230V | 
| Odpad | Septik, Jímka | 
| Komunikace | Asfaltová | 
| Doprava | Silnice, Autobus | 
| Voda | Vodovod | 
| Převod do OV | |
| Parkování | 
Popis
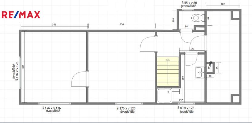
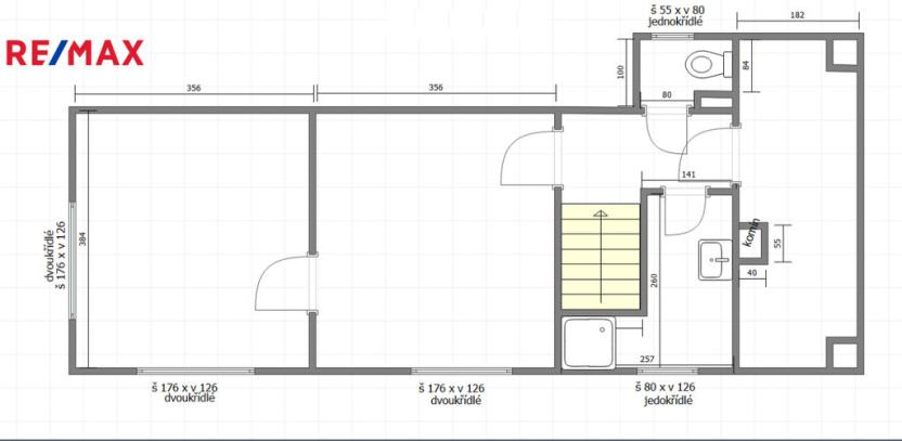
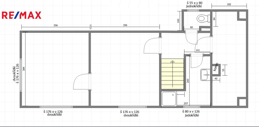
Nabízíme k prodeji tento hezký dvoupodlažní rodinný dům umístěný v klidné obci Březinky. Dům s dobrou dopravní dostupností (Moravská Třebová 18 km, Mohelnice 20 km, Litovel 25 km) je obklopený okolní zástavbou rodinných domů a přírodou. V domě s dispozicí 3+kk naleznete v přízemí obývací místnost s kuchyňským koutem (21 m²), technickou místnost s el. bojlerem (3,2 m²), WC s prostorem pro pračku (4,2 m²). V 2.NP je průchozí místnost (13,5 m²), neprůchozí místnost (13,5 m²), koupelna (4,2 m²) WC (1 m²) a zastřešená terasa (6,8 m²). Dům má především jižní orientaci.
Dům, po celkové rekonstrukci z roku 2024, je napojen na obecní vodovod a elektřinu, odpady jsou svedeny do septiku. V celém domě jsou plastová okna. Jedná se o cihlový dům s dřevěnými trámovými stropy. Střecha je sedlová s plechovou pokrývkou. Ohřev tepla je zajištěn tepelným čerpadlem vzduch-voda a ohřev vody el. bojlerem. Podlaha v přízemí je pokryta dlažbou; v 2.NP je laminátová (mimo koupelnu a WC, kde je dlažba). Vnitřní omítky jsou štukové. Zajistíme Vám financování koupě této nemovitosti – bezplatná konzultace s našim finančním poradcem. Bližší informace u makléře nabídky.
Přihlášení k odběru
Nenechte si ujít nejnovější nabídky prodeje rodinných domů v Březinkách.
 
                                                                                     
                                                                                     
                                                                                     
                                                                                     
                                                                                     
                                                                                     
                                                                                     
                                                                                     
                                                                                     
                                                                                     
                                                                                     
                                                                                     
                                                                                     
                                                                                     
                                                                                     
                                                                                     
                                                                                     
                                                                                     
                                                                                     
                                                                                     
                                                                                     
                                                                                     
                                                                                     
                                                                                     
                                                                                     
                                                                                     
                                                                                     
                                                                                     
                                                                                     
                                                                                     
                         
         
         
         
         
         
        