Prodej bytu 3+kk, Praha - Uhříněves, Bečovská, 59 m2

Bečovská, Praha, Uhříněves

10 780 000 Kč
/za nemovitost
Hypotéka od 48 180 Kč /měs. Chci hypotéku

Parametry bytu

AdresaBečovská, Praha, Uhříněves
ID00004-3
StavbaSmíšená
Stav objektuNovostavba
Patro3. z 4
VybavenoNe
Druh objektuSamostatný
Lokalita objektuCentrum obce
VlastnictvíOsobní
Užitná plocha59 m2
Třída energetické náročnostiA - Mimořádně úsporná
Ukazatel energetické náročnosti51 kWh/m2 za rok
Balkon
Sklep
Výtah

Origo partneři v Praze 10

Stěhovací služby

Výkup a prodej starého nábytku

Popis

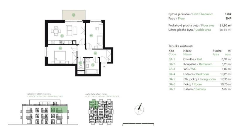
Nabízíme byt 3+kk o velikosti 61,9 m2 s balkonem 5,87 m2 v 3. nadzemním podlaží rezidenčního projektu Ecovilla v pražské Uhříněvsi. Byt je orientovaný na západ, což zajišťuje dostatek odpoledního a večerního světla.

Dispozice bytu zahrnuje vstupní chodbu (8,37 m2), koupelnu (5,23 m2), samostatné WC, hlavní ložnici (13,25 m2), druhý pokoj (10,76 m2) a obývací pokoj s kuchyňským koutem (19,36 m2). K bytu náleží příjemný balkon o ploše téměř 6 m2 s výhledem na západ.

Ecovilla Uhříněves je moderní, ekologicky orientovaný projekt s důrazem na kvalitu života a úsporné technologie. Samozřejmostí jsou chytrá centrální rekuperace, trojskla s venkovními žaluziemi, podlahové vytápění, systém smart home a kvalitní vinylové podlahy. U vybraných parkovacích stání je k dispozici příprava na dobíjecí stanici pro elektromobil.

Projekt se nachází v klidné a zelené lokalitě Uhříněves s výbornou dostupností do centra Prahy – 20 minut vlakem na Hlavní nádraží, 13 minut autem na metro Chodov. Přímo v místě je kompletní občanská vybavenost a sportovní i rekreační možnosti, například v nedaleké oboře Uhříněves.

Byt je ideální volbou pro pár, mladou rodinu či jako investice k pronájmu.

Pro více informací nebo termín osobní prohlídky nás neváhejte kontaktovat.

Makléř

Máte zájem o tento byt?

Tímto, v souladu s nařízením Evropského parlamentu a Rady (EU) 2016/679, v platném znění, prohlašuji, že mi je alespoň 16 let a uděluji tak svůj souhlas se zpracováním zadaných údajů (jméno, telefon, e-mail, ip adresa) společnosti B3 Technology, s.r.o., IČ: 07330600, se sídlem Novostavby 126/23, 435 11 Lom (správce dat), za účelem předání dotazu z tohoto formuláře Vámi vybranému inzerentovi a zpětného kontaktování mé osoby. Osobní údaje bude správce zpracovávat manuálně i automaticky přímo prostřednictvím svých zaměstnanců. Informace předané tímto formulářem budou uloženy v databázi správce maximálně po dobu 10 let. Odvolání souhlasu s uložením a zpracováním poskytnutých dat lze e-mailem na info@origo-reality.cz. V případě podezření na neoprávněné použití Vámi poskytnutých údajů máte právo předat podnět k šetření Úřadu pro ochranu osobních údajů. Více informací
Chystáte se prodat nemovitost?
Pomůžeme Vám!

Přihlášení k odběru

Nenechte si ujít nejnovější nabídky prodeje bytů 3+kk v Praze 10.