Prodej bytu 1+kk, Čelákovice, Dělnická, 34 m2 (ID: 1752178)
Dělnická, Čelákovice
/za nemovitost
včetně DPH, včetně provize, včetně právního servisu
Parametry bytu
| Adresa | Dělnická, Čelákovice | 
|---|---|
| ID | Del.8 | 
| Stavba | Smíšená | 
| Stav objektu | Po rekonstrukci | 
| Patro | 2. z 3 | 
| Vybaveno | Ne | 
| Lokalita objektu | Klidná část obce | 
| Vlastnictví | Osobní | 
| Užitná plocha | 34 m2 | 
| Třída energetické náročnosti | C - Úsporná | 
| Ukazatel energetické náročnosti | 1232 kWh/m2 za rok | 
| Elektřina | 230V | 
| Plyn | Individuální | 
| Odpad | Veřejná kanalizace | 
| Komunikace | Dlážděná, Asfaltová | 
| Telekomunikace | Telefon, Internet | 
| Doprava | Vlak, Silnice, MHD, Autobus | 
| Voda | Vodovod | 
| Převod do OV | 
Popis
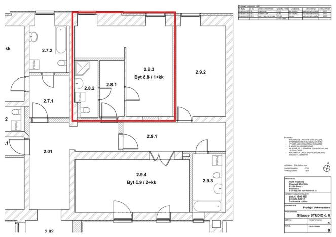
Nabízíme Vám studio 1+kk o velikosti 33,6 m2 ve zrekonstruované prvorepublikové vile v Čelákovicích. Praktické studio, které se může proměnit v útulnou kancelář nebo důmyslný startovací prostor pro mladé, se nachází ve 2. nadzemním podlaží. Ze vstupní chodby se vstupuje do obytné místnosti ve tvaru "L" se dvěma okny a velké koupelny se sprchovým koutem, WC a dostatečným prostorem pro pračku. 
Bytový dům Dělnická 12 je situován do klidné vilové čtvrti ve východní části Čelákovic v dochozí vzdálenosti 5 min od nádraží. Nabízí celkem 11 bytových jednotek umístěných ve třech nadzemních podlažích. Původně prvorepubliková vila byla citlivě rekonstruována tak, aby nabídla novým majitelům komfort moderního bydlení při zachování historických prvků původní vily. Ke každému z bytů lze koupit parkovací stání na vlastním pozemku.
Čelákovice jsou atraktivní lokalita pro bydlení, podnikání i aktivní odpočinek, rozkládají se u Labe asi 27 km severovýchodním směrem od Prahy. Naleznete zde veškerou občanskou vybavenost. Nabízí nadstandardní volnočasové vyžití s řadou cyklostezek, dětských hřišť, má krásné historické centrum, ve kterém najdete spoustu možností kulturního a společenského vyžití. V červnu 2023 byla na Labi dokončena realizace přístaviště pro malá vodní plavidla.
V případě zájmu nás neváhejte kontaktovat. Více informací najdete na webu projektu Bytový dům Dělnická 12. Prodej přímo od developera.
Přihlášení k odběru
Nenechte si ujít nejnovější nabídky prodeje bytů 1+kk v Čelákovicích.
 
                                                                                     
                                                                                     
                                                                                     
                                                                                     
                                                                                     
                                                                                     
                                                                                     
                         
         
         
         
         
         
         
        