Prodej chalupy, Chlumy, 90 m2

Chlumy

1 850 000 Kč
/za nemovitost
včetně právního servisu
Hypotéka od 8 268 Kč /měs. Chci hypotéku

Parametry domu

AdresaChlumy
ID970
StavbaSmíšená
Stav objektuPřed rekonstrukcí
Typ objektuPřízemní
Druh objektuSamostatný
Lokalita objektuKlidná část obce
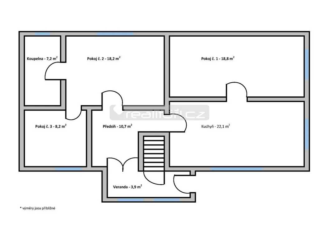
Užitná plocha90 m2
Zastavěná plocha280 m2
Podlahová plocha872 m2
Plocha pozemku592 m2
Třída energetické náročnostiG - Mimořádně nehospodárná
Elektřina230V, 400V
OdpadVeřejná kanalizace
TopeníLokální tuhá paliva
DopravaAutobus
VodaMístní zdroj vody
Sklep

Origo partneři v Chlumech

Podlahy

Stěhovací služby

Popis

Hledáte místo, kde si odpočinete od shonu města, užijete si klid venkovského života a přitom budete mít vše potřebné na dosah? Pak je tahle chalupa v obci Chlumy ideálním řešením právě pro Vás! Domek, situovaný na mírném návrší s orientací na jih a jihozápad, Vám nabídne nejen krásný výhled do okolí, ale i dostatek světla po celý den. Svoji atmosféru si zachoval díky původním prvkům, jako jsou kachlová kamna v kuchyni i v jednom z pokojů, dřevěné podlahy či prostorná půda s možností rozšíření obytné plochy. Domek je z větší části v původním stavu, nutno počítat s rekonstrukcí.
Co Vám chalupa nabídne?
✔ Velká kuchyně s tradičními kachlovými kamny a plotnou na vaření – ideální pro milovníky venkovské atmosféry.
✔ Tři prostorné pokoje, z nichž jeden má také kachlová kamna s plotnou.
✔ Vybavenost sítí – Elektřina 220/380 V (ve větší části již předělána), voda z vlastní studny a odpady napojené na obecní kanalizaci.
✔ Příprava na koupelnu a WC – instalace je hotová, chybí jen obklady a sanitární vybavení (WC již k dispozici).
✔ Tradiční podlahy – kombinace dřeva a dlažby dodává domu rustikální ráz.
✔ Menší sklípek – ideální pro uchování potravin, vína či domácích produktů.
✔ Prostorná půda – s možností přestavby na útulné podkrovní bydlení.
✔ Hospodářské zázemí – Velká stodola s chlívky poskytuje dostatek prostoru pro dílnu, skladování nebo drobné chovatelské či pěstitelské aktivity.
✔ Pozemek o výměře 872 m2 – část pozemku je zastavěný a před domem je zatravněný dvorek a za domem další travnatá část s velkým ořešákem .

Místo, které si zamilujete
Chalupa se nachází v klidné části vesnice Chlumy, kde na Vás dýchne pohoda venkovského života. Okolí nabízí nádhernou přírodu ideální pro procházky, cykloturistiku či houbaření. Přitom se však nemusíte vzdát pohodlí – město Nepomuk s veškerou občanskou vybaveností je jen 10 minut jízdy autem.

Makléř

Máte zájem o tento dům?

Tímto, v souladu s nařízením Evropského parlamentu a Rady (EU) 2016/679, v platném znění, prohlašuji, že mi je alespoň 16 let a uděluji tak svůj souhlas se zpracováním zadaných údajů (jméno, telefon, e-mail, ip adresa) společnosti B3 Technology, s.r.o., IČ: 07330600, se sídlem Novostavby 126/23, 435 11 Lom (správce dat), za účelem předání dotazu z tohoto formuláře Vámi vybranému inzerentovi a zpětného kontaktování mé osoby. Osobní údaje bude správce zpracovávat manuálně i automaticky přímo prostřednictvím svých zaměstnanců. Informace předané tímto formulářem budou uloženy v databázi správce maximálně po dobu 10 let. Odvolání souhlasu s uložením a zpracováním poskytnutých dat lze e-mailem na info@origo-reality.cz. V případě podezření na neoprávněné použití Vámi poskytnutých údajů máte právo předat podnět k šetření Úřadu pro ochranu osobních údajů. Více informací
Chystáte se prodat nemovitost?
Pomůžeme Vám!

Přihlášení k odběru

Nenechte si ujít nejnovější nabídky prodeje chalup v Chlumech.