Prodej bytu 3+kk, Harrachov, 163 m2

Harrachov

15 498 000 Kč
/za nemovitost
Včetně garážového a venkovního parkovacího stání. Včetně právního, relitního a kompletního servisu.
Hypotéka od 69 267 Kč /měs. Chci hypotéku

Parametry bytu

AdresaHarrachov
ID652266
StavbaSkeletová
Stav objektuVelmi dobrý
Patro1. z 4
VlastnictvíOsobní
Užitná plocha163 m2
Podlahová plocha163 m2
Třída energetické náročnostiB - Velmi úsporná
Garáž
Sklep
Terasa
Parkování

Origo partneři v Harrachově

Rekonstrukce

Úklidové služby

Popis

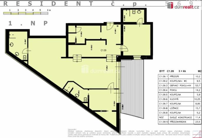
prodej zbrusu nového, prostorného horského apartmánu 3+kk (140 m²) s vlastní předzahrádkou (23 m²), třemi koupelnami, sklepem, garážovým stáním i vlastním venkovním parkovacím místem, umístěný v uzavřeném areálu Resort Resident Harrachov. Apartmán se nachází v klidné části resortu a nabízí krásný výhled na hory. Apartmán rovněž disponuje moderní, rekuperační jednotkou s rozvody do všech místností.

Dispozice a vybavení:

Obývací pokoj s kuchyňským koutem: 53,7 m²

Ložnice: 15,7 m²

Pokoj: 14,2 m²

Předsíň: 10,2 m²

3 koupelny: 9,5 m², 5,2 m², 5,9 m² (včetně WC)

Podlahové vytápění v celém apartmánu

Kvalitní keramická dlažba v celé ploše

Sklepní kóje (3 m²)

Předzahrádka vhodná k relaxaci nebo posezení

Parkování:

Garážové stání v objektu

Vlastní venkovní parkovací místo v areálu

Výhody resortu:

Přímý vstup do luxusního wellness centra Grotta Spa (bazén, sauna, relax zóna)

Možnost snídaňového servisu v přízemí budovy

Nízké provozní náklady

Lokalita:

Atraktivní poloha v srdci Harrachova

V blízkosti ski areál, bobová dráha, Hilby trail, Monkey Park

Přímé napojení na běžkařské tratě a Jizerskou magistrálu

Perfektní pro zimní i letní rekreaci

Investiční potenciál:

Vysoký zájem o krátkodobé pronájmy.

Stabilní návratnost díky službám resortu a atraktivitě lokality.

Financování a prohlídky:

Zajistíme nejvýhodnější hypoteční úvěr na trhu. Prohlídky možné i o víkendech.

Neváhejte mě kontaktovat – rád poskytnu veškeré doplňující informace. Ev. číslo: 651652.

Makléř

Máte zájem o tento byt?

Tímto, v souladu s nařízením Evropského parlamentu a Rady (EU) 2016/679, v platném znění, prohlašuji, že mi je alespoň 16 let a uděluji tak svůj souhlas se zpracováním zadaných údajů (jméno, telefon, e-mail, ip adresa) společnosti B3 Technology, s.r.o., IČ: 07330600, se sídlem Novostavby 126/23, 435 11 Lom (správce dat), za účelem předání dotazu z tohoto formuláře Vámi vybranému inzerentovi a zpětného kontaktování mé osoby. Osobní údaje bude správce zpracovávat manuálně i automaticky přímo prostřednictvím svých zaměstnanců. Informace předané tímto formulářem budou uloženy v databázi správce maximálně po dobu 10 let. Odvolání souhlasu s uložením a zpracováním poskytnutých dat lze e-mailem na info@origo-reality.cz. V případě podezření na neoprávněné použití Vámi poskytnutých údajů máte právo předat podnět k šetření Úřadu pro ochranu osobních údajů. Více informací
Chystáte se prodat nemovitost?
Pomůžeme Vám!

Přihlášení k odběru

Nenechte si ujít nejnovější nabídky prodeje bytů 3+kk v Harrachově.