Prodej rodinného domu, Staříč, 160 m2

Staříč

10 490 000 Kč
/za nemovitost
Hypotéka od 46 884 Kč /měs. Chci hypotéku

Parametry domu

AdresaStaříč
ID0025
StavbaCihlová
Stav objektuVelmi dobrý
Typ objektuPatrový
Druh objektuSamostatný
Lokalita objektuKlidná část obce
Užitná plocha160 m2
Zastavěná plocha110 m2
Podlahová plocha173 m2
Plocha pozemku586 m2
Plocha zahrady476 m2
Třída energetické náročnostiA - Mimořádně úsporná
Ukazatel energetické náročnosti41 kWh/m2 za rok
Elektřina230V
OdpadVeřejná kanalizace, Jímka
TopeníJiné, Podlahové
KomunikaceBetonová, Asfaltová, Zpevněná
DopravaDálnice, Silnice, MHD, Autobus
VodaVodovod
Garáž
Převod do OV
Parkování
Nízkoenergetický

Origo partneři v Staříči

Popis

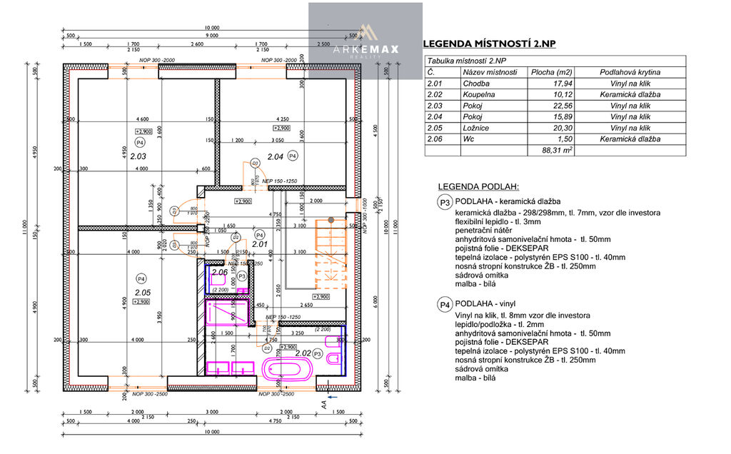
Nabízíme Vám prodej nízkoenergetického rodinného domu, který je dispozičně řešen jako 4+kk s garáží v 1NP, která je průchozí do domu.

Stavba bude řešena jako nepodsklepená, o 2NP s plochou, zateplenou střechou pomocí spádovými klíny z EPS a krytinou z PVC fólie.

Vchod do domu skrze zádveří, odkud je vstup do technické místnosti pro umístění pračky, sušičky, WC a sprchového koutu. Sestup po
schodišti do prvního mezaninu, kde bude prostorný obývací pokoj s kuchyňským koutem, který má velkolepých 40 m2, s výstupem na východně orientovanou terasu a zahradu. Vysoký strop (4m) v obývacím pokoji o výšku mezaninu. Ze zádveří vede schodiště do
2NP, kde budou 3 samostatné pokoje, samostatné WC a koupelna s WC.

Po celé ploše domu je podlahové vytápění napojeno na úsporné teplené čerpadlo, primární zdroj tepla a zásobník (180-200l) na ohřev teplé vody. Tento zdroj bude umístěn v garáži v 1NP. Energetickou náročnost budovy ve skupině A zajišťuje kvalitní izolace tloušťky 200 mm a plastová okna s trojsklem, s venkovními el. ovládanými žaluziemi. Vjezd do garáže přes sekční el. ovládaná vrata. Před domem
bude venkovní jednotka tepelného čerpadla. Venkovní terasa – kompozitní prkna.

Dům má skvělou dostupnost, nachází se 10 minut jízdy autem od centra Frýdku-Místku a pouze 3 minuty od sjezdu z dálnice
D56, která Frýdek-Místek spojuje s Ostravou. Centrum krajského města Ostrava je pak ve vzdálenosti 20ti minut.

Městská obytná zástavba je tvořena převážně rodinnými domy a nabízí rozsáhlou občanskou
vybavenost včetně mateřské a základní školy, k dispozici je lékař, obchod, pošta atd.

Naším cílem je vytvořit rodinné bydlení s dostatečným počtem místností, úložným prostorem, možností pohodlného parkování, ideální velikostí zahrady a nízkými měsíčními náklady na provoz. To vše se nám podařilo spojit s moderním designem a kvalitními materiály.

Výstavba zahájena 8/2024, předpokládaný termín dokončení 9/2025.
V případě jakýchkoliv dotazů nás neváhejte kontaktovat.

Makléř

Máte zájem o tento dům?

Tímto, v souladu s nařízením Evropského parlamentu a Rady (EU) 2016/679, v platném znění, prohlašuji, že mi je alespoň 16 let a uděluji tak svůj souhlas se zpracováním zadaných údajů (jméno, telefon, e-mail, ip adresa) společnosti B3 Technology, s.r.o., IČ: 07330600, se sídlem Novostavby 126/23, 435 11 Lom (správce dat), za účelem předání dotazu z tohoto formuláře Vámi vybranému inzerentovi a zpětného kontaktování mé osoby. Osobní údaje bude správce zpracovávat manuálně i automaticky přímo prostřednictvím svých zaměstnanců. Informace předané tímto formulářem budou uloženy v databázi správce maximálně po dobu 10 let. Odvolání souhlasu s uložením a zpracováním poskytnutých dat lze e-mailem na info@origo-reality.cz. V případě podezření na neoprávněné použití Vámi poskytnutých údajů máte právo předat podnět k šetření Úřadu pro ochranu osobních údajů. Více informací
Chystáte se prodat nemovitost?
Pomůžeme Vám!

Přihlášení k odběru

Nenechte si ujít nejnovější nabídky prodeje rodinných domů v Staříči.