Prodej rodinného domu, Chrast - Podlažice, 631 m2 (ID: 1734507)

Chrast, Podlažice

3 390 000 Kč
/za nemovitost
Cena včetně provize RK a právních služeb.
Hypotéka od 15 151 Kč /měs. Chci hypotéku

Parametry domu

AdresaChrast, Podlažice
ID911933
StavbaSmíšená
Stav objektuDobrý
VybavenoČástečně
Druh objektuSamostatný
Lokalita objektuOkraj obce
VlastnictvíOsobní
Užitná plocha631 m2
Plocha pozemku550 m2
Balkon

Origo partneři v Chrasti

Popis

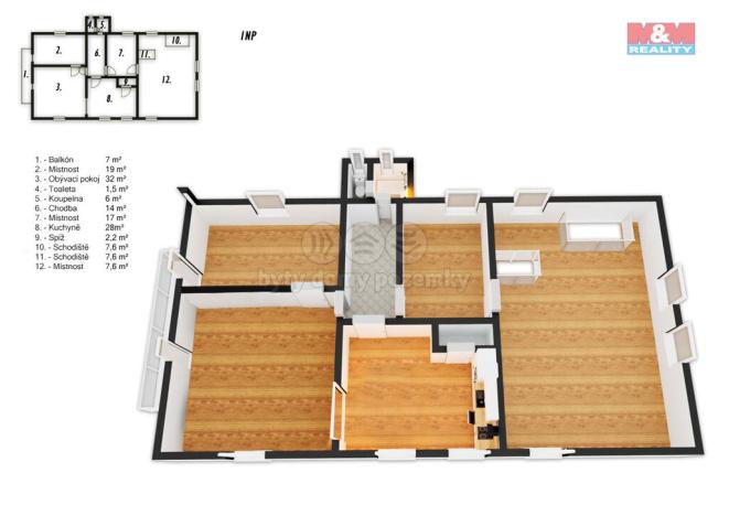
Nabízíme Vám ke koupi zajímavou nemovitost, která je díky své velikosti, umístění a územnímu plánu ideální jako investiční příležitostí. Objekt je v původním stavu, připraven na realizaci dle představ nového majitele. Jako vhodné se jeví využití pro účely ubytování a restaurace u hlavní silnice mezi městy Chrudim a Skuteč. Přízemí vedené jako restaurace je dispozičně řešeno: vchod, salonek, kuchyň se sociálním zařízením, WC pro hosty, sál s výčepem a vchodem do nadzemních podlaží. V druhém nadzemním podlaží se nachází plocha nad sálem a byt o dispozici 3+1. Ve třetím nadzemním podlaží pak dvě místnosti, ze kterých lze vybudovat další bytové jednotky. Část mlýnu je podsklepená, tyto prostory se dají využít například jako sklady nebo technické zázemí. Dále k nemovitosti patří přilehlé parkoviště, v případě zájmu lze dokoupit další stavbu. Pro více informací kontaktujte makléře Jana Kubíčka a domluvte si svůj termín prohlídky.

Makléř

Máte zájem o tento dům?

Tímto, v souladu s nařízením Evropského parlamentu a Rady (EU) 2016/679, v platném znění, prohlašuji, že mi je alespoň 16 let a uděluji tak svůj souhlas se zpracováním zadaných údajů (jméno, telefon, e-mail, ip adresa) společnosti B3 Technology, s.r.o., IČ: 07330600, se sídlem Novostavby 126/23, 435 11 Lom (správce dat), za účelem předání dotazu z tohoto formuláře Vámi vybranému inzerentovi a zpětného kontaktování mé osoby. Osobní údaje bude správce zpracovávat manuálně i automaticky přímo prostřednictvím svých zaměstnanců. Informace předané tímto formulářem budou uloženy v databázi správce maximálně po dobu 10 let. Odvolání souhlasu s uložením a zpracováním poskytnutých dat lze e-mailem na info@origo-reality.cz. V případě podezření na neoprávněné použití Vámi poskytnutých údajů máte právo předat podnět k šetření Úřadu pro ochranu osobních údajů. Více informací
Chystáte se prodat nemovitost?
Pomůžeme Vám!

Přihlášení k odběru

Nenechte si ujít nejnovější nabídky prodeje rodinných domů v Chrasti (okr. Chrudim).