Prodej rodinného domu, Prachovice, Ke Stadionu, 110 m2 (ID: 1827490)

Ke Stadionu, Prachovice

5 710 000 Kč
/za nemovitost
Hypotéka od 25 520 Kč /měs. Chci hypotéku

Parametry domu

Náklady na bydlení8000
AdresaKe Stadionu, Prachovice
ID693
StavbaCihlová
Stav objektuVelmi dobrý
Druh objektuSamostatný
Lokalita objektuKlidná část obce
Užitná plocha110 m2
Zastavěná plocha246 m2
Podlahová plocha840 m2
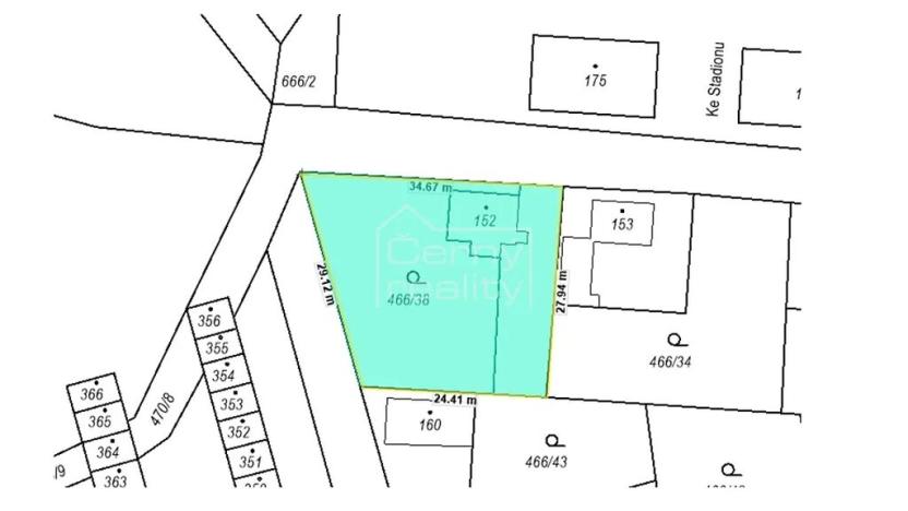
Plocha pozemku840 m2
Plocha zahrady594 m2
Třída energetické náročnostiG - Mimořádně nehospodárná
Elektřina230V, 400V
OdpadVeřejná kanalizace
TopeníLokální elektrické
TelekomunikaceInternet
DopravaAutobus
VodaMístní zdroj vody, Vodovod
Bezbarierový přístup
Parkování
Bazén

Origo partneři v Prachovicích

Popis

Prodej RD 3+1, o ploše 110 m2, po částečné rekonstrukci, na pěkném místě, na konci ulice Ke Stadionu, v Prachovicích, č.p. 113. Dům prošel v uplynulých pěti letech zásadnější rekonstrukcí. Zateplení, nová plastová okna, podlahové elektrické topení - systém Fenix, s termostatem v každém pokoji. Nové plovoucí podlahy, sádrokartony, v podkroví jsou přiznané původní trámy, nová kuchyňská linka, nová terasa s přístupem až k bazénu, zastřešená pergola a bazén o rozměrech 3,66 x 1,5m.
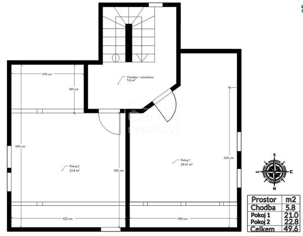
Dispozice v m2 - přízemí : Vstupní chodba 5,2m2, kuchyň s vestavěnými spotřebiči 14m2, obývací pokoj 22m2 s východem na pergolu 13m2 a terasu k bazénu, terasa o ploše 22 m2, z modřínových prken. V přízemí je ještě koupelna s vanou, el. bojlerem a oknem na zahradu, o ploše 6,4m2.
Do 1.patra se vchází po schodišti, se stupni z plovoucí podlahy, chodba s úložnými prostory v 1.patře o ploše 5,8m2, pokoj1 s přiznaným trámovím a dvěma okny o ploše 21m2, další pokoj2 o ploše 23m2. Udržovaná zahrada s plechovým skladem. Vlastní kopanná studna, s čerpadlem. Zastavěná plocha domu je 246 m2. Plocha zahrady je 594 m2. Celková plocha pozemku je 840 m2. Před domem jsou 2 otevřená parkovací stání a další 2 stání jsou za vjezdovou branou. Doporučujeme prohlídku. ID 11325.

Makléř

Máte zájem o tento dům?

Tímto, v souladu s nařízením Evropského parlamentu a Rady (EU) 2016/679, v platném znění, prohlašuji, že mi je alespoň 16 let a uděluji tak svůj souhlas se zpracováním zadaných údajů (jméno, telefon, e-mail, ip adresa) společnosti B3 Technology, s.r.o., IČ: 07330600, se sídlem Novostavby 126/23, 435 11 Lom (správce dat), za účelem předání dotazu z tohoto formuláře Vámi vybranému inzerentovi a zpětného kontaktování mé osoby. Osobní údaje bude správce zpracovávat manuálně i automaticky přímo prostřednictvím svých zaměstnanců. Informace předané tímto formulářem budou uloženy v databázi správce maximálně po dobu 10 let. Odvolání souhlasu s uložením a zpracováním poskytnutých dat lze e-mailem na info@origo-reality.cz. V případě podezření na neoprávněné použití Vámi poskytnutých údajů máte právo předat podnět k šetření Úřadu pro ochranu osobních údajů. Více informací
Chystáte se prodat nemovitost?
Pomůžeme Vám!

Přihlášení k odběru

Nenechte si ujít nejnovější nabídky prodeje rodinných domů v Prachovicích.