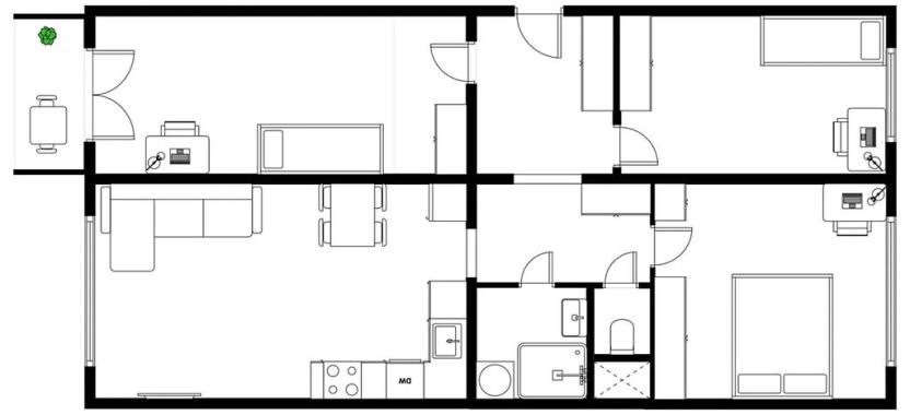
Prodej bytu 4+kk, Praha - Modřany, Urbánkova, 80 m2

Urbánkova, Praha, Modřany

8 999 900 Kč
/za nemovitost
Finální cena. Neplatíte žádnou provizi. Cena vč. právního servisu.
Hypotéka od 40 224 Kč /měs. Chci hypotéku

Parametry bytu

AdresaUrbánkova, Praha, Modřany
ID1145
StavbaPanelová
Stav objektuVelmi dobrý
Patro1. z 12
VybavenoČástečně
Lokalita objektuCentrum obce
VlastnictvíOsobní
Užitná plocha80 m2
Třída energetické náročnostiC - Úsporná
OdpadVeřejná kanalizace
TopeníÚstřední dálkové
KomunikaceAsfaltová
DopravaSilnice, MHD, Autobus
VodaVodovod
Topné tělesoRadiátory
Zdroj topeníCentrální dálkové
Zdroj teplé vodyCentrální dálkový ohřev
Sklep
Lodžie
Výtah
Bezbarierový přístup

Origo partneři v Praze 4

Stěhovací služby

Výkup a prodej starého nábytku

Popis

Přímý majitel nabízí k prodeji světlý byt 4+kk o celkové ploše 80 m² s lodžií. Byt se nachází v zatepleném a zrekonstruovaném panelovém domě s výtahem v ulici Urbánkova, Praha 12 – Modřany. Díky své dispozici, příjemné atmosféře a okolní zeleni představuje ideální bydlení pro rodiny s dětmi, páry i jednotlivce, kteří hledají spojení městského komfortu s přírodou na dosah.

Lokalita nabízí kompletní občanskou vybavenost – v pěší vzdálenosti se nachází mateřské a základní školy, obchody, restaurace, lékárny i zdravotnická zařízení. Přímo za domem začíná Modřanská rokle, oblíbené přírodní údolí vhodné pro procházky, sport i odpočinek. V blízkém okolí najdete také lesopark Kamýk a cyklostezku podél Vltavy. Skvělou dopravní dostupnost zajišťují tramvajové i autobusové linky s rychlým spojením do centra města.

Byt právě prošel kompletní a kvalitní rekonstrukcí, která zahrnuje nové rozvody elektřiny, vody a odpadů, nové podlahové krytiny, moderní obklady a dlažbu italské značky Marazzi a koupelnu se sanitou značky Grohe. Součástí je také zcela nová kuchyňská linka vybavená vestavnými spotřebiči značky Gorenje s prodlouženou zárukou 5 let.

Dispozice bytu zahrnuje prostorný obývací pokoj s kuchyňským koutem a tři samostatné ložnice. Lodžie o velikosti 3 m² je přístupná z jednoho z pokojů. Dále je zde koupelna se sprchovým koutem, samostatné WC a velkou vstupní chodbu s dostatkem místa pro úložné řešení. K bytu náleží také komora na patře a také sklepní kóje v suterénu.

Byt je orientován na západ a východ, díky čemuž je po celý den příjemně prosvětlený. Vytápění je řešeno centrálně – dálkově.

Byt je prodáván přímo majitelem, bez provize. Cena zahrnuje kompletní právní servis.

V případě zájmu si neváhejte prohlédnout dům pomocí virtuální prohlídky. Pro více informací a domluvení osobní prohlídky nás neváhejte kdykoliv kontaktovat.

Makléř

Máte zájem o tento byt?

Tímto, v souladu s nařízením Evropského parlamentu a Rady (EU) 2016/679, v platném znění, prohlašuji, že mi je alespoň 16 let a uděluji tak svůj souhlas se zpracováním zadaných údajů (jméno, telefon, e-mail, ip adresa) společnosti B3 Technology, s.r.o., IČ: 07330600, se sídlem Novostavby 126/23, 435 11 Lom (správce dat), za účelem předání dotazu z tohoto formuláře Vámi vybranému inzerentovi a zpětného kontaktování mé osoby. Osobní údaje bude správce zpracovávat manuálně i automaticky přímo prostřednictvím svých zaměstnanců. Informace předané tímto formulářem budou uloženy v databázi správce maximálně po dobu 10 let. Odvolání souhlasu s uložením a zpracováním poskytnutých dat lze e-mailem na info@origo-reality.cz. V případě podezření na neoprávněné použití Vámi poskytnutých údajů máte právo předat podnět k šetření Úřadu pro ochranu osobních údajů. Více informací
Chystáte se prodat nemovitost?
Pomůžeme Vám!

Přihlášení k odběru

Nenechte si ujít nejnovější nabídky prodeje bytů 4+kk v Praze 4.