Prodej chaty, Chvalkovice, 76 m2

Chvalkovice, Střeziměřice

4 990 000 Kč
/za nemovitost
Hypotéka od 22 302 Kč /měs. Chci hypotéku

Parametry domu

AdresaChvalkovice, Střeziměřice
ID16174
StavbaDřevěná
Stav objektuVelmi dobrý
VybavenoAno
Druh objektuSamostatný
Lokalita objektuKlidná část obce
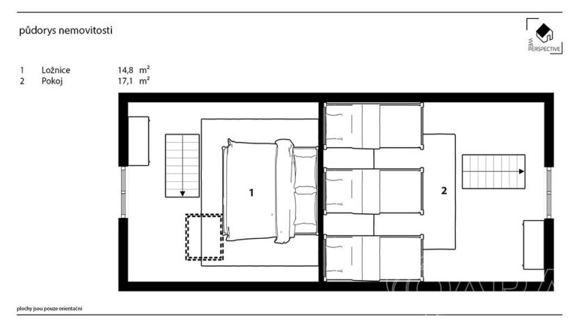
Užitná plocha76 m2
Plocha pozemku717 m2
Třída energetické náročnostiG - Mimořádně nehospodárná
PlynPlynovod
OdpadSeptik
KomunikaceZpevněná
TelekomunikaceInternet
DopravaSilnice
VodaVodovod
Topné tělesoRadiátory
Zdroj topeníPlynový kotel
Zdroj teplé vodyBojler - elektro
Bazén

Origo partneři v Chvalkovicích

Popis

Máte sen o místě, kde čas plyne pomaleji, příroda je na dosah a pohodlí domova zůstává? Právě takové místo pro vás máme. V klidné části obce Chvalkovice, konkrétně ve Střeziměřicích, nabízíme k prodeji útulnou dřevěnou chatu o dispozici 3+1 a užitné ploše 76,6 m², která stojí na vlastním, pečlivě udržovaném pozemku o výměře 717 m².
Chata je zateplená ze všech stran a díky plynovému kotli a klimatizaci s funkcí topení je plně připravená na celoroční užívání. Disponuje napojením na elektřinu, vodu z obecního vodovodu a odpad je řešen jímkou.
Dispozice a rekonstrukce:
V přízemí najdete útulný obývací pokoj, kuchyni s jídelním koutem a koupelnu. V podkroví jsou dva další pokoje, které poskytují dostatek prostoru jak pro rodinu, tak pro hosty. V letech 2022–2023 prošla nemovitost zásadní modernizací – proběhlo kompletní zateplení, oprava střechy a oken, renovace koupelny, obývacího pokoje, podkroví i venkovní terasy.
Zahrada jako oáza:
Zahrada je naprostým skvostem – okrasná, pečlivě udržovaná a díky vzrostlému živému plotu poskytuje výborné soukromí. Na pozemku se nachází garáž (aktuálně využívaná jako technický sklad a dílna), zastřešená kuchyň s posezením, udírnou, grilem a venkovním krbem. A pro horké dny? Bazén o průměru 3 metry je ideální volba.
Dostupnost a lokalita:
Chata je snadno dostupná autem po celý rok, případně veřejnou dopravou do nedalekých Chvalkovic. Do Jaroměře je to pouhých 12 km. Celá oblast je obklopena přírodou a klidem – ideální pro víkendové úniky z města i pro ty, kdo hledají harmonické místo k trvalému bydlení.
Jestli hledáte místo, kde je radost trávit dny i roky, ozvěte se.
Ráda vám toto vyjímečné místo ukážu.

Makléř

Máte zájem o tento dům?

Tímto, v souladu s nařízením Evropského parlamentu a Rady (EU) 2016/679, v platném znění, prohlašuji, že mi je alespoň 16 let a uděluji tak svůj souhlas se zpracováním zadaných údajů (jméno, telefon, e-mail, ip adresa) společnosti B3 Technology, s.r.o., IČ: 07330600, se sídlem Novostavby 126/23, 435 11 Lom (správce dat), za účelem předání dotazu z tohoto formuláře Vámi vybranému inzerentovi a zpětného kontaktování mé osoby. Osobní údaje bude správce zpracovávat manuálně i automaticky přímo prostřednictvím svých zaměstnanců. Informace předané tímto formulářem budou uloženy v databázi správce maximálně po dobu 10 let. Odvolání souhlasu s uložením a zpracováním poskytnutých dat lze e-mailem na info@origo-reality.cz. V případě podezření na neoprávněné použití Vámi poskytnutých údajů máte právo předat podnět k šetření Úřadu pro ochranu osobních údajů. Více informací
Chystáte se prodat nemovitost?
Pomůžeme Vám!

Přihlášení k odběru

Nenechte si ujít nejnovější nabídky prodeje chat v Chvalkovicích (okr. Náchod).