Prodej rodinného domu, Kramolna, 84 m2

Kramolna

5 490 000 Kč
/za nemovitost
Hypotéka od 24 537 Kč /měs. Chci hypotéku

Parametry domu

AdresaKramolna
ID305-NP00827
StavbaSmíšená
Stav objektuVelmi dobrý
VybavenoČástečně
Typ objektuPatrový
Druh objektuSamostatný
Lokalita objektuKlidná část obce
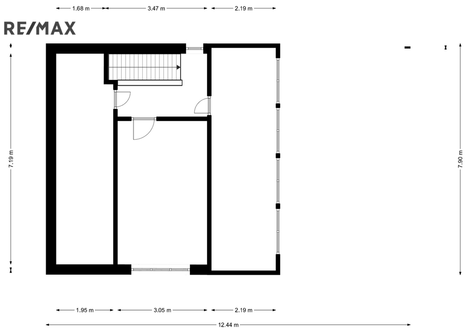
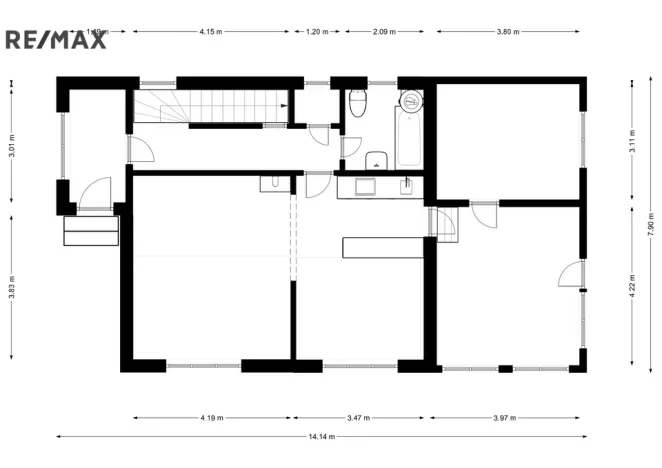
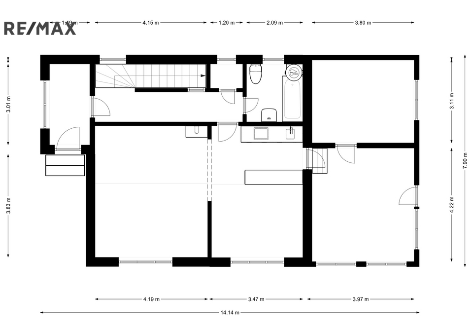
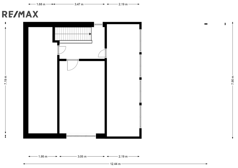
Užitná plocha84 m2
Zastavěná plocha214 m2
Podlahová plocha144 m2
Plocha pozemku1097 m2
Plocha zahrady883 m2
Třída energetické náročnostiG - Mimořádně nehospodárná
Elektřina230V
OdpadVeřejná kanalizace
KomunikaceAsfaltová
DopravaMHD, Autobus
VodaVodovod
Sklep
Převod do OV
Parkování

Origo partneři v Kramolně

Popis

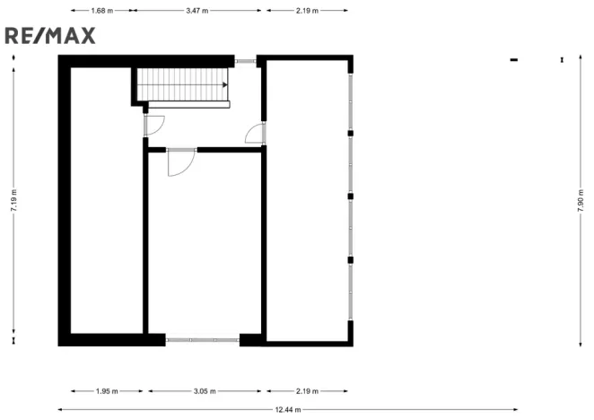
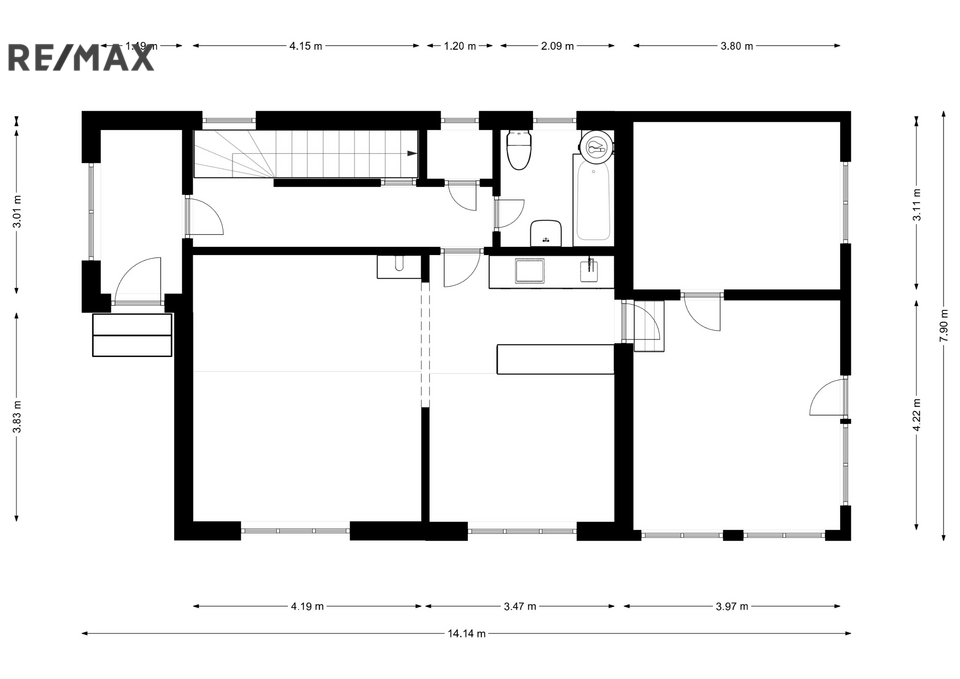
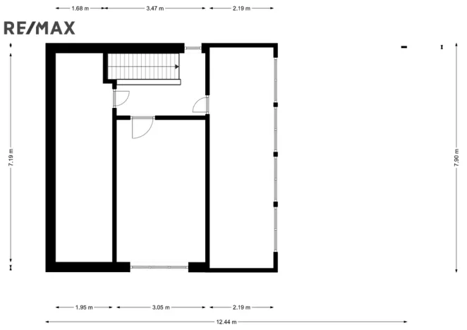
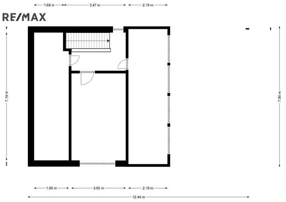
Nabízíme k prodeji starší, ale zachovalý rodinný dům, nacházející se v malebné obci Kramolna, č. p. 131 v těsné blízkosti města Náchod. Tento patrový objekt s jedním podlažím se pyšní zastavěnou plochou 214 m² a užitnou plochou 84 m², což zajišťuje dostatek prostoru pro pohodlné bydlení. Dům je částečně vybavený a jeho součástí je také sklep o ploše 6,4 m².

Nemovitost se nachází na parcele o celkové ploše 1097 m², která nabízí krásnou zahradu a dostatek prostoru pro příjemné venkovní aktivity. V okolí se rozprostírá krásná příroda, lesy a klidná místa, ideální pro relaxaci a odpočinek od městského ruchu.

Dům disponuje třemi prostornými pokoji a jeho zařízení zahrnuje radiátory, krbová kamna, bojler na elektřinu pro ohřev teplé vody, prostornou kuchyň s keramickou varnou deskou. K dispozici je také jedno parkoviště pro pohodlné parkování. Odpad je napojen na kanalizaci a přívod vody zajišťuje vodovod.

Jednou z výhod nemovitosti je její poloha v žádané lokalitě, kde je snadná dostupnost MHD a autobusové dopravy, což usnadňuje každodenní cestování. Dřevěné přístavby v okolí domu dodávají nemovitosti na charakteru a přispívají k příjemné atmosféře.

V případě zájmu o prohlídku mě neváhejte kontaktovat. Prodávající si vyhrazuje právo vybrat kupujícího na základě jím zvolených kritérií.

Makléř

Máte zájem o tento dům?

Tímto, v souladu s nařízením Evropského parlamentu a Rady (EU) 2016/679, v platném znění, prohlašuji, že mi je alespoň 16 let a uděluji tak svůj souhlas se zpracováním zadaných údajů (jméno, telefon, e-mail, ip adresa) společnosti B3 Technology, s.r.o., IČ: 07330600, se sídlem Novostavby 126/23, 435 11 Lom (správce dat), za účelem předání dotazu z tohoto formuláře Vámi vybranému inzerentovi a zpětného kontaktování mé osoby. Osobní údaje bude správce zpracovávat manuálně i automaticky přímo prostřednictvím svých zaměstnanců. Informace předané tímto formulářem budou uloženy v databázi správce maximálně po dobu 10 let. Odvolání souhlasu s uložením a zpracováním poskytnutých dat lze e-mailem na info@origo-reality.cz. V případě podezření na neoprávněné použití Vámi poskytnutých údajů máte právo předat podnět k šetření Úřadu pro ochranu osobních údajů. Více informací
Chystáte se prodat nemovitost?
Pomůžeme Vám!

Přihlášení k odběru

Nenechte si ujít nejnovější nabídky prodeje rodinných domů v Kramolně.