Prodej ubytování, Jetřichovice, 640 m2 (ID: 1726815)

Jetřichovice

13 490 000 Kč
/za nemovitost
Hypotéka od 60 292 Kč /měs. Chci hypotéku

Parametry nemovitosti

AdresaJetřichovice
IDMN22
StavbaSmíšená
Stav objektuVelmi dobrý
VybavenoAno
Typ objektuPatrový
Užitná plocha640 m2
Plocha pozemku2122 m2
Třída energetické náročnostiG - Mimořádně nehospodárná
Elektřina230V, 400V
OdpadVeřejná kanalizace
TopeníÚstřední elektrické
KomunikaceAsfaltová
TelekomunikaceTelefon, Internet
DopravaAutobus
VodaVodovod
Topné tělesoRadiátory
Zdroj topeníElektrokotel
Zdroj teplé vodyElektrokotel
Garáž
Bezbarierový přístup
Parkování

Origo partneři v Jetřichovicích

Okna a dveře

Popis

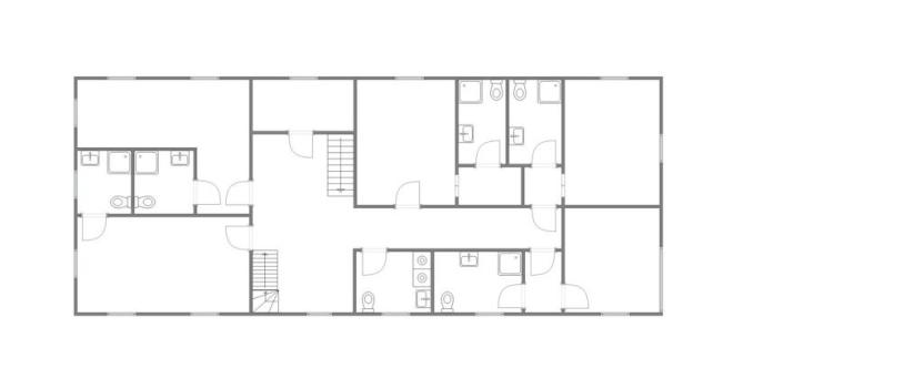
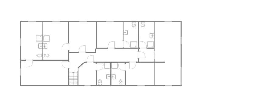
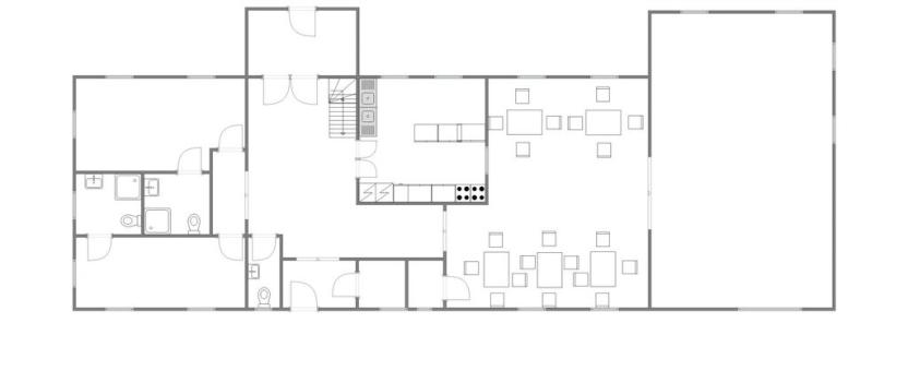
Exkluzivně nabízíme k prodeji třípodlažní penzion Falkenštejn se souvisejícími pozemky o rozloze 2122 m2 a dalšími dvěmi budovami, vlastním parkovištěm nedaleko centra obce Jetřichovice v Ústeckém kraji. Penzion byl provozován až do pandemie Covidu, který jej uzavřel. Po té došlo k rozhodnutí o vnitřní modernizaci objektu včetně zařízení a nyní probíhají dokončovací práce.

Celková kapacita pensionu je 13 pokojů s 30 lůžky, každý pokoj má vlastní příslušenství. Stavba je členěna do třech podlaží, přičemž v prvním podlaží se nachází zádveří, chodba, kuchyň, jídelna, herna, kotelna, úklidová místnost, sklad, wc a 2 dvoulůžkové pokoje s příslušenstvím. Do druhého podlaží je situováno 5 pokojů (2x třílůžkový a 4x dvoulůžkový) s příslušenstvím, prádelna a sklad. Ve třetím podlaží se nachází 6 pokojů (1x čtyřlůžkový, 4x dvoulůžkový a 1x jednolůžkový) s příslušenstvím.

Z inženýrských sítí je k dispozici přípojka elektřiny 220/380 V, veřejný vodovod, kanalizace a internet 02. Zdrojem tepla a ohřevu vody je elektrokotel v kombinaci se solárním ohřevem. Objekt je zabezpečen kamerovým systémem a zabezpečovacím zařízením Jablotron,

Obec Jetřichovice se nachází v srdci Českého Švýcarska a je tak ideálním výchozím bodem pro pěší nebo běžecké výlety či vyjížďky na kole po okolí, které je svou rozmanitostí naprosto jedinečnou lokalitou.

Pro více informací či se zájmem o prohlídku nás neváhejte kontaktovat.. K této nemovitosti máte připravené podrobné informace na: https://penzion-falkenstejn.cz

Makléř

Máte zájem o tuto nemovistost?

Tímto, v souladu s nařízením Evropského parlamentu a Rady (EU) 2016/679, v platném znění, prohlašuji, že mi je alespoň 16 let a uděluji tak svůj souhlas se zpracováním zadaných údajů (jméno, telefon, e-mail, ip adresa) společnosti B3 Technology, s.r.o., IČ: 07330600, se sídlem Novostavby 126/23, 435 11 Lom (správce dat), za účelem předání dotazu z tohoto formuláře Vámi vybranému inzerentovi a zpětného kontaktování mé osoby. Osobní údaje bude správce zpracovávat manuálně i automaticky přímo prostřednictvím svých zaměstnanců. Informace předané tímto formulářem budou uloženy v databázi správce maximálně po dobu 10 let. Odvolání souhlasu s uložením a zpracováním poskytnutých dat lze e-mailem na info@origo-reality.cz. V případě podezření na neoprávněné použití Vámi poskytnutých údajů máte právo předat podnět k šetření Úřadu pro ochranu osobních údajů. Více informací
Chystáte se prodat nemovitost?
Pomůžeme Vám!

Přihlášení k odběru

Nenechte si ujít nejnovější nabídky prodeje ubytování v Jetřichovicích.