Prodej bytu 3+kk, Frymburk, 75 m2 (ID: 1697439)

Frymburk, okres jihočeský kraj

6 250 000 Kč
/za nemovitost
Hypotéka od 27 934 Kč /měs. Chci hypotéku

Parametry bytu

AdresaFrymburk, okres jihočeský kraj
ID134
StavbaDřevěná
Stav objektuNovostavba
Patro1.
VybavenoČástečně
VlastnictvíOsobní
Užitná plocha75 m2
Podlahová plocha75 m2
Třída energetické náročnostiB - Velmi úsporná
Lodžie
Výtah
Parkování

Origo partneři v Frymburku

Výkup a prodej starého nábytku

Pojištění a finance

Popis

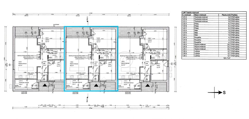
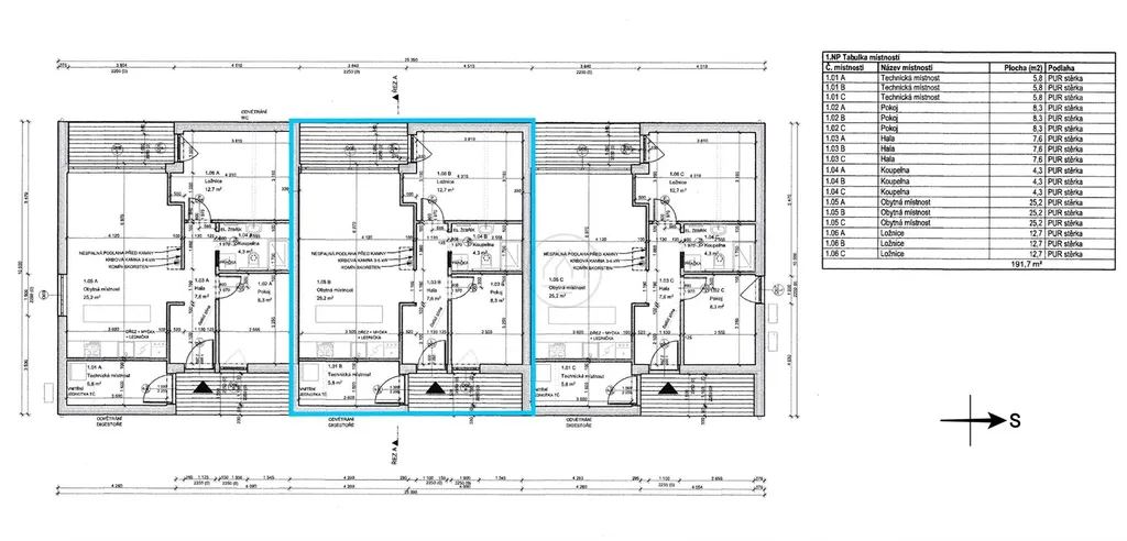
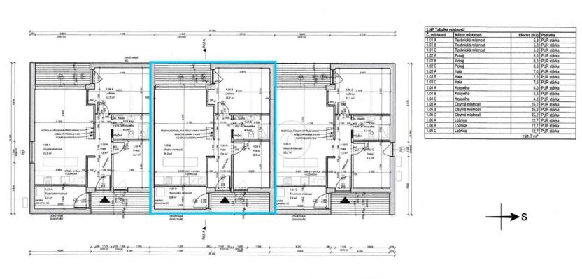
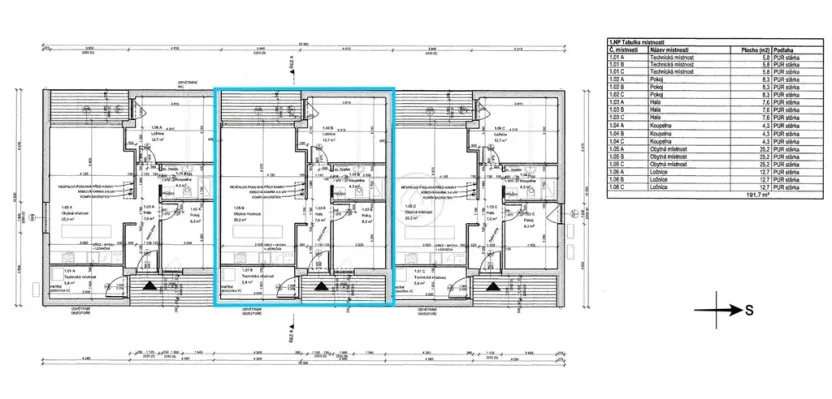
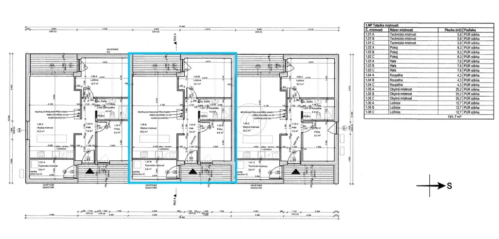
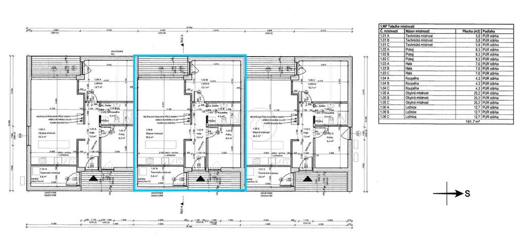
Nabízíme k prodeji moderní a promyšleně navržený apartmán 3+kk s lodžií, terasou a zahradou, který je součástí novostavby se třemi bytovými jednotkami ve vyhledávané lokalitě Frymburk, přímo u Lipenské přehrady.

Jedná se o jednotku s dispozičně vhodně navrženým půdorysem, kterému dominuje prostorný obývací pokoj spojený s kuchyní, jídelnou a vstupem na terasu. Dále jsou součástí dvě ložnice, koupelna s WC a technická místnost s možností uložení zavazadel, kol atd. Cena zahrnuje podlahové krytiny, dveře, sanitární vybavení a dvě parkovací stání. Výhodou jsou portálová okna, krytá lodžie a možnost využití zahrádky o rozloze dalších 30 m². Apartmán je zkrátka navržený pro pohodlnou rekreaci Vaší rodiny a blízkých.

Apartmán je součástí jednopodlažní nepodsklepené dřevostavby se sedlovou střechou a třemi bytovými jednotkami. Objekt je zateplený tepelnou izolací a fasádním polystyrenem dle norem ČSN a minerální omítkou v kombinaci se Sibiřském modřínem. Kolaudace leden 2023. Vytápění bytu je řešeno vlastním elektrokotlem PROTHERM 6 kW napojeným na podlahové vytápění, dále jsou provedeny veškeré rozvody pro případné vytápění tepelným čerpadlem. V obývacím pokoji je připravený komín na napojení krbových kamen. K jednotce patří podíl na společných prostorech zahrady, která má plochu 571 m². K prodeji je také vedlejší jednotka "C".

V okolí Frymburku najdete vše, co potřebujete k bydlení a rekreaci, obchody, kavárny, cyklostezky, Wellness centrum, pláž a další. Poloha největší vodní plochy v srdci Šumavy láká v každém ročním období.

• prostorný obývací pokoj s jídelním prostorem,
• přímý vstup na terasu a zahrádku
• dvě ložnice
• dvě parkovací stání
• technická místnost vhodná pro úložné prostory (kola, zavazadla apod.)

Zarezervujte si nové rodinné sídlo v top lokalitě u vody v krásné přírodě, v podobě investice s pravidelným výnosem a dlouhodobým zhodnocením, kdy turistický ruch na Lipně roste. Exkluzivně nabízíme celoroční údržbu a správu pronájmu nové nemovitosti v období Vaší nepřítomnosti.

Kontaktujte specialistu na investice v lipenské lokalitě pro více informací, popřípadě se zastavte na nezávaznou prohlídku.

Makléř

Máte zájem o tento byt?

Tímto, v souladu s nařízením Evropského parlamentu a Rady (EU) 2016/679, v platném znění, prohlašuji, že mi je alespoň 16 let a uděluji tak svůj souhlas se zpracováním zadaných údajů (jméno, telefon, e-mail, ip adresa) společnosti B3 Technology, s.r.o., IČ: 07330600, se sídlem Novostavby 126/23, 435 11 Lom (správce dat), za účelem předání dotazu z tohoto formuláře Vámi vybranému inzerentovi a zpětného kontaktování mé osoby. Osobní údaje bude správce zpracovávat manuálně i automaticky přímo prostřednictvím svých zaměstnanců. Informace předané tímto formulářem budou uloženy v databázi správce maximálně po dobu 10 let. Odvolání souhlasu s uložením a zpracováním poskytnutých dat lze e-mailem na info@origo-reality.cz. V případě podezření na neoprávněné použití Vámi poskytnutých údajů máte právo předat podnět k šetření Úřadu pro ochranu osobních údajů. Více informací
Chystáte se prodat nemovitost?
Pomůžeme Vám!
Theleadway banner

Přihlášení k odběru

Nenechte si ujít nejnovější nabídky prodeje bytů 3+kk v Frymburku (okr. Český Krumlov).