Prodej bytu 4+kk, Praha - Břevnov, Atletická, 236 m2

Atletická, Praha, Břevnov

52 900 000 Kč
/za nemovitost
Hypotéka od 236 431 Kč /měs. Chci hypotéku

Parametry bytu

AdresaAtletická, Praha, Břevnov
ID530276
StavbaSmíšená
Stav objektuVelmi dobrý
Patro2. z 3
VlastnictvíOsobní
Užitná plocha236 m2
Třída energetické náročnostiG - Mimořádně nehospodárná
Garáž
Sklep
Terasa
Výtah
Parkování

Origo partneři v Praze 6

Stěhovací služby

Výkup a prodej starého nábytku

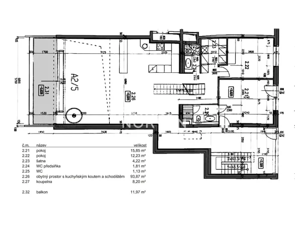
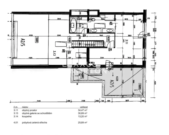
Popis

Představujeme jedinečný luxusní mezonetový byt 4+kk k prodeji v prestižní lokalitě Prahy 6 - Břevnov. Nemovitost se pyšní třemi terasami, které nabízejí úchvatný panoramatický výhled na Prahu. Novostavba garantuje nejvyšší standardy bydlení a poskytuje výjimečný komfort pro ty nejnáročnější klienty.


Tento exkluzivní byt o rozloze 236 m2 vás okouzlí svým promyšleným designem a prvotřídním vybavením. V přízemí se nacházejí dvě prostorné ložnice s vestavěným nábytkem, šatna, samostatná toaleta a dvě elegantní koupelny. Reprezentativní obývací pokoj je harmonicky propojený s moderní, plně vybavenou kuchyní s ostrůvkem, odkud se můžete vydat na terasu (12 m2). Impozantní výška stropu v obývací části dosahuje neuvěřitelných 6 metrů a skýtá dechberoucí výhled na metropoli. Interiér oživuje prosklené schodiště, klavír a řada designových dekorací.


Kuchyň je vybavena špičkovými spotřebiči značky Siemens a pracovní deskou z kvalitního kamene. V patře naleznete hlavní ložnici s přístupem na terasu a také na velkolepou střešní terasu se zelení (25,7 m2). Dále zde najdete moderní koupelnu, pracovnu a galerii. Součástí vybavení je podlahové vytápění (s výjimkou ložnic), elegantní kamenná podlaha BOTTICINO, dřevěná podlaha v ložnicích, klimatizace, elektricky ovládané venkovní žaluzie a moderní hliníková okna. Samostatný vstup vám zajistí maximální pocit soukromí a pohodlí.

K bytu náleží dvě garážová parkovací stání a sklep.


Tento byt představuje ideální volbu pro náročné klienty, kteří touží po jedinečném bydlení v samotném srdci Prahy. Břevnov - poklidná rezidenční oblast pyšnící se bohatou občanskou vybaveností a příjemným prostředím, které uspokojí i ty nejnáročnější. Pro rodiny s dětmi je lokalita perfektní volbou, díky dostupnosti několika mateřských a základních škol. V blízkosti se nachází supermarket, drogerie a řada menších obchodů, kde snadno seženete vše potřebné. V dojezdové vzdálenosti 8 minut se nachází Obchodní centrum Nový Smíchov. Výborné spojení do centra Prahy a dalších částí města zajišťují blízké zastávky tramvají a autobusů, stejně jako stanice metra A - Petřiny, která je v dosahu. Pro milovníky přírody a relaxu uprostřed zeleně je Břevnov skutečným rájem, s krásnými zelenými plochami a parky, jako je park Ladronka.

Makléř

Máte zájem o tento byt?

Tímto, v souladu s nařízením Evropského parlamentu a Rady (EU) 2016/679, v platném znění, prohlašuji, že mi je alespoň 16 let a uděluji tak svůj souhlas se zpracováním zadaných údajů (jméno, telefon, e-mail, ip adresa) společnosti B3 Technology, s.r.o., IČ: 07330600, se sídlem Novostavby 126/23, 435 11 Lom (správce dat), za účelem předání dotazu z tohoto formuláře Vámi vybranému inzerentovi a zpětného kontaktování mé osoby. Osobní údaje bude správce zpracovávat manuálně i automaticky přímo prostřednictvím svých zaměstnanců. Informace předané tímto formulářem budou uloženy v databázi správce maximálně po dobu 10 let. Odvolání souhlasu s uložením a zpracováním poskytnutých dat lze e-mailem na info@origo-reality.cz. V případě podezření na neoprávněné použití Vámi poskytnutých údajů máte právo předat podnět k šetření Úřadu pro ochranu osobních údajů. Více informací
Chystáte se prodat nemovitost?
Pomůžeme Vám!

Přihlášení k odběru

Nenechte si ujít nejnovější nabídky prodeje bytů 4+kk v Praze 6.