Prodej rodinného domu, Železná Ruda, 679 m2

Železná Ruda, Špičák

19 499 000 Kč
/za nemovitost
včetně DPH, včetně poplatků, včetně provize, včetně právního servisu
Hypotéka od 87 149 Kč /měs. Chci hypotéku

Parametry domu

AdresaŽelezná Ruda, Špičák
ID27776
StavbaSmíšená
Stav objektuDobrý
VybavenoČástečně
Druh objektuSamostatný
Lokalita objektuKlidná část obce
Užitná plocha679 m2
Zastavěná plocha350 m2
Plocha pozemku968 m2
Třída energetické náročnostiG - Mimořádně nehospodárná
Elektřina230V
OdpadVeřejná kanalizace
KomunikaceAsfaltová
DopravaVlak, Silnice, Autobus
VodaStudna
Garáž
Výtah
Parkování

Origo partneři v Železné Rudě

Podlahy

Stěhovací služby

Popis

Nabízím vám ke koupi rodinný dům na Špičáku, který se nachází v jednom z nejoblíbenějších šumavských středisek. Tento dům nabízí široké možnosti využití jak pro bydlení, tak i pro podnikání.

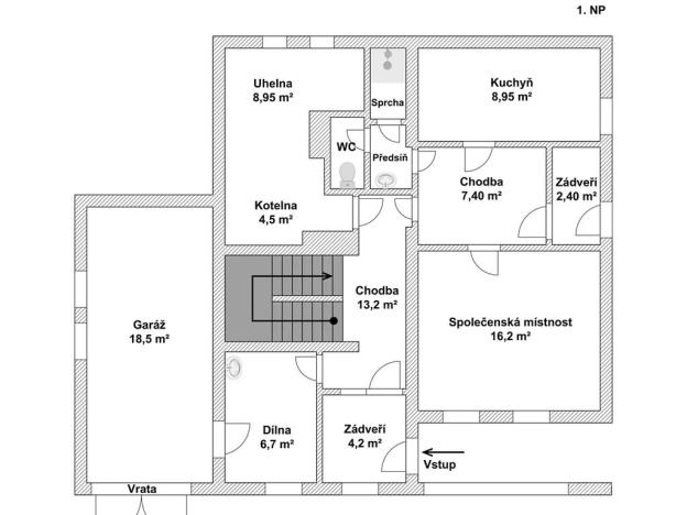
Dům nabízí byt o dispozici 3+1, se dvěma koupelnami. V přízemí je v levé části prostorná garáž, přístupná i z domu, dřevník, kotelna s kotlem na tuhá paliva, v pravé části je velká kuchyň s možností uskladňování potravin a společenskou místností cca pro 15 lidí, které mohou využívat hosté ubytovaní v pěti apartmánech přistavěných v zadní části domu. Dva apartmány jsou dvoulůžkové, dva čtyřlůžkové a jeden třílůžkový. Všechny apartmány mají své vlastní koupelny se sprchou a WC.

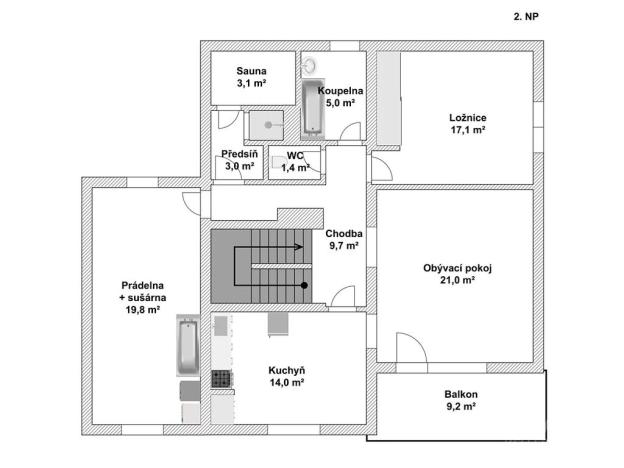
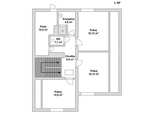
Byt majitele obsahuje v prvním patře kuchyň, obývací pokoj spojený s ložnicí, na chodbě jsou dvě koupelny, jedna s vanoua druhá se sprchovým koutem, v druhém patře je dětský pokoj s patrovým spaním. Vedle tohoto pokoje je místnost, která byla využívaná jako prádelna.

Prádelna je zároveň i jedním ze vstupů do přistavěné části, ve které jsou apartmány na pronájem. Do této části je i samostatný vstup zvenku domu. Každý apartmán je zařízen postelemi podle potřebného počtu osob, koupelnou se sprchovým koutem, zátěžovými koberci. 

K domu patří trojgaráž o podlahové ploše 65m2, postavená hned u silnice. Zvenku jsou to tři samostatné vjezdy, ale uvnitř je to jeden celek, kdy v jedné části je i zdviž pro opravování aut. Zároveň další možnost parkování je vedle domu pod přístřeškem, další varianta je i v garáži domu, poslední možnost je i parkování přímo před domem.

Nad trojgaráží je vybudovaný jeden apartmán o podlahové ploše 49m2. Ten je nejnovější a nepotřebuje žádné opravy či rekonstrukce. V tomto apartmánu se v koupelně topí podlahovým topením, ostatní části vytopí krb. Je tady i moderně zařízená kuchyňská linka, v koupelně je sprchový kout.

Dům je v obyvatelném stavu, ale určitě potřebuje rekonstrukci. Užitná ploccha je 570m2, plocha pozemku je 968m2. Na pozemku je venkovní posezení. Penzion disponuje kotelnou s dvěma samostatnými okruhy na topení. . Voda je zajištěna vlastní vrtanou studnou, elektřina je 220V i 380V jak v domě, tak v garážích.

Železnorudsko leží 5 km od hranic s Německem, nabízí desítky kilometrů strojově upravovaných běžeckých tras. Na 8 km sjezdových tratí najde místo každý, od začátečníků až pro profesionální lyžaře. Špičák je nejen rájem pro lyžaře, ale i skvělým místem pro letní rodinné dovolené. V obci jekompletní občanská vybavenost, obchody, školka, škola, restaurace, pošta, bankomaty, dopravní spojení - vlak, autobus, spousta cyklostezek.

Pro domluvení prohlídky mne neváhejte kontaktovat, ráda vás nemovitostí provedu.

Makléř

Máte zájem o tento dům?

Tímto, v souladu s nařízením Evropského parlamentu a Rady (EU) 2016/679, v platném znění, prohlašuji, že mi je alespoň 16 let a uděluji tak svůj souhlas se zpracováním zadaných údajů (jméno, telefon, e-mail, ip adresa) společnosti B3 Technology, s.r.o., IČ: 07330600, se sídlem Novostavby 126/23, 435 11 Lom (správce dat), za účelem předání dotazu z tohoto formuláře Vámi vybranému inzerentovi a zpětného kontaktování mé osoby. Osobní údaje bude správce zpracovávat manuálně i automaticky přímo prostřednictvím svých zaměstnanců. Informace předané tímto formulářem budou uloženy v databázi správce maximálně po dobu 10 let. Odvolání souhlasu s uložením a zpracováním poskytnutých dat lze e-mailem na info@origo-reality.cz. V případě podezření na neoprávněné použití Vámi poskytnutých údajů máte právo předat podnět k šetření Úřadu pro ochranu osobních údajů. Více informací
Chystáte se prodat nemovitost?
Pomůžeme Vám!

Přihlášení k odběru

Nenechte si ujít nejnovější nabídky prodeje rodinných domů v Železné Rudě.