Prodej rodinného domu, Mladá Boleslav, 136 m2

Mladá Boleslav

9 269 000 Kč
/za nemovitost
včetně DPH
Hypotéka od 41 427 Kč /měs. Chci hypotéku

Parametry domu

AdresaMladá Boleslav
ID01480
StavbaCihlová
Stav objektuProjekt
Druh objektuSamostatný
Užitná plocha136 m2
Plocha pozemku1200 m2
Třída energetické náročnostiB - Velmi úsporná
Ukazatel energetické náročnosti126 kWh/m2 za rok

Origo partneři v Mladé Boleslavi

Popis

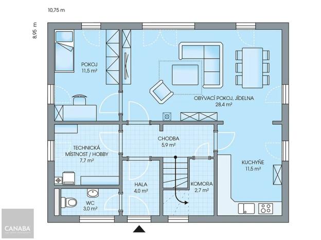
Prodám nízkoenergetický rodinný dům v těsné blízkosti Mladé Boleslavi o dispozici 5+1 s podlahovou plochou 135,7 m².

Bohatý vnitřní prostor zahrnuje obývací pokoj s prakticky odděleným kuchyňským koutem, ložnici a 2 dětské pokoje. Součástí rodinného domu je zádveří se šatnou, technická místnost, samostatná toaleta a samostatná koupelna.

Dům bude za uvedenou cenu kompletně stavebně dokončen, je plně funkční vytápění i osvětlení domu. Je připraven k individuálnímu výběru interiéru - obkladů, dlažeb, zařizovacích předmětů, podlahových krytin a interiérových dveří a nový majitel si jej může dokončit podle svých představ. Případně je možné si dokončení interiérových prací přiobjednat - zajistíme pro vaše pohodlí dokončení celé stavby na klíč.

K pozemku jsou přivedeny inženýrské sítě: voda, elektro, kanalizace. V celkové ceně není zahrnuta spodní stavba a domovní přípojky inženýrských sítí.

Pozemek se nachází v obci Písková Lhota v těsné blízkosti Mladé Boleslavi. Jedná se o rovinatý pozemek ve tvaru čtverce o výměře 1200 m². Uvedená cena je včetně pozemku a DPH. Doba výstavby je 4 - 5 měsíců.

Obec Písková Lhota má standardní občanskou vybavenost včetně mateřské a základní školy. Z obce je dobrá dostupnost do Mladé Boleslavi i do Prahy. Autem jste za 5 minut v Mladé Boleslavi a za 20 minut v Praze. Okolní příroda nabízí bohaté možnosti pro volný čas - pro turistiku, cyklovýlety nebo houbaření.

Makléř

Máte zájem o tento dům?

Tímto, v souladu s nařízením Evropského parlamentu a Rady (EU) 2016/679, v platném znění, prohlašuji, že mi je alespoň 16 let a uděluji tak svůj souhlas se zpracováním zadaných údajů (jméno, telefon, e-mail, ip adresa) společnosti B3 Technology, s.r.o., IČ: 07330600, se sídlem Novostavby 126/23, 435 11 Lom (správce dat), za účelem předání dotazu z tohoto formuláře Vámi vybranému inzerentovi a zpětného kontaktování mé osoby. Osobní údaje bude správce zpracovávat manuálně i automaticky přímo prostřednictvím svých zaměstnanců. Informace předané tímto formulářem budou uloženy v databázi správce maximálně po dobu 10 let. Odvolání souhlasu s uložením a zpracováním poskytnutých dat lze e-mailem na info@origo-reality.cz. V případě podezření na neoprávněné použití Vámi poskytnutých údajů máte právo předat podnět k šetření Úřadu pro ochranu osobních údajů. Více informací
Chystáte se prodat nemovitost?
Pomůžeme Vám!

Přihlášení k odběru

Nenechte si ujít nejnovější nabídky prodeje rodinných domů v Mladé Boleslavi.