Prodej rodinného domu, Mladá Boleslav, 132 m2

Mladá Boleslav, Chrást

11 500 000 Kč
/za nemovitost
Hypotéka od 51 398 Kč /měs. Chci hypotéku

Parametry domu

AdresaMladá Boleslav, Chrást
ID0083
StavbaSmíšená
Stav objektuVelmi dobrý
Druh objektuŘadový
Užitná plocha132 m2
Zastavěná plocha95 m2
Podlahová plocha153 m2
Plocha pozemku254 m2
Třída energetické náročnostiA - Mimořádně úsporná
OdpadVeřejná kanalizace
Topné tělesoKrbová kamna
Zdroj teplé vodyElektrokotel

Origo partneři v Mladé Boleslavi

Popis

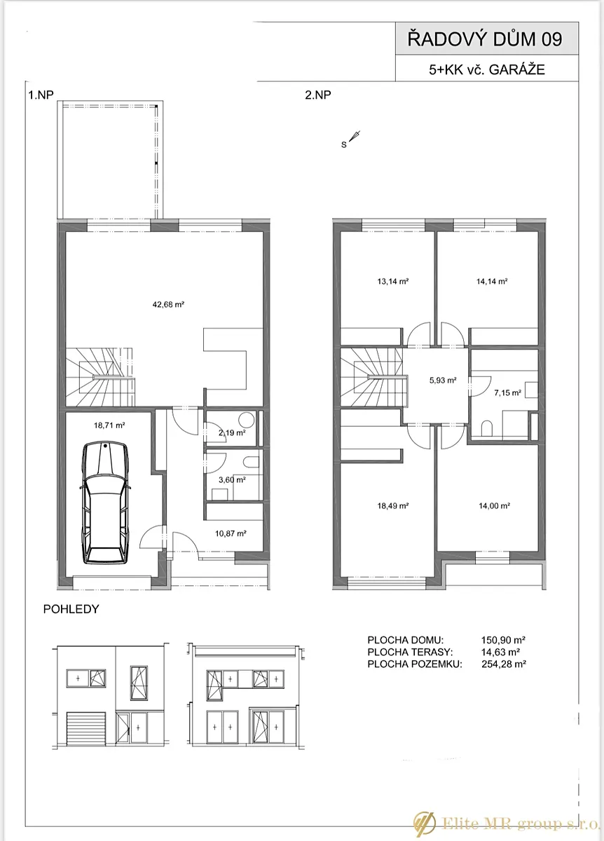
Prodej novostavby rodinného domu 5+kk s užitnou plochou 132 m², terasou 15 m² a garáží 19 m² na pozemku o výměře 254 m². Stav odpovídá fotografiím a půdorys s přesnými rozměry je k dispozici u posledního obrázku.

Dům se nachází na klidném místě se skvělou dostupností do města i na dálnici. Dispozice 5+kk nabízí komfortní zázemí pro rodinu, důraz na praktičnost a úložné prostory. Obývací pokoj s kuchyňským koutem navazuje na terasu do zahrady, v obývacím pokoji jsou instalována krbová kamna, která v zimě zajistí příjemnou atmosféru a doplní velmi nízké provozní náklady domu. Ložnice a dětské pokoje poskytují dostatek soukromí, samozřejmostí jsou dvě koupelny a technické zázemí.

Garáž o ploše 19 m² pohodlně pojme vůz i vybavení, před domem jsou navíc další dvě parkovací místa. Terasa orientovaná do zahrady nabízí příjemné posezení a prostor pro rodinný odpočinek. Dům je připraven k nastěhování bez nutnosti větších úprav.

S financování Vám rádi pomůžeme.

Makléř

Máte zájem o tento dům?

Tímto, v souladu s nařízením Evropského parlamentu a Rady (EU) 2016/679, v platném znění, prohlašuji, že mi je alespoň 16 let a uděluji tak svůj souhlas se zpracováním zadaných údajů (jméno, telefon, e-mail, ip adresa) společnosti B3 Technology, s.r.o., IČ: 07330600, se sídlem Novostavby 126/23, 435 11 Lom (správce dat), za účelem předání dotazu z tohoto formuláře Vámi vybranému inzerentovi a zpětného kontaktování mé osoby. Osobní údaje bude správce zpracovávat manuálně i automaticky přímo prostřednictvím svých zaměstnanců. Informace předané tímto formulářem budou uloženy v databázi správce maximálně po dobu 10 let. Odvolání souhlasu s uložením a zpracováním poskytnutých dat lze e-mailem na info@origo-reality.cz. V případě podezření na neoprávněné použití Vámi poskytnutých údajů máte právo předat podnět k šetření Úřadu pro ochranu osobních údajů. Více informací
Chystáte se prodat nemovitost?
Pomůžeme Vám!

Přihlášení k odběru

Nenechte si ujít nejnovější nabídky prodeje rodinných domů v Mladé Boleslavi.