Pronájem výrobních prostor, Plzeň - Lobzy, Revoluční, 635 m2

Revoluční, Plzeň, Lobzy

57 000 Kč
/za měsíc
+ energie a služby, 3x vratná kauce, 1x provize RK, + DPH pro plátce DPH
Získejte výhodnou HYPOTÉKU Chci hypotéku

Parametry nemovitosti

AdresaRevoluční, Plzeň, Lobzy
ID905360
StavbaCihlová
Stav objektuDobrý
VybavenoNe
Lokalita objektuCentrum obce
VlastnictvíOsobní
Užitná plocha635 m2

Origo partneři v Plzni

Podlahy

Stěhovací služby

Popis

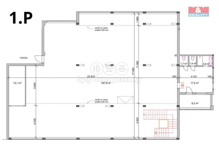
Pronájem výrobních prostor o celkové výměře 634,9 m2, který se rozkládá ve dvou podlažích ( 242,5 m2 - přízemí a 392,4 m2 - 1. patro) se nachází v Plzni, roh ulice Rokycanská a Revoluční. Prostory jsou vhodné jak na výrobu, tak skladování s možností zásobování ze zadního traktu objektu. K nájemnému se hradí zálohy na energie a služby. Při podpisu smlouvy s skládá 3x vratná kauce a provize RK. Cena pronájmu je uvedena bez DPH.

Makléř

Máte zájem o tuto nemovistost?

Tímto, v souladu s nařízením Evropského parlamentu a Rady (EU) 2016/679, v platném znění, prohlašuji, že mi je alespoň 16 let a uděluji tak svůj souhlas se zpracováním zadaných údajů (jméno, telefon, e-mail, ip adresa) společnosti B3 Technology, s.r.o., IČ: 07330600, se sídlem Novostavby 126/23, 435 11 Lom (správce dat), za účelem předání dotazu z tohoto formuláře Vámi vybranému inzerentovi a zpětného kontaktování mé osoby. Osobní údaje bude správce zpracovávat manuálně i automaticky přímo prostřednictvím svých zaměstnanců. Informace předané tímto formulářem budou uloženy v databázi správce maximálně po dobu 10 let. Odvolání souhlasu s uložením a zpracováním poskytnutých dat lze e-mailem na info@origo-reality.cz. V případě podezření na neoprávněné použití Vámi poskytnutých údajů máte právo předat podnět k šetření Úřadu pro ochranu osobních údajů. Více informací
Chystáte se prodat nemovitost?
Pomůžeme Vám!

Přihlášení k odběru

Nenechte si ujít nejnovější nabídky pronájmu výrobních prostor v Plzni.