Prodej rodinného domu, Praha - Pitkovice, Křemenáčová, 329 m2

Křemenáčová, Praha, Pitkovice

38 800 000 Kč
/za nemovitost
včetně provize, včetně právního servisu
Hypotéka od 173 413 Kč /měs. Chci hypotéku

Parametry domu

AdresaKřemenáčová, Praha, Pitkovice
ID01546
StavbaCihlová
Stav objektuVelmi dobrý
VybavenoAno
Druh objektuSamostatný
Lokalita objektuKlidná část obce
Užitná plocha329 m2
Zastavěná plocha246 m2
Plocha pozemku1277 m2
Plocha zahrady1031 m2
Třída energetické náročnostiB - Velmi úsporná
Ukazatel energetické náročnosti77 kWh/m2 za rok
Elektřina230V
OdpadVeřejná kanalizace
DopravaDálnice, Silnice, MHD, Autobus
VodaVodovod
Topné tělesoKrb
Zdroj topeníTepelné čerpadlo
Zdroj teplé vodyTepelné čerpadlo
Garáž
Bezbarierový přístup

Origo partneři v Praze 10

Stěhovací služby

Výkup a prodej starého nábytku

Popis

Společnost „Am House“ si dovoluje nabídnout k prodeji exkluzivní rodinný dům o dispozici 6+kk s užitnou plochou 329 m2, situovaný na pozemku o rozloze 1277 m2 v klidné a žádané lokalitě Praha – Pitkovice. Tento moderní dům splňuje nejvyšší standardy bydlení a poskytuje maximální komfort pro rodinu.


Dispozice domu:

Přízemí:

-Prostorný obývací pokoj (33,60 m2) s krbem, propojený s kuchyní a jídelnou (23,00 m2)
-Wellness zóna (52,78 m2) s krytým bazénem, saunou, se sprchovým koutem a WC
-Technická místnost (6,84 m2)
-Ložnice 1 (16,24 m2)
-Koupelna + WC
-Šatna (8,64 m2)
-Zádveří (4,80 m2)
-Garáž pro dvě auta (43,31 m2)

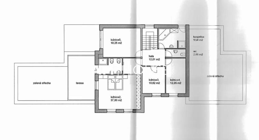
1. patro:

-Ložnice 2 (37,80 m2) + koupelna a WC (6,31 m2)
-Ložnice 3 (10,62 m2)
-Ložnice 4 (12,05 m2)
-Ložnice 5 (19,25 m2)
-Koupelna (9,54 m2) + samostatné WC (2,86 m2)
-Hala (12,01 m2)
-Terasa (21 m2)


Vybavení a technologie:

-Vysoce kvalitní materiály – dům byl postaven s důrazem na detail a použití prémiových materiálů
-Podlahové vytápění pro maximální komfort
-Moderní systém vytápění – tepelné čerpadlo
-Velká okna poskytující dostatek světla a propojení s přírodou
-Wellness zóna s bazénem a saunou


Lokalita – Praha – Pitkovice:

Pitkovice je klidná a vyhledávaná rezidenční čtvrť na jihovýchodě Prahy, která kombinuje výhody městského života s blízkostí přírody. V okolí se nachází parky, cyklostezky a zelené plochy, ideální pro relaxaci a aktivní životní styl. Lokalita nabízí výbornou občanskou vybavenost – v blízkosti jsou školy, školky, obchody a restaurace.


Tento dům je ideální volbou pro ty, kteří hledají luxusní a komfortní bydlení v klidné části Prahy s veškerou občanskou vybaveností na dosah.


Pro více informací ohledně nemovitostí nebo domluvení prohlídky domu nás neváhejte kontaktovat. Rádi se Vám budeme věnovat.

Makléř

Máte zájem o tento dům?

Tímto, v souladu s nařízením Evropského parlamentu a Rady (EU) 2016/679, v platném znění, prohlašuji, že mi je alespoň 16 let a uděluji tak svůj souhlas se zpracováním zadaných údajů (jméno, telefon, e-mail, ip adresa) společnosti B3 Technology, s.r.o., IČ: 07330600, se sídlem Novostavby 126/23, 435 11 Lom (správce dat), za účelem předání dotazu z tohoto formuláře Vámi vybranému inzerentovi a zpětného kontaktování mé osoby. Osobní údaje bude správce zpracovávat manuálně i automaticky přímo prostřednictvím svých zaměstnanců. Informace předané tímto formulářem budou uloženy v databázi správce maximálně po dobu 10 let. Odvolání souhlasu s uložením a zpracováním poskytnutých dat lze e-mailem na info@origo-reality.cz. V případě podezření na neoprávněné použití Vámi poskytnutých údajů máte právo předat podnět k šetření Úřadu pro ochranu osobních údajů. Více informací
Chystáte se prodat nemovitost?
Pomůžeme Vám!

Přihlášení k odběru

Nenechte si ujít nejnovější nabídky prodeje rodinných domů v Praze 10.