Prodej rodinného domu, Praha, Výtoňská, 119 m2

Výtoňská, Praha, Nedvězí u Říčan

17 750 000 Kč
/za nemovitost
Hypotéka od 79 332 Kč /měs. Chci hypotéku

Parametry domu

AdresaVýtoňská, Praha, Nedvězí u Říčan
ID24377
StavbaCihlová
Stav objektuNovostavba
VybavenoAno
Druh objektuSamostatný
Lokalita objektuKlidná část obce
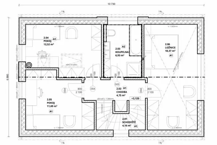
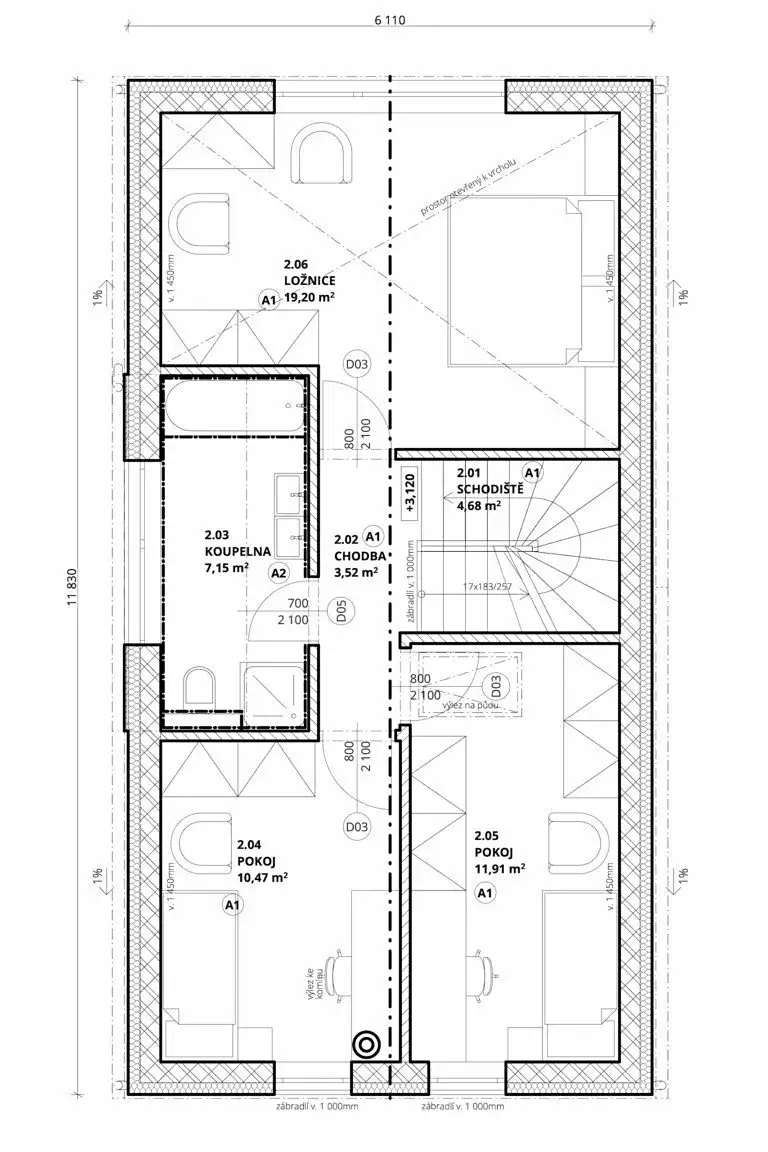
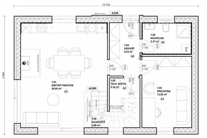
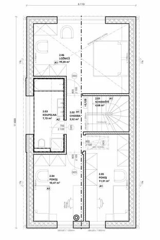
Užitná plocha119 m2
Plocha pozemku614 m2
Třída energetické náročnostiB - Velmi úsporná
Ukazatel energetické náročnosti67.1 kWh/m2 za rok
Elektřina230V
OdpadVeřejná kanalizace
KomunikaceDlážděná, Asfaltová
DopravaMHD
VodaVodovod
Topné tělesoPodlahové vytápění, Krbová kamna
Zdroj topeníTepelné čerpadlo, Krbová kamna
Zdroj teplé vodyTepelné čerpadlo
Parkování

Origo partneři v Praze 10

Stěhovací služby

Výkup a prodej starého nábytku

Pojištění a finance

Popis

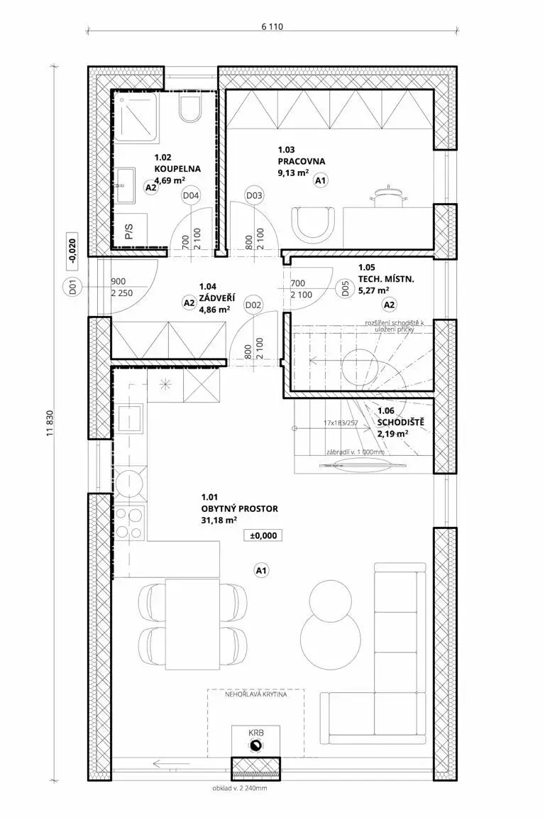
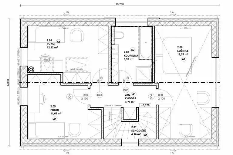
DŮM 5+1
Prodej novostavby rodinného domu na pozemku o ploše 615m² v lukrativní lokalitě Praha 10 – Nedvězí u Říčan, zavedena PID doprava.

AKCE: Vybavení domu v hodnotě 700 000,- Kč dle vlastního výběru.

Energeticky úsporný dům (PENB „B“) je vybaven tepelným čerpadlem s podlahovým vytápěním, rekuperací vzduchu, přípravou na krb a přípravou pro solární panely. Dům je o velikosti 5+1 s přístřeškem pro parkování 2 aut.



Lokalita přímo sousedí s přírodní rezervací Rokytka s řadou turistických a cyklistických tras. Nabízíme Vám tak možnost moderního, úsporného i útulného bydlení v prostředí těsně spjatém s přírodou.



Cesta do centra Prahy Vám autem nezabere více jak 20 minut.

Za 8 minut jste na dálnici D1.

Pražská městská hromadná doprava je rovněž zavedena 50m od domu.

Na metro Háje jezdí autobus (konkrétně linka č. 227).



Veškeré služby, supermarkety, školy a školky, poštu i restaurace naleznete v sousedících Říčanech.



2. ETAPA zahrnuje prodej domů, C1-C3 a A1, A3-A5.


Pro více informací nás neváhejte kontaktovat.


Možno řešit hypotékou, úvěrem, nebo v hotovosti.

Přímý prodej developera

Makléř

Máte zájem o tento dům?

Tímto, v souladu s nařízením Evropského parlamentu a Rady (EU) 2016/679, v platném znění, prohlašuji, že mi je alespoň 16 let a uděluji tak svůj souhlas se zpracováním zadaných údajů (jméno, telefon, e-mail, ip adresa) společnosti B3 Technology, s.r.o., IČ: 07330600, se sídlem Novostavby 126/23, 435 11 Lom (správce dat), za účelem předání dotazu z tohoto formuláře Vámi vybranému inzerentovi a zpětného kontaktování mé osoby. Osobní údaje bude správce zpracovávat manuálně i automaticky přímo prostřednictvím svých zaměstnanců. Informace předané tímto formulářem budou uloženy v databázi správce maximálně po dobu 10 let. Odvolání souhlasu s uložením a zpracováním poskytnutých dat lze e-mailem na info@origo-reality.cz. V případě podezření na neoprávněné použití Vámi poskytnutých údajů máte právo předat podnět k šetření Úřadu pro ochranu osobních údajů. Více informací
Chystáte se prodat nemovitost?
Pomůžeme Vám!
Theleadway banner

Přihlášení k odběru

Nenechte si ujít nejnovější nabídky prodeje rodinných domů v Praze 10.