Prodej rodinného domu, Plzeň, Plzenecká, 245 m2

Plzenecká, Plzeň, Východní Předměstí

17 900 000 Kč
/za nemovitost
Hypotéka od 80 002 Kč /měs. Chci hypotéku

Parametry domu

AdresaPlzenecká, Plzeň, Východní Předměstí
ID0003-NP04612
StavbaCihlová
Stav objektuVelmi dobrý
VybavenoAno
Druh objektuŘadový
Lokalita objektuKlidná část obce
Užitná plocha245 m2
Zastavěná plocha121 m2
Plocha pozemku617 m2
Třída energetické náročnostiC - Úsporná
Elektřina230V, 400V
OdpadVeřejná kanalizace
KomunikaceAsfaltová
TelekomunikaceInternet
DopravaVlak, Dálnice, Silnice, MHD, Autobus
VodaVodovod
Topné tělesoPodlahové vytápění
Zdroj topeníTepelné čerpadlo
Zdroj teplé vodyTepelné čerpadlo
Sklep
Parkování
Bazén

Origo partneři v Plzni

Stěhovací služby

Popis

Nabízíme k prodeji exkluzivní vilu v žádané lokalitě města Plzně, konkrétně na Slovanech v Plzenecké ulici. Jedná se o čtyřpatrovou, kompletně zrekonstruovanou a nadstandardně vybavenou nemovitost, která nadchne i ty nejnáročnější klienty. Tato nemovitost nabízí nádherných 245 m2 podlahové plochy a 617 m2 pozemku, na kterém se nachází krytý a bezúdržbový bazén se slanou vodou, jedná se tedy o bezchlórovou filtraci. Déle je na pozemku zahradní domek, skleník a spousta dalšího prostoru k využití. Objekt je monitorován kamerovým systémem.
V domě je velice kvalitní tepelné čerpadlo IVT, které zajišťuje teplo i ohřev vody, podlahové topení je rozvedeno od suterénu až po podkroví. K ohřevu bazénu je použito samostatné tepelné čerpadlo značky Rapid. Každý detail byl promyšlen tak, aby splňoval vysoké nároky na komfort a pohodlí. Stav objektu je velmi dobrý, zateplení a kompletní rekonstrukce proběhla v roce 2013. Plyn je zaveden do domu, ale není využíván. Správnost zvolených technologií a materiálů k zateplení, potvrzují měsíční náklady na provoz domu, které jsou pouze okolo 7.000,- Kč.
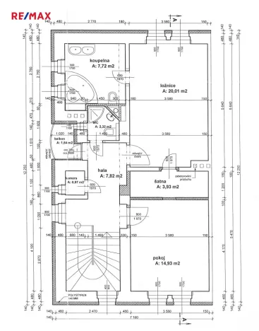
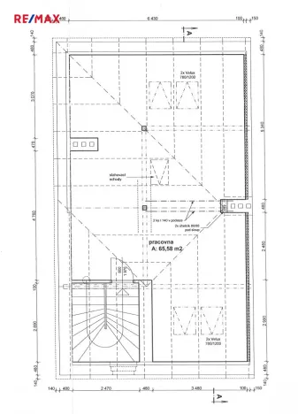
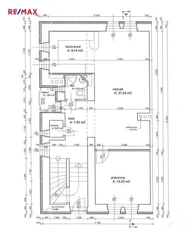
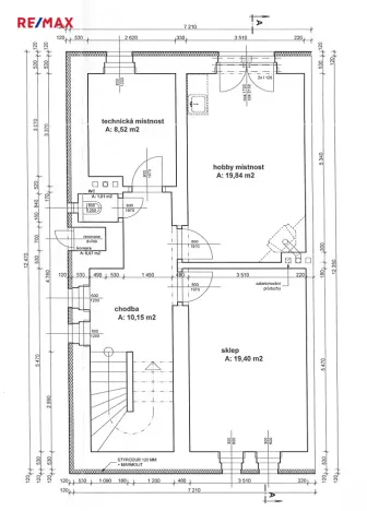
V suterénu domu se nachází prádelna s technickou místností, studený sklep, wc, prostorná párty místnost a wellness místnost se saunou, vířivkou a parní sprchou. V prvním nadzemním podlaží nalezneme vstupní halu, obývací pokoj s kuchyňským koutem, kancelář či pokoj, sprchu s toaletou a spíž. V druhém nadzemním podlaží se nachází pokoj, sprcha s toaletou, spíž a ložnice se vstupem do šatny a do koupelny, která vás uchvátí velikostí vany a nadchne shozem prádla do prádelny, která je v suterénu domu. Ve třetím nadzemním podlaží, tedy v podkroví je velká odpočinková místnost, kterou lze rozdělit na další dva pokoje, nebo zde vybudovat samostatný byt, jak zamýšleli majitelé, veškeré sítě jsou vyvedeny.
Nyní je dispozice domu 6+kk a rozdělením podkroví by mohla vzniknout dispozice 7+kk.
Umístění této vily v klidné rezidenční lokalitě je opravdu skvělé a nabízí kombinaci klidu a snadné dostupnosti do centra města. Parkovat lze na pozemku u domu. V blízkosti je veškerá občanská vybavenost, školy, školky, obchody, restaurace, MHD, plavecký bazén a sportovní hřiště. Nemovitost je samozřejmě možné využít i ke komerčním účelům.
Pokud jste nároční, máte velkou rodinu a chcete žít ve městě a zároveň v klidu, tak Vám tuto nemovitost ráda představím osobně.
Prodávající si vyhrazuje právo vybrat kupujícího na základě jím zvolených kritérií.

Makléř

Máte zájem o tento dům?

Tímto, v souladu s nařízením Evropského parlamentu a Rady (EU) 2016/679, v platném znění, prohlašuji, že mi je alespoň 16 let a uděluji tak svůj souhlas se zpracováním zadaných údajů (jméno, telefon, e-mail, ip adresa) společnosti B3 Technology, s.r.o., IČ: 07330600, se sídlem Novostavby 126/23, 435 11 Lom (správce dat), za účelem předání dotazu z tohoto formuláře Vámi vybranému inzerentovi a zpětného kontaktování mé osoby. Osobní údaje bude správce zpracovávat manuálně i automaticky přímo prostřednictvím svých zaměstnanců. Informace předané tímto formulářem budou uloženy v databázi správce maximálně po dobu 10 let. Odvolání souhlasu s uložením a zpracováním poskytnutých dat lze e-mailem na info@origo-reality.cz. V případě podezření na neoprávněné použití Vámi poskytnutých údajů máte právo předat podnět k šetření Úřadu pro ochranu osobních údajů. Více informací
Chystáte se prodat nemovitost?
Pomůžeme Vám!

Přihlášení k odběru

Nenechte si ujít nejnovější nabídky prodeje rodinných domů v Plzni.