Prodej rodinného domu, Nepoměřice, 188 m2

Nepoměřice

4 990 000 Kč
/za nemovitost
Hypotéka od 22 302 Kč /měs. Chci hypotéku

Parametry domu

AdresaNepoměřice
ID903683
StavbaSmíšená
Stav objektuDobrý
VybavenoNe
Druh objektuSamostatný
Lokalita objektuKlidná část obce
VlastnictvíOsobní
Užitná plocha188 m2
Plocha pozemku1079 m2

Origo partneři v Nepoměřicích

Popis

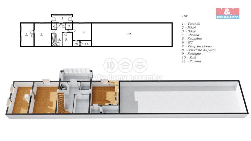
Hledáte dvougenerační bydlení, bydlení pro velkou rodinu nebo bydlení spojené s podnikáním? Nabízíme Vám ke koupi zemědělskou usedlost v obci Nepoměřice, v okrese Kutná hora. Rodinný dům se zemědělskými přístavbami je vhodný k trvalému bydlení, k podnikání či jako investiční příležitost. Nemovitost se rozkládá na pozemku o velikosti 1079 m2 a je rozdělena na dvě části - obytnou a zemědělskou. Dům prošel částečnou rekonstrukcí. V přízemí obytné části se nachází bytová jednotka 2+1 s koupelnou a sprchovým koutem, samostatným WC a vstupem do sklípku. V patře pak stejná dispozice 2+1 a koupelna s vanou i WC. Vytápění domu zajišťují krbová kamna a el. přímotopy, voda z kopané studny, ohřev vody řešen bojlerem. Odpad sveden do žumpy. Základní občanská vybavenost přímo v obci. Financování Vám pomůže zajistit naše hypocentrum. Pro více informací kontaktujte makléřku. Těším se na Vás!

Makléř

Máte zájem o tento dům?

Tímto, v souladu s nařízením Evropského parlamentu a Rady (EU) 2016/679, v platném znění, prohlašuji, že mi je alespoň 16 let a uděluji tak svůj souhlas se zpracováním zadaných údajů (jméno, telefon, e-mail, ip adresa) společnosti B3 Technology, s.r.o., IČ: 07330600, se sídlem Novostavby 126/23, 435 11 Lom (správce dat), za účelem předání dotazu z tohoto formuláře Vámi vybranému inzerentovi a zpětného kontaktování mé osoby. Osobní údaje bude správce zpracovávat manuálně i automaticky přímo prostřednictvím svých zaměstnanců. Informace předané tímto formulářem budou uloženy v databázi správce maximálně po dobu 10 let. Odvolání souhlasu s uložením a zpracováním poskytnutých dat lze e-mailem na info@origo-reality.cz. V případě podezření na neoprávněné použití Vámi poskytnutých údajů máte právo předat podnět k šetření Úřadu pro ochranu osobních údajů. Více informací
Chystáte se prodat nemovitost?
Pomůžeme Vám!

Přihlášení k odběru

Nenechte si ujít nejnovější nabídky prodeje rodinných domů v Nepoměřicích.