Prodej rodinného domu, Čáslav, Mikoláše Alše, 184 m2 (ID: 1912551)

Mikoláše Alše, Čáslav-Nové Město

6 495 000 Kč
/za nemovitost
včetně provize, včetně právního servisu
Hypotéka od 29 029 Kč /měs. Chci hypotéku

Parametry domu

AdresaMikoláše Alše, Čáslav-Nové Město
ID00180
StavbaCihlová
Stav objektuVelmi dobrý
VybavenoNe
Druh objektuV bloku
Lokalita objektuCentrum obce
Užitná plocha184 m2
Zastavěná plocha174 m2
Podlahová plocha250 m2
Plocha pozemku448 m2
Třída energetické náročnostiG - Mimořádně nehospodárná
Ukazatel energetické náročnosti312 kWh/m2 za rok
Elektřina230V, 400V
PlynPlynovod
OdpadVeřejná kanalizace
KomunikaceAsfaltová
DopravaVlak, Silnice, MHD, Autobus
VodaVodovod
Topné tělesoRadiátory
Zdroj topeníPlynový kotel
Zdroj teplé vodyPlynová karma
Garáž
Sklep
Výtah

Origo partneři v Čáslavi

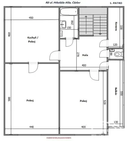
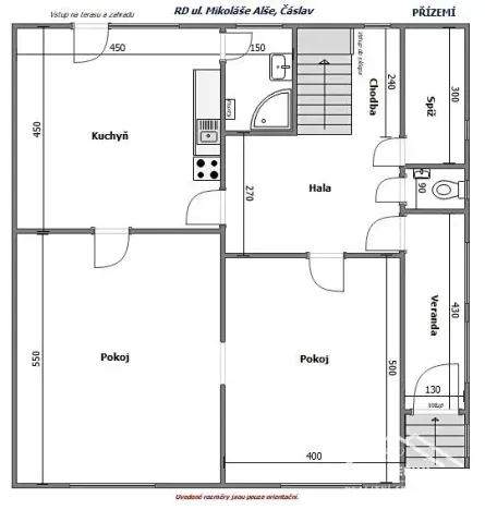
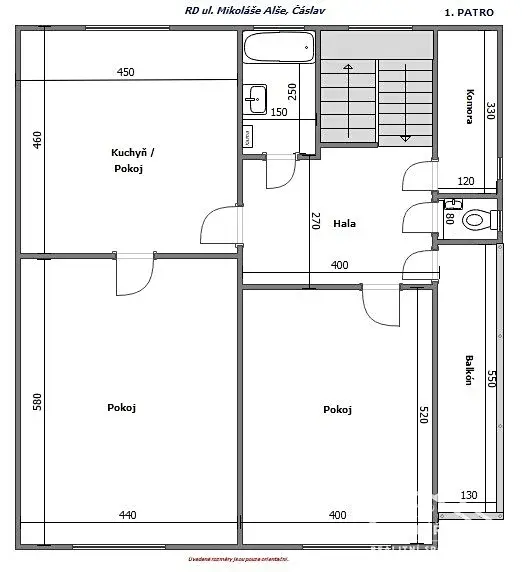
Popis

Nabízím dům v naší krásné Čáslavi, vhodný zejména pro větší rodinu, lidi podnikající z domova, či drobného řemeslníka apod. Velký dvoupatrový dům s užitnou plochou 185 m2 disponuje také prostornou garáží a dílnou, což může být pro někoho velké plus. Další výhodou může být možnost rozdělit dům na dvě bytové jednotky, ať už pro investiční využití k pronájmu, či vícegenerační soužití.
Ale začněme DOMEM - ten byl přizpůsoben k bydlení dvou rodin, tzn., že po vstupu z verandy najdeme v přízemí halu, prostornou kuchyň s jídelním koutem, dva pokoje, koupelnu, samostatné WC a komoru. A úplně to samé se nachází v prvním patře, jen kuchyňská linka je již odstraněná. Z haly v horním patře je vstup na lodžii. Dům je z poloviny podsklepený a 3 místnosti sestávající z kotelny, skladu a sklepa na ovoce, jsou suché a udržované. Z kuchyně v přízemí se vstupuje na zahradu přes zastřešenou, dlážděnou terasu, která díky své orientaci na jihozápad poskytne příjemnou relaxaci hlavně odpoledne a k večeru. Nemovitost je v původním stavu, napojena na všechny IS, vytápění je zajištěno plynovým kotlem. Voda a kanalizace jsou obecní, na zalévání zahrady je k dispozici studna.
A nyní již k ZAHRADĚ - je rovinatá, opečovávaná a osázená ovocnými stromy. Její velikost o výměre 274 m2 je tak akorát na využití pro odpočinek i na údržbu. Ze dvou stran je odstíněna od sousedů vlastní vedlejší stavbou a garážemi od sousedního objektu, které ovšem zahradu nijak nestíní.
A poslední k popisu je GARÁŽ - tento samostatný objekt ukrývá garáž s výměrou 19 a dílnu s 15 m2. Oba prostory jsou ve výborném stavu, se zavedenou elektřinou.
Na rekonstrukci lze využít dotační program Zelená úsporám.
Nemovitost se nachází blízko centra města, kousek od vlakového i autobusového nádraží, prostě vše co potřebujete, ať už jsou to školy, školky, obchody, doprava, je na dosah ruky v pěší vzdálenosti.

Makléř

Máte zájem o tento dům?

Tímto, v souladu s nařízením Evropského parlamentu a Rady (EU) 2016/679, v platném znění, prohlašuji, že mi je alespoň 16 let a uděluji tak svůj souhlas se zpracováním zadaných údajů (jméno, telefon, e-mail, ip adresa) společnosti B3 Technology, s.r.o., IČ: 07330600, se sídlem Novostavby 126/23, 435 11 Lom (správce dat), za účelem předání dotazu z tohoto formuláře Vámi vybranému inzerentovi a zpětného kontaktování mé osoby. Osobní údaje bude správce zpracovávat manuálně i automaticky přímo prostřednictvím svých zaměstnanců. Informace předané tímto formulářem budou uloženy v databázi správce maximálně po dobu 10 let. Odvolání souhlasu s uložením a zpracováním poskytnutých dat lze e-mailem na info@origo-reality.cz. V případě podezření na neoprávněné použití Vámi poskytnutých údajů máte právo předat podnět k šetření Úřadu pro ochranu osobních údajů. Více informací
Chystáte se prodat nemovitost?
Pomůžeme Vám!

Přihlášení k odběru

Nenechte si ujít nejnovější nabídky prodeje rodinných domů v Čáslavi.