Prodej rodinného domu, Liberec, 200 m2

Liberec XX-Ostašov

15 068 000 Kč
/za nemovitost
včetně DPH
Hypotéka od 67 345 Kč /měs. Chci hypotéku

Parametry domu

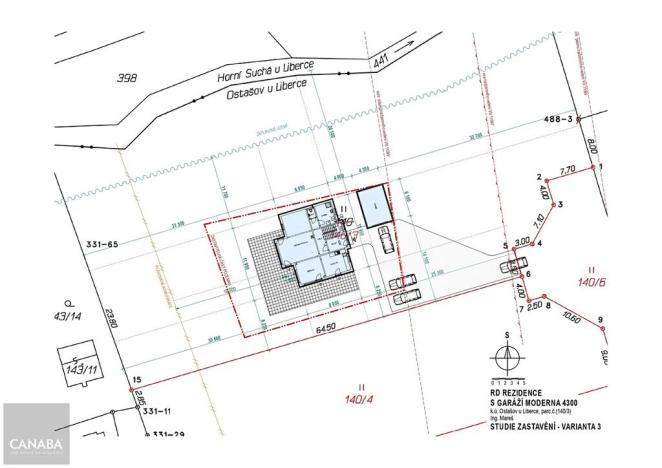
AdresaLiberec XX-Ostašov
ID01479
StavbaCihlová
Stav objektuProjekt
Druh objektuSamostatný
Užitná plocha200 m2
Plocha pozemku2947 m2
Třída energetické náročnostiB - Velmi úsporná
Ukazatel energetické náročnosti102 kWh/m2 za rok

Origo partneři v Liberci

Rekonstrukce

Úklidové služby

Popis

Prodám exkluzivní nízkoenergetický rodinný dům o velikosti 7+1 s podlahovou plochou 199,8 m2.

V 1.NP se nachází vstupní hala, velký obývací pokoj propojený s jídelnou a kuchyní, hobby místnost, samostatná toaleta a schodiště vedoucí do 2.NP na horní galerii s přímým vstupem do prosvětlené ložnice s balkonem, šatnou a koupelnou, dětského pokoje, pracovny a koupelny. Za uvedenou cenu bude dům kompletně stavebně dokončen včetně vytápění, obkladů, sanitárního vybavení, podlahových krytin a vnitřních dveří.

Pozemek má výměru o rozloze 2947 m2. Uvedená cena je včetně pozemku, typové základové desky a DPH.

V ceně je také zasíťování pozemku elektřinou, napojení na vodovodní řád a odpadní potrubí k plánované čističce odpadních vod s odtokem do potoka.

K pozemku je aktuálně vyřizováno stavební povolení.

Umístění pozemku nabízí krásné panoramatické výhledy na okolní krajinu, dostatek soukromí a jako benefit i vřelé sousedské vztahy. V blízkosti se nachází škola i školka či zastávka MHD, odkud je snadná dostupnost do nedalece vzdáleného nákupního domu či centra města Liberec.

Doba výstavby je 5 - 6 měsíců.

Makléř

Máte zájem o tento dům?

Tímto, v souladu s nařízením Evropského parlamentu a Rady (EU) 2016/679, v platném znění, prohlašuji, že mi je alespoň 16 let a uděluji tak svůj souhlas se zpracováním zadaných údajů (jméno, telefon, e-mail, ip adresa) společnosti B3 Technology, s.r.o., IČ: 07330600, se sídlem Novostavby 126/23, 435 11 Lom (správce dat), za účelem předání dotazu z tohoto formuláře Vámi vybranému inzerentovi a zpětného kontaktování mé osoby. Osobní údaje bude správce zpracovávat manuálně i automaticky přímo prostřednictvím svých zaměstnanců. Informace předané tímto formulářem budou uloženy v databázi správce maximálně po dobu 10 let. Odvolání souhlasu s uložením a zpracováním poskytnutých dat lze e-mailem na info@origo-reality.cz. V případě podezření na neoprávněné použití Vámi poskytnutých údajů máte právo předat podnět k šetření Úřadu pro ochranu osobních údajů. Více informací
Chystáte se prodat nemovitost?
Pomůžeme Vám!

Přihlášení k odběru

Nenechte si ujít nejnovější nabídky prodeje rodinných domů v Liberci.