Prodej činžovního domu, České Budějovice - České Budějovice 1, Dr. Stejskala, 1223 m2

Dr. Stejskala, České Budějovice 1

49 000 000 Kč
/za nemovitost
V případě více zájemců může RK využít pro výběr kupujícího formu aukce.
Hypotéka od 219 000 Kč /měs. Chci hypotéku

Parametry nemovitosti

AdresaDr. Stejskala, České Budějovice 1
ID894472
StavbaSmíšená
Stav objektuDobrý
VybavenoAno
Druh objektuRohový
Lokalita objektuRušná část obce
VlastnictvíOsobní
Užitná plocha1223 m2
Plocha pozemku444 m2

Origo partneři v Českých Budějovicích

Popis

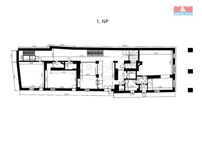
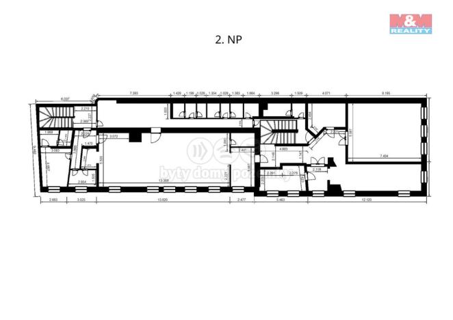
Nabízíme jedinečný pětipodlažní dům na rohu náměstí Přemysla Otakara II. a ulice Dr. Stejskala. Tento historický objekt vznikl spojením dvou domů, poslední rekonstrukce proběhla v roce 1998. Dům nabízí široké možnosti využití – obchodní, administrativní i rezidenční. V 1. PP se nachází restaurace s vinárnou (80 míst), kuchyní a zázemím. V 1. NP jsou obchodní prostory s výlohami a vstupem z náměstí - optika, směnárna, 2x rychlé občerstvení. 2. NP kancelářské a obchodní prostory a dvě bytové jednotky. 3. NP zahrnuje restauraci se zázemím. 4. NP nabízí rozsáhlý nebytový prostor s možností přestavby na byty či kanceláře, prostor s terasou a výhledem na město.

Makléř

Máte zájem o tuto nemovistost?

Tímto, v souladu s nařízením Evropského parlamentu a Rady (EU) 2016/679, v platném znění, prohlašuji, že mi je alespoň 16 let a uděluji tak svůj souhlas se zpracováním zadaných údajů (jméno, telefon, e-mail, ip adresa) společnosti B3 Technology, s.r.o., IČ: 07330600, se sídlem Novostavby 126/23, 435 11 Lom (správce dat), za účelem předání dotazu z tohoto formuláře Vámi vybranému inzerentovi a zpětného kontaktování mé osoby. Osobní údaje bude správce zpracovávat manuálně i automaticky přímo prostřednictvím svých zaměstnanců. Informace předané tímto formulářem budou uloženy v databázi správce maximálně po dobu 10 let. Odvolání souhlasu s uložením a zpracováním poskytnutých dat lze e-mailem na info@origo-reality.cz. V případě podezření na neoprávněné použití Vámi poskytnutých údajů máte právo předat podnět k šetření Úřadu pro ochranu osobních údajů. Více informací
Chystáte se prodat nemovitost?
Pomůžeme Vám!

Přihlášení k odběru

Nenechte si ujít nejnovější nabídky prodeje činžovních domů v Českých Budějovicích.