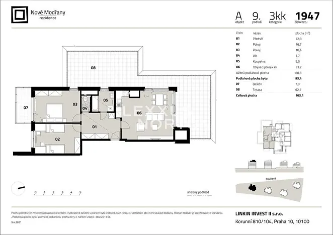
Prodej bytu 3+kk, Praha - Modřany, Zlochova, 93 m2 (ID: 1582212)

Zlochova, Praha, Modřany

15 969 072 Kč
/za nemovitost
Parkovací stání a sklep nejsou zahrnuty v ceně, je možné je dokoupit samostatně
Hypotéka od 71 372 Kč /měs. Chci hypotéku

Parametry bytu

AdresaZlochova, Praha, Modřany
ID528056
StavbaSmíšená
Stav objektuNovostavba
Patro10. z 10
VlastnictvíOsobní
Užitná plocha93 m2
Třída energetické náročnostiB - Velmi úsporná
Balkon
Výtah
Parkování

Origo partneři v Praze 4

Stěhovací služby

Výkup a prodej starého nábytku

Popis

Nové Modřany vám nabízí k prodeji byt 3+kk s velkorysou terasou. Byt se nachází v 9. podlaží moderní rezidence, která vyrůstá v pražských Modřanech.


Projekt zkolaudován, byty jsou ihned k předání.


Nové Modřany jsou unikátní projekt, který v sobě spojuje komfort velkoměsta a svobodu přírody. Nadstandardní byt 3+kk o velikosti 88,3 m2 vás okouzlí prostornou terasou, které developer zvětšil, aby byt propojil s okolní zelení. Jedna velkorysá terasa spojuje obývací pokoj s kuchyňským koutem. Dále se v bytě nachází dvě samostatné, prostorné ložnice. Byt doplňuje koupelna s vanou a samostatnou toaletou. Součástí projektu Nové Modřany je venkovní posilovna, kavárna, 3 dětská hřiště s trampolínami a na východní straně vyrůstá park. V projektu také najdete kočárkárnu, stojany na koloběžky a elektrické nabíječky na auta.


Modřany patří mezi pražské čtvrti, kde je živo. Stačí seběhnout k Vltavě, sednout na kolo nebo se projít v Modřanské rokli. Na nákupy i zmrzlinu budete chodit pěšky a všechno, co potřebujete, si zařídíte v Modřanech. Tramvaj z Modřan vás bez přestupu doveze do centra za pár minut a přímé napojení na pražský okruh vás plynule propojí s D1 i ostatními dálnicemi.

Makléř

Máte zájem o tento byt?

Tímto, v souladu s nařízením Evropského parlamentu a Rady (EU) 2016/679, v platném znění, prohlašuji, že mi je alespoň 16 let a uděluji tak svůj souhlas se zpracováním zadaných údajů (jméno, telefon, e-mail, ip adresa) společnosti B3 Technology, s.r.o., IČ: 07330600, se sídlem Novostavby 126/23, 435 11 Lom (správce dat), za účelem předání dotazu z tohoto formuláře Vámi vybranému inzerentovi a zpětného kontaktování mé osoby. Osobní údaje bude správce zpracovávat manuálně i automaticky přímo prostřednictvím svých zaměstnanců. Informace předané tímto formulářem budou uloženy v databázi správce maximálně po dobu 10 let. Odvolání souhlasu s uložením a zpracováním poskytnutých dat lze e-mailem na info@origo-reality.cz. V případě podezření na neoprávněné použití Vámi poskytnutých údajů máte právo předat podnět k šetření Úřadu pro ochranu osobních údajů. Více informací
Chystáte se prodat nemovitost?
Pomůžeme Vám!

Přihlášení k odběru

Nenechte si ujít nejnovější nabídky prodeje bytů 3+kk v Praze 4.