Prodej rodinného domu, Čáslav, 370 m2

Filipov u Čáslavi

6 990 000 Kč
/za nemovitost
Cena včetně právního i realitního servisu.
Hypotéka od 31 241 Kč /měs. Chci hypotéku

Parametry domu

AdresaFilipov u Čáslavi
ID14486
StavbaMontovaná
Stav objektuVe výstavbě
Typ objektuPatrový
Druh objektuSamostatný
Lokalita objektuKlidná část obce
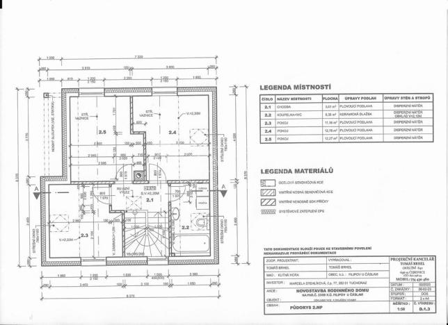
Užitná plocha105 m2
Zastavěná plocha80 m2
Podlahová plocha370 m2
Plocha pozemku370 m2
Třída energetické náročnostiB - Velmi úsporná
Elektřina230V, 400V
OdpadVeřejná kanalizace
KomunikaceAsfaltová, Zpevněná
VodaVodovod
Převod do OV
Parkování

Origo partneři v Čáslavi

Popis

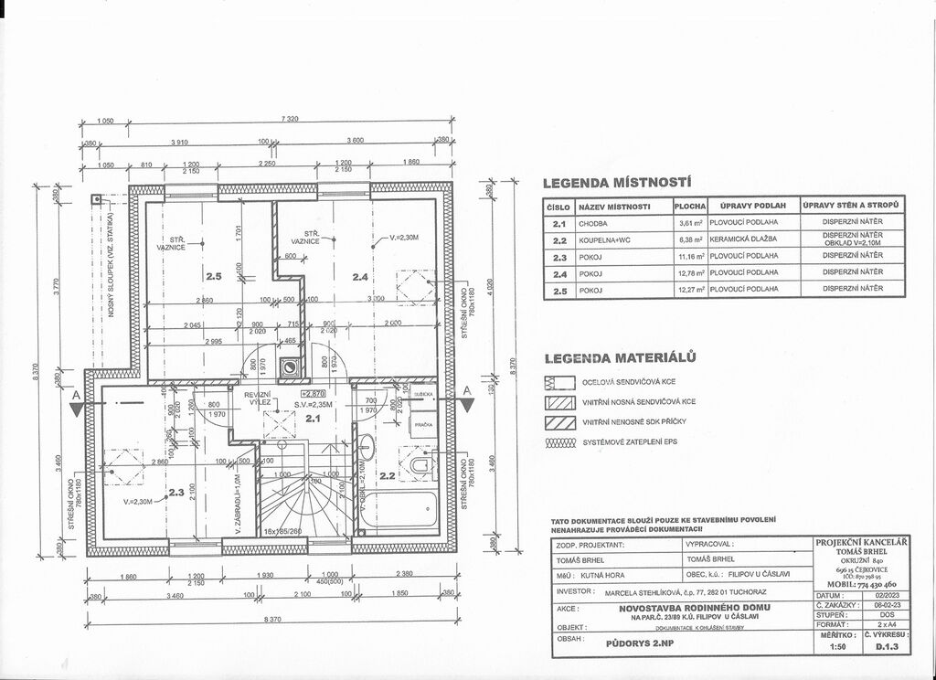
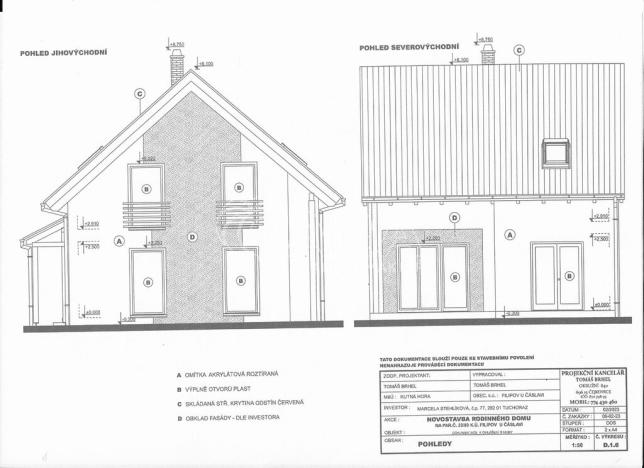
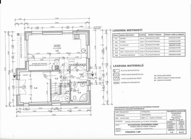
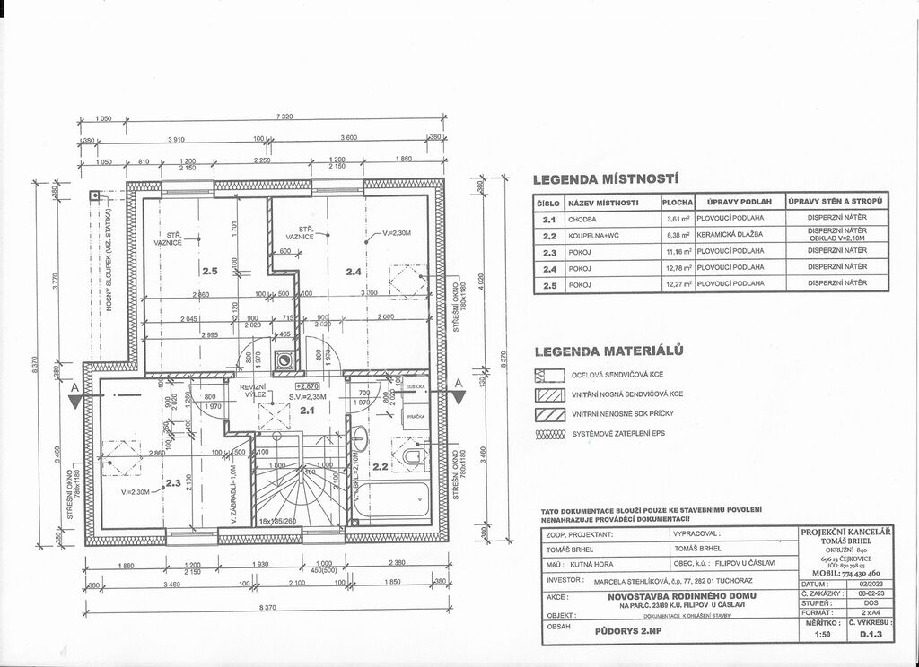
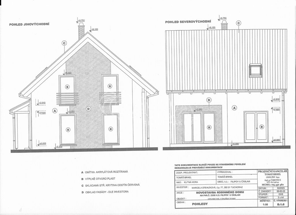
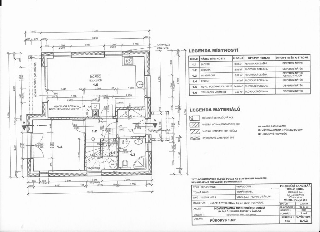
Nabízíme k prodeji Novostavbu rodinného domu 4+kk o celkové užitné ploše 105 m2 m2 na velmi hezkém místě v katastrálním území Filipov u Čáslavi. Obec Filipov je místní částí města Čáslavi.

Rodinný dům je již ve výstavbě a na prodej jsou zde celkem tři totožné domy s pozemky.

Cena nemovitosti zahrnuje stavbu rodinného domu na klíč včetně připojení domu na sítě, zpevněných ploch a oplocení pozemku. Dům bude vybaven veškerými zařizovacími předměty, sanitou i technologiemi včetně vytápění.

Dům bude napojen na Inženýrské sítě v rozsahu elektřina, vodovod a kanalizace.
Elektrická přípojka je již hotová a je ukončena přímo na pozemku v pilíři od ČEZ. Přípojka obecního vodovodu a kanalizace, se bude budovat a bude hotová do konce dubna r. 2025 včetně kolaudace.
Přípojky a připojení domu na sítě je již zahrnuto v ceně domu.
Na stavby tří rodinných domů je vydáno platné stavební povolení, včetně povolení připojení na veškeré ing. sítě i na komunikaci.

Přímo u pozemků je nově vybudovaná cyklostezka, která vede na okraj Čáslavi. Pěšky dojdete přímo do centra města Čáslavi(800 m).
V obci se nachází historický Zámek Filipov s romantickým anglickým parkem. Zámek připomíná skromnou kopii zámku na Hluboké.

Veškerou občanskou vybavenost naleznete v nedaleké Čáslavi. Stanice autobusu 400m od od pozemků. Vlakové spojení v Čáslavi i přímo ve Filipově.
Filipov je místní část města Čáslav v okrese Kutná Hora. Nachází se zhruba 1 km od centra města Čáslav.

Pozemek i stavbu domu je možné financovat hypotéčním úvěrem. Velmi rádi vám s financování pomůžeme
Pro více informací kontaktujte makléře.

Makléř

Máte zájem o tento dům?

Tímto, v souladu s nařízením Evropského parlamentu a Rady (EU) 2016/679, v platném znění, prohlašuji, že mi je alespoň 16 let a uděluji tak svůj souhlas se zpracováním zadaných údajů (jméno, telefon, e-mail, ip adresa) společnosti B3 Technology, s.r.o., IČ: 07330600, se sídlem Novostavby 126/23, 435 11 Lom (správce dat), za účelem předání dotazu z tohoto formuláře Vámi vybranému inzerentovi a zpětného kontaktování mé osoby. Osobní údaje bude správce zpracovávat manuálně i automaticky přímo prostřednictvím svých zaměstnanců. Informace předané tímto formulářem budou uloženy v databázi správce maximálně po dobu 10 let. Odvolání souhlasu s uložením a zpracováním poskytnutých dat lze e-mailem na info@origo-reality.cz. V případě podezření na neoprávněné použití Vámi poskytnutých údajů máte právo předat podnět k šetření Úřadu pro ochranu osobních údajů. Více informací
Chystáte se prodat nemovitost?
Pomůžeme Vám!

Přihlášení k odběru

Nenechte si ujít nejnovější nabídky prodeje rodinných domů v Čáslavi.