Prodej bytu 3+kk, Staré Město, 134 m2 (ID: 1548662)

Staré Město

8 580 000 Kč
/za nemovitost
včetně poplatků, včetně provize, včetně právního servisu
Hypotéka od 38 347 Kč /měs. Chci hypotéku

Parametry bytu

AdresaStaré Město
ID03069
StavbaCihlová
Stav objektuNovostavba
Patro1. z 4
Druh objektuRohový
Lokalita objektuCentrum obce
VlastnictvíOsobní
Užitná plocha134 m2
Třída energetické náročnostiA - Mimořádně úsporná
Ukazatel energetické náročnosti43.2 kWh/m2 za rok
Elektřina230V
OdpadVeřejná kanalizace
KomunikaceBetonová, Asfaltová
TelekomunikaceInternet, Kabelové rozvody
DopravaVlak, Dálnice, Silnice, MHD, Autobus
VodaVodovod
Terasa
Výtah
Bezbarierový přístup

Origo partneři v Starém Městu

Popis

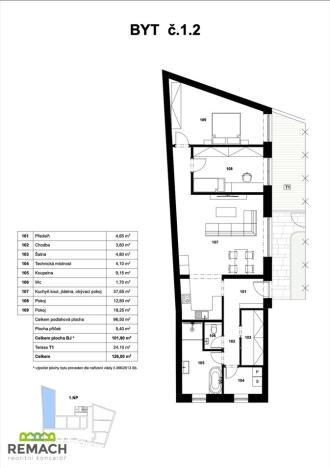
Byt v přízemí o dispozici 3+kk s bezbariérovým vstupem nabízí plochu 101,9 m2.
Ve vstupní chodbě máte prostor pro vestavnou skříň a botník. Z chodby je vstup do šatny, koupelny a technické místnosti, dále do obývacího pokoje s kuchyňskou linkou a jídelním stolem. Tento prostor má výměru přes 37 m2. Z obývacího pokoje i obou ložnic máte vstup na terasu o velikosti 24,1 m2.

Koupelna je vybavena vanou i sprchovým koutem, toaleta s umyvadlem je samostatná a návštěvy vám tak nebudou vcházet do vaší osobní koupelny.

Najděte domov v klidném centru Starého Města u Uherského Hradiště. Novostavba bezbariérového čtyřpodlažního bytového domu s výtahem nabízí jen 17 bytů.

U stavby je kladen důraz na pohodlí a komfort a to podpoří dostatek parkovacích míst a energetická úspora.
Vytápění a ohřev vody je zajištěno čerpadlem, celkem čtyři hlubinné vrty a tepelné čerpadlo s účinností A+++ (země - voda), v koupelnách elektrické otopné žebříky. V celém bytě podlahové topení.

FOTOVOLTAICKÉ PANELY vám zajistí energetickou soběstačnost, navíc, každý byt je vybavený REKUPERAČNÍ JEDNOTKOU (atrea) pro výměnu vzduchu, dále KLIMATIZACÍ a kompletní klid v domě zajistí venkovní fasáda s dominantními stínícími prvky a trojskla.

Bydlete ve městě, ale přírodu mějte na dosah. Bytový dům je 1 km vzdálený od centra Uherského Hradiště a pouhých 400 m od nákupní zóny. Můžete se tedy spolehnout na veškerou občanskou vybavenost v docházkové vzdálenosti. Odpočinek a klid najdete na březích řeky Moravy či Baťova kanálu v těsné blízkosti. Na výlety vás bude lákat nedaleké poutní místo Velehrad. B1.2

Makléř

Máte zájem o tento byt?

Tímto, v souladu s nařízením Evropského parlamentu a Rady (EU) 2016/679, v platném znění, prohlašuji, že mi je alespoň 16 let a uděluji tak svůj souhlas se zpracováním zadaných údajů (jméno, telefon, e-mail, ip adresa) společnosti B3 Technology, s.r.o., IČ: 07330600, se sídlem Novostavby 126/23, 435 11 Lom (správce dat), za účelem předání dotazu z tohoto formuláře Vámi vybranému inzerentovi a zpětného kontaktování mé osoby. Osobní údaje bude správce zpracovávat manuálně i automaticky přímo prostřednictvím svých zaměstnanců. Informace předané tímto formulářem budou uloženy v databázi správce maximálně po dobu 10 let. Odvolání souhlasu s uložením a zpracováním poskytnutých dat lze e-mailem na info@origo-reality.cz. V případě podezření na neoprávněné použití Vámi poskytnutých údajů máte právo předat podnět k šetření Úřadu pro ochranu osobních údajů. Více informací
Chystáte se prodat nemovitost?
Pomůžeme Vám!

Přihlášení k odběru

Nenechte si ujít nejnovější nabídky prodeje bytů 3+kk v Starém Městu (okr. Uherské Hradiště).