Prodej bytu 4+kk, Šlapanice, 132 m2 (ID: 1540555)

Šlapanice

13 490 000 Kč
/za nemovitost
Hypotéka od 60 292 Kč /měs. Chci hypotéku

Parametry bytu

AdresaŠlapanice
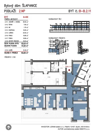
IDŠ.B.2.11
StavbaSkeletová
Stav objektuNovostavba
Patro2. z 2
VybavenoČástečně
Lokalita objektuKlidná část obce
VlastnictvíOsobní
Užitná plocha163 m2
Podlahová plocha132 m2
Třída energetické náročnostiB - Velmi úsporná
Sklep
Lodžie
Výtah

Origo partneři v Šlapanicích

Popis

Developerský projekt Rezidence TILIA se nachází ve Šlapanicích u Brna, v obci, která dokonale kombinuje život ve městě i přírodě a od města Brna je vzdálena pouhých 10 minut jízdy autem.

V projektu nabízíme k prodeji bytovou jednotku 4+kk o velikosti 162,8 m2 s lodžií, která je k dispozici v 1. a 2. nadzemním podlaží budovy B. V prvním podlaží je lodžie nahrazena terasou a zahradou.

Dispozici této jednotky tvoří zádveří s chodbou, šatna, WC, koupelna s WC, ložnice, pokoj, pokoj, obytný prostor a lodžie.

Kompletní přehled nabízených jednotek naleznete na www stránkách projektu.

Bytové jednotky mají za standardní rekuperační jednotku, vytápění s termostatem, plastová okna s trojskly a velkorysé zařizovací předměty vytváří čistý a vzdušný prostor jednotlivých místností. Všechny prezentační katalogy naleznete na www stránkách projektu.

Rezidence Tilia se skládá ze čtyř objektů, které společně obklopují otevřený vnitroblok se zelení, který svým obyvatelům naskytne nejen krásný pohled, ale zároveň jim nabídne pohodový a bezpečný prostor, kde si jejich ratolesti budou moci hrát od rána do večera a sousedé se tu potkají na kus řeči.

Vzhledem k tomu, že je Rezidence Tilia realizována jako nízkoenergetický rezidenční projekt, bude odpovídat všem současným požadavkům na pohodlí i úspornost.

Šlapanice u Brna jsou vyhledávaným místem pro život. V roce 2021 byla také vyhlášena jako 12. nejlepší obec v České republice a 6. v Jihomoravském kraji. V soutěži, byla hodnocena celková kvalita života obyvatel, životní prostředí, vzdělávání nebo materiální zabezpečení.

V obci je dostatek supermarketů, dětských hřišť, škol i školek, lékařů ale také restaurací a kaváren. Místní základní škola je dokonce jedna z největších v České republice a právem je považována za jednu z nejkvalitnějších. Její součástí je i sportovní areál s bazénem, který je dostupný také pro veřejnost. Na své si tu přijdou i milovníci sportu, Šlapanice jsou obec, kde je obrovské sportovní vyžití, od bowlingu po tenis.

Veškeré informace a přehled volných jednotek naleznete na stránce projektu.

V případě jakýchkoliv dotazů nás neváhejte kontaktovat. Těšíme se na spolupráci.

Makléř

Máte zájem o tento byt?

Tímto, v souladu s nařízením Evropského parlamentu a Rady (EU) 2016/679, v platném znění, prohlašuji, že mi je alespoň 16 let a uděluji tak svůj souhlas se zpracováním zadaných údajů (jméno, telefon, e-mail, ip adresa) společnosti B3 Technology, s.r.o., IČ: 07330600, se sídlem Novostavby 126/23, 435 11 Lom (správce dat), za účelem předání dotazu z tohoto formuláře Vámi vybranému inzerentovi a zpětného kontaktování mé osoby. Osobní údaje bude správce zpracovávat manuálně i automaticky přímo prostřednictvím svých zaměstnanců. Informace předané tímto formulářem budou uloženy v databázi správce maximálně po dobu 10 let. Odvolání souhlasu s uložením a zpracováním poskytnutých dat lze e-mailem na info@origo-reality.cz. V případě podezření na neoprávněné použití Vámi poskytnutých údajů máte právo předat podnět k šetření Úřadu pro ochranu osobních údajů. Více informací
Chystáte se prodat nemovitost?
Pomůžeme Vám!

Přihlášení k odběru

Nenechte si ujít nejnovější nabídky prodeje bytů 4+kk v Šlapanicích (okr. Brno-venkov).