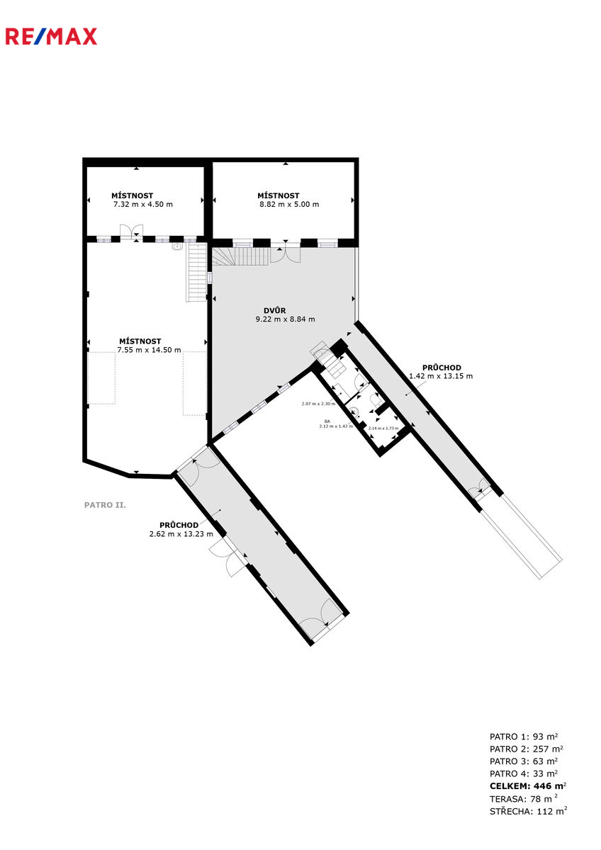
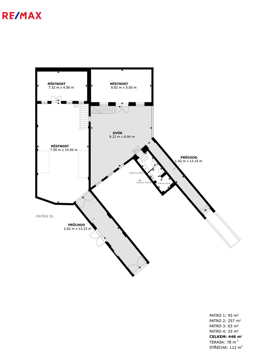
Prodej obchodního prostoru, Karlovy Vary, Svahová, 446 m2 (ID: 1523451)

Svahová, Karlovy Vary

4 399 000 Kč
/za nemovitost
Hypotéka od 19 661 Kč /měs. Chci hypotéku

Parametry nemovitosti

AdresaSvahová, Karlovy Vary
ID294-NP01271
StavbaSmíšená
Stav objektuPřed rekonstrukcí
VybavenoNe
Typ objektuPřízemní
Lokalita objektuCentrum obce
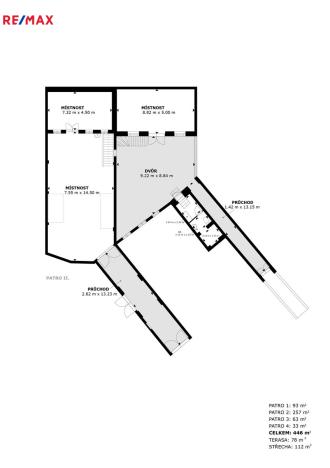
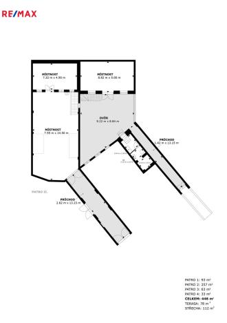
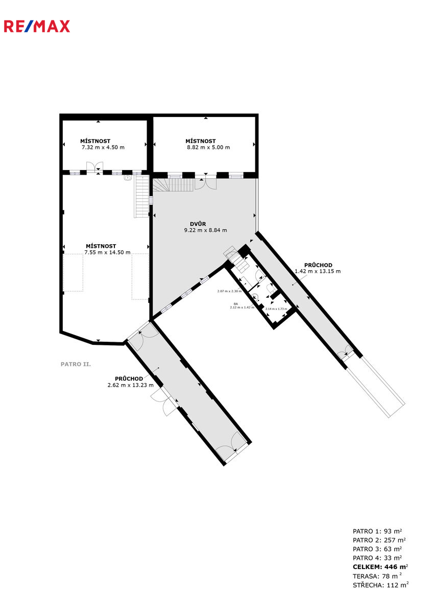
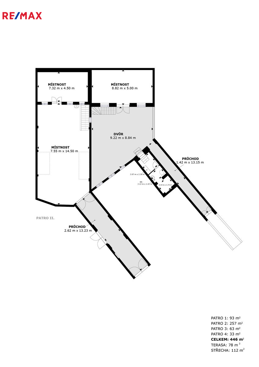
Užitná plocha446 m2
Zastavěná plocha636 m2
Třída energetické náročnostiG - Mimořádně nehospodárná
PlynPlynovod
OdpadVeřejná kanalizace
KomunikaceAsfaltová
DopravaSilnice, MHD, Autobus
VodaVodovod
Převod do OV

Origo partneři v Karlových Varech

Popis

Investiční příležitost v centru Karlových Varů – vysoká průchodnost, strategická lokalita!

Hledáte komerční prostory na exkluzivním místě s vysokým provozem? Nabízíme k prodeji 446 m² v samém srdci Karlových Varů, v oblasti s neustálým tokem turistů i místních obyvatel. Díky své poloze v těsné blízkosti lázeňské zóny, hotelů a obchodních center je tato nemovitost ideální volbou pro podnikání i dlouhodobou investici.

Tento prostor lze využít jako obchodní jednotku, restauraci, showroom, kancelářské prostory nebo loftové bydlení. Součástí objektu jsou také dvě menší bytové jednotky, které lze využít k pronájmu nebo propojit do jednoho většího apartmánu.

Proč investovat právě zde?
✔ TOP lokalita – centrum Karlových Varů, lázeňská čtvrť, blízko hlavních turistických tras
✔ Vysoká frekvence návštěvníků – ideální pro podnikání závislé na zákaznickém provozu
✔ Možnost přizpůsobení – prostor je před rekonstrukcí, což umožňuje vlastní úpravy podle podnikatelského záměru
✔ Velký investiční potenciál – vhodné pro dlouhodobý pronájem nebo rozvoj vlastního podnikání
✔ Dostupnost služeb – výborná občanská vybavenost, snadná dopravní dostupnost

Tato nemovitost nabízí unikátní kombinaci lokality, flexibility a investičního potenciálu. Nezmeškejte možnost vlastnit prostor v jednom z nejnavštěvovanějších měst České republiky!

Pro více informací a prohlídku nás neváhejte kontaktovat Prodávající si vyhrazuje právo vybrat kupujícího na základě jím zvolených kritérií.

Makléř

Máte zájem o tuto nemovistost?

Tímto, v souladu s nařízením Evropského parlamentu a Rady (EU) 2016/679, v platném znění, prohlašuji, že mi je alespoň 16 let a uděluji tak svůj souhlas se zpracováním zadaných údajů (jméno, telefon, e-mail, ip adresa) společnosti B3 Technology, s.r.o., IČ: 07330600, se sídlem Novostavby 126/23, 435 11 Lom (správce dat), za účelem předání dotazu z tohoto formuláře Vámi vybranému inzerentovi a zpětného kontaktování mé osoby. Osobní údaje bude správce zpracovávat manuálně i automaticky přímo prostřednictvím svých zaměstnanců. Informace předané tímto formulářem budou uloženy v databázi správce maximálně po dobu 10 let. Odvolání souhlasu s uložením a zpracováním poskytnutých dat lze e-mailem na info@origo-reality.cz. V případě podezření na neoprávněné použití Vámi poskytnutých údajů máte právo předat podnět k šetření Úřadu pro ochranu osobních údajů. Více informací
Chystáte se prodat nemovitost?
Pomůžeme Vám!

Přihlášení k odběru

Nenechte si ujít nejnovější nabídky prodeje obchodních prostor v Karlových Varech.