Prodej rodinného domu, Mokrouše, 102 m2

Mokrouše

10 000 000 Kč
/za nemovitost
Hypotéka od 44 694 Kč /měs. Chci hypotéku

Parametry domu

AdresaMokrouše
ID27225
StavbaCihlová
Stav objektuNovostavba
VybavenoNe
Druh objektuSamostatný
Lokalita objektuKlidná část obce
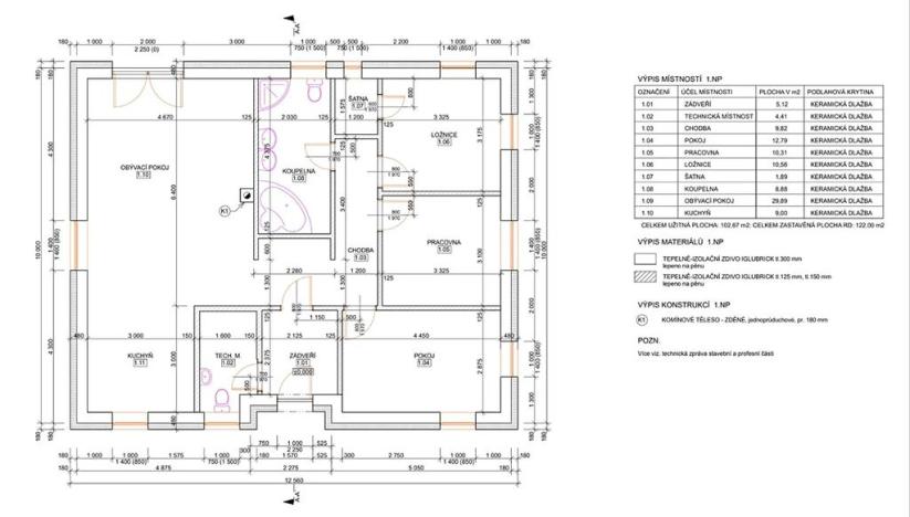
Užitná plocha102 m2
Zastavěná plocha122 m2
Plocha pozemku1049 m2
Třída energetické náročnostiG - Mimořádně nehospodárná
Elektřina230V, 400V
PlynPlynovod
OdpadVeřejná kanalizace
KomunikaceAsfaltová
TelekomunikaceInternet
DopravaSilnice, Autobus
VodaVodovod

Origo partneři v Mokrouších

Podlahy

Stěhovací služby

Popis

Nabízíme k prodeji nový rodinný dům typu bungalov s dispozicí 4+kk, který bude součástí nové zástavby 17 rodinných domů na okraji klidné a malebné obce Mokrouše. Výstavba začne v roce 2025 a jedná se o jedinečnou příležitost pořídit si moderní bydlení na míru v jedné z nejžádanějších lokalit.

O domě

• Užitná plocha: 102,67 m2
• Zastavěná plocha: 122 m2
• pozemek: 919 m2
• Dispozice: 4+kk – ideální pro rodinné bydlení, nabízí prostorný obývací pokoj s kuchyňským koutem, tři ložnice, koupelnu, technickou místnost a další praktické prostory.
• Připojení: Elektřina, vodovod, plynovod, kanalizace a optický internet – vše pro maximální komfort moderního života.
• Personalizace: Klienti mají možnost výběru materiálů pro podlahové krytiny, obklady a další detaily, aby jejich nový domov plně odpovídal jejich představám.

Lokalita – Obec Mokrouše

Obec Mokrouše je vyhledávanou lokalitou pro své klidné prostředí a zároveň skvělou dostupnost do města. Nová zástavba rodinných domů bude situována na okraji obce, což poskytuje dostatek soukromí a přímý kontakt s okolní přírodou.

• Dopravní dostupnost: Pouhých 15 minut jízdy do Plzně a snadná dostupnost dálnice D5.
• Občanská vybavenost: V okolí naleznete školu, školku, obchody a další potřebné služby.
• Rekreace: Okolí nabízí mnoho příležitostí k relaxaci a aktivnímu trávení volného času – turistika, cyklostezky, lesy a příroda.

Proč právě tento dům?

️ Moderní dispozice a technologie pro komfortní bydlení
️ Možnost personalizace interiéru podle vašich přání
️ Skvělá lokalita na okraji klidné obce
️ Kompletní občanská vybavenost a výborná dostupnost

Nenechte si ujít tuto jedinečnou příležitost bydlet v novém, moderním domě v srdci přírody a přitom kousek od města. Rezervujte si svůj nový domov ještě dnes!

Pro více informací nás neváhejte kontaktovat. ️

Makléř

Máte zájem o tento dům?

Tímto, v souladu s nařízením Evropského parlamentu a Rady (EU) 2016/679, v platném znění, prohlašuji, že mi je alespoň 16 let a uděluji tak svůj souhlas se zpracováním zadaných údajů (jméno, telefon, e-mail, ip adresa) společnosti B3 Technology, s.r.o., IČ: 07330600, se sídlem Novostavby 126/23, 435 11 Lom (správce dat), za účelem předání dotazu z tohoto formuláře Vámi vybranému inzerentovi a zpětného kontaktování mé osoby. Osobní údaje bude správce zpracovávat manuálně i automaticky přímo prostřednictvím svých zaměstnanců. Informace předané tímto formulářem budou uloženy v databázi správce maximálně po dobu 10 let. Odvolání souhlasu s uložením a zpracováním poskytnutých dat lze e-mailem na info@origo-reality.cz. V případě podezření na neoprávněné použití Vámi poskytnutých údajů máte právo předat podnět k šetření Úřadu pro ochranu osobních údajů. Více informací
Chystáte se prodat nemovitost?
Pomůžeme Vám!

Přihlášení k odběru

Nenechte si ujít nejnovější nabídky prodeje rodinných domů v Mokrouších.