Prodej komerčního pozemku, Vrbovec, 800 m2

Vrbovec

1 650 000 Kč
/za nemovitost
- včetně zpracované projektové dokumentace a zahájené stavby, + 6 % bez DPH právní servis (včetně provize realitní kanceláři)
Hypotéka od 7 375 Kč /měs. Chci hypotéku

Parametry pozemku

AdresaVrbovec
ID164
Plocha pozemku800 m2
Elektřina230V, 400V
Bezbarierový přístup

Origo partneři v Vrbovci

Pojištění a finance

Popis

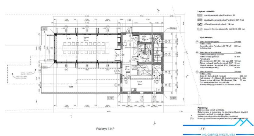
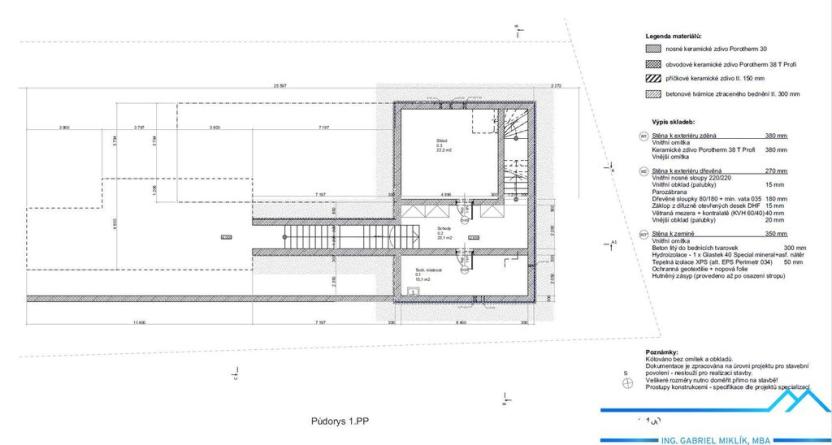
K prodeji nabízíme stavební pozemek o celkové rozloze 800m2 s velkým množstvím využití, hlavní předmět prodeje zde je:

Pozemek 800m2 se zpracovanou projektovou dokumentací na ubytovací zařízení, se zahájenou výstavbou počínající ve 2.PP a dále s možností přenechání sousedních pozemků, které jsou v nájmu od obce Vrbovec, s možností budoucího jednání o odkoupení.

Projektová dokumentace je zpracovaná na ubytovací zařízení s možností pořádání oslav a akcí, s dvěmi podzemními podlažími (vinárna, lisovna) a jedním nadzemním podlažím (sál, kuchyně, předsálí atd.). Dále je zde počítáno s 6ti ubytovacími kontejnery, které by byly součástí svahu a byly napojeny na veškeré IS.

Pro všechny tyto informace uvedené výše, přikládáme v rámci fotogalerie veškeré půdorysy k nahlédnutí a bližší informace či termíny prohlídek budeme řešit s dalšími vážnými zájemci již v rámci osobní komunikace.
Pro případnou schůzku či další dotazy kontaktujte pana Ing. Miklíka, volat můžete kdykoliv, včetně víkendů a svátků.

Makléř

Máte zájem o tento pozemek?

Tímto, v souladu s nařízením Evropského parlamentu a Rady (EU) 2016/679, v platném znění, prohlašuji, že mi je alespoň 16 let a uděluji tak svůj souhlas se zpracováním zadaných údajů (jméno, telefon, e-mail, ip adresa) společnosti B3 Technology, s.r.o., IČ: 07330600, se sídlem Novostavby 126/23, 435 11 Lom (správce dat), za účelem předání dotazu z tohoto formuláře Vámi vybranému inzerentovi a zpětného kontaktování mé osoby. Osobní údaje bude správce zpracovávat manuálně i automaticky přímo prostřednictvím svých zaměstnanců. Informace předané tímto formulářem budou uloženy v databázi správce maximálně po dobu 10 let. Odvolání souhlasu s uložením a zpracováním poskytnutých dat lze e-mailem na info@origo-reality.cz. V případě podezření na neoprávněné použití Vámi poskytnutých údajů máte právo předat podnět k šetření Úřadu pro ochranu osobních údajů. Více informací
Chystáte se prodat nemovitost?
Pomůžeme Vám!
Theleadway banner

Přihlášení k odběru

Nenechte si ujít nejnovější nabídky prodeje komerčních pozemků v Vrbovci.