Prodej pozemku pro bydlení, Řevnice, Sochorova, 770 m2 (ID: 1503785)

Sochorova, Řevnice

9 559 000 Kč
/za nemovitost
Hypotéka od 42 723 Kč /měs. Chci hypotéku

Parametry pozemku

AdresaSochorova, Řevnice
ID23008
Lokalita objektuKlidná část obce
Plocha pozemku770 m2
Elektřina230V, 400V
PlynPlynovod
OdpadVeřejná kanalizace
TopeníÚstřední elektrické, Jiné, Podlahové
KomunikaceAsfaltová
TelekomunikaceTelefon, Internet, Kabelová televize, Kabelové rozvody
DopravaVlak, Dálnice, Silnice, Autobus
VodaVodovod, Retenční nádrž na dešt’ovou vodu
Topné tělesoPodlahové vytápění
Zdroj topeníElektrokotel

Origo partneři v Řevnicích

Popis

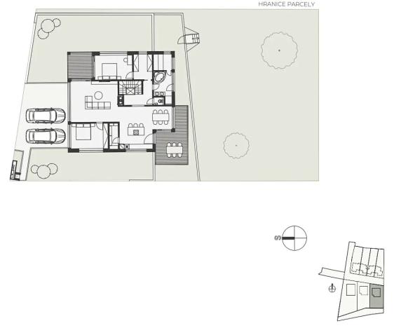
Parcela se stavebním povolením na zděnou solitérní vilu v projektu Vily Řevnice.

Výstavbu vily si můžete objednat ihned od nás, později od nás s garantovanou cenou, stavět můžete vlastními silami, nebo rozhodnutí odložit do budoucnosti a ponechat si pozemek jako investici.

Povolení je na vilu Jasan 5+1, 2 garážovými a 2 venkovními parkovacími stáními, s podlahovou plochou obytné části 179,44 m² a celkovou užitnou plochou včetně terasy, garáže a skladu 249,44 m².

Parcela o rozloze 770 m² leží na konci celého projektu v přímém sousedství lesa, ve slepém konci ulice Sochorova ve středočeských Řevnicích.

Projekt se nachází v poklidném městě s veškerou občanskou vybaveností nedaleko Prahy s výbornou dopravní dostupností autem po D4 či vlakem na Smíchovské nádraží. Projekt se nachází v rezidenční čtvrti prvorepublikových vil na samotném konci ulice Sochorova, která je v dané části slepá, díky čemuž jde o mimořádně klidnou lokalitu. Navíc přímo sousedí s lesem, kde nehrozí žádné další rozšiřování výstavby a nabízí přírodu doslova za rohem.

Nabídka je součástí projektu Vily Řevnice developera OneTwoTree.

Makléř

Máte zájem o tento pozemek?

Tímto, v souladu s nařízením Evropského parlamentu a Rady (EU) 2016/679, v platném znění, prohlašuji, že mi je alespoň 16 let a uděluji tak svůj souhlas se zpracováním zadaných údajů (jméno, telefon, e-mail, ip adresa) společnosti B3 Technology, s.r.o., IČ: 07330600, se sídlem Novostavby 126/23, 435 11 Lom (správce dat), za účelem předání dotazu z tohoto formuláře Vámi vybranému inzerentovi a zpětného kontaktování mé osoby. Osobní údaje bude správce zpracovávat manuálně i automaticky přímo prostřednictvím svých zaměstnanců. Informace předané tímto formulářem budou uloženy v databázi správce maximálně po dobu 10 let. Odvolání souhlasu s uložením a zpracováním poskytnutých dat lze e-mailem na info@origo-reality.cz. V případě podezření na neoprávněné použití Vámi poskytnutých údajů máte právo předat podnět k šetření Úřadu pro ochranu osobních údajů. Více informací
Chystáte se prodat nemovitost?
Pomůžeme Vám!

Přihlášení k odběru

Nenechte si ujít nejnovější nabídky prodeje pozemků pro bydlení v Řevnicích.