Prodej pozemku pro bydlení, Černolice, 1066 m2

Černolice

8 190 000 Kč
/za nemovitost
včetně poplatků, včetně provize, včetně právního servisu
Hypotéka od 36 604 Kč /měs. Chci hypotéku

Parametry pozemku

AdresaČernolice
ID29801
Plocha pozemku1066 m2
OdpadVeřejná kanalizace
VodaVodovod

Origo partneři v Černolicích

Popis

Na východním okraji obce Černolice, v krajině, kde se zástavba přirozeně rozpouští do lesů a skal, leží stavební pozemek o výměře 1 066 m². Místo, které nabízí vzácnou kombinaci klidu, otevřeného horizontu a zároveň konkrétní jistoty: platné stavební povolení a hotový projekt rodinného domu 5+kk s garáží. Jinými slovy, můžete začít stavět bez zdlouhavého čekání. To, co jiní řeší měsíce, zde už proběhlo.

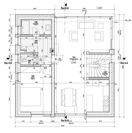
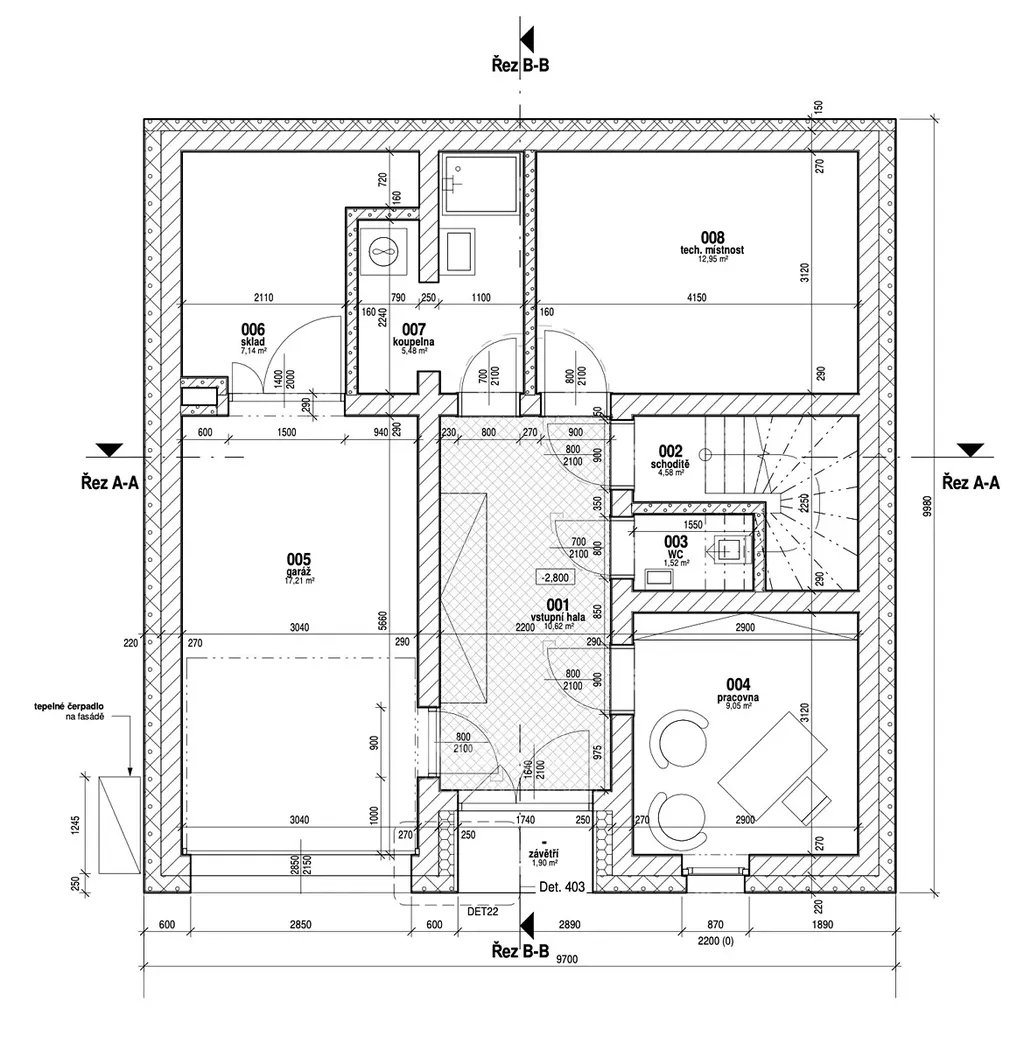
Součástí prodeje je projekt moderního rodinného domu o dispozici 5+kk s užitnou plochou 147 m² a garáží o velikosti 28 m². Návrh je koncipován jako praktické a nadčasové bydlení pro rodinu, která hledá rovnováhu mezi otevřeným společenským prostorem a dostatkem soukromí. Dispozice přirozeně pracuje se zahradou a orientací pozemku tak, aby obytná část domu těžila ze světla i výhledů do okolní zeleně. Odhadovaná cena postavení domu je kolem 8 milionů korun*.

Pozemek je kompletně zasíťovaný, elektřina, vodovod i kanalizace jsou přivedeny na jeho hranici. Přístup zajišťuje nová komunikace s chodníky a veřejným osvětlením, což podtrhuje kultivovaný charakter celé lokality. Zastavitelnost až 30 % poskytuje dostatečný prostor nejen pro samotný dům, ale i pro zahradu, která může být stejně důležitou součástí budoucího domova. Finanční i časová úspora je zde zřejmá, projekt i stavební povolení jsou již zahrnuty v ceně pozemku, což v praxi znamená náskok přibližně 8 až 12 měsíců.

Samotné Černolice leží přibližně 24 kilometrů jižně od Prahy a cesta autem na Smíchov běžně zabere 25 až 35 minut podle aktuálního provozu. Na samotné hranici hlavního města zvládnete dojet už za 9 minut. Veřejnou dopravu zajišťují autobusové linky PID s návazností na vlak v Dobřichovicích, odkud spoje míří přímo na Hlavní nádraží Prahy. Obec si přesto zachovává svůj komorní charakter, najdete zde obchod s potravinami, Úzké bistro, sportoviště i nově zřízenou mateřskou školu. Další občanská vybavenost je dostupná do 6 minut autem v nedalekých Všenorech, Řitce a Mníšku pod Brdy.

To podstatné se ale odehrává za hranicí zahrady. Okolní krajina přechází do brdských lesů, kde se nedaleko nachází skalní útvar Černolické skály i vyhlídka Korunka s dalekými rozhledy. Lesní cesty, louky, pískovcové stěny i ticho, které zde po setmění přirozeně přichází, to vše vytváří prostředí, kde se dá skutečně bydlet, nejen přespávat.

Tento pozemek je ideální pro ty, kdo chtějí stavět bez zbytečných odkladů a zároveň si chtějí uchovat možnost finální podobu domu přizpůsobit svému životnímu stylu. Pro rodinu, která hledá pevný bod nedaleko Prahy a nechce se vzdát každodenního kontaktu s městem ani s přírodou.

Uvedené výměry jsou orientační. V případě více zájemců může být nemovitost prodána nejlepší nabídce a majitel si vyhrazuje právo vybrat kupujícího dle jím zvolených kritérií. Veškeré zveřejněné údaje mají informativní charakter a nejsou nabídkou ve smyslu § 1731 nebo § 1732 občanského zákoníku, ani se nejedná o veřejný příslib dle § 1733 občanského zákoníku.

*Pro více informací mě neváhejte kontaktovat.

Makléř

Máte zájem o tento pozemek?

Tímto, v souladu s nařízením Evropského parlamentu a Rady (EU) 2016/679, v platném znění, prohlašuji, že mi je alespoň 16 let a uděluji tak svůj souhlas se zpracováním zadaných údajů (jméno, telefon, e-mail, ip adresa) společnosti B3 Technology, s.r.o., IČ: 07330600, se sídlem Novostavby 126/23, 435 11 Lom (správce dat), za účelem předání dotazu z tohoto formuláře Vámi vybranému inzerentovi a zpětného kontaktování mé osoby. Osobní údaje bude správce zpracovávat manuálně i automaticky přímo prostřednictvím svých zaměstnanců. Informace předané tímto formulářem budou uloženy v databázi správce maximálně po dobu 10 let. Odvolání souhlasu s uložením a zpracováním poskytnutých dat lze e-mailem na info@origo-reality.cz. V případě podezření na neoprávněné použití Vámi poskytnutých údajů máte právo předat podnět k šetření Úřadu pro ochranu osobních údajů. Více informací
Chystáte se prodat nemovitost?
Pomůžeme Vám!

Přihlášení k odběru

Nenechte si ujít nejnovější nabídky prodeje pozemků pro bydlení v Černolicích.