Prodej pozemku pro bydlení, Praha - Dejvice, V Šáreckém údolí, 13083 m2 (ID: 1501580)

V Šáreckém údolí, Praha, Dejvice

Cena na vyžádání
/za nemovitost
cena na vyžádání
Získejte výhodnou HYPOTÉKU Chci hypotéku

Parametry pozemku

AdresaV Šáreckém údolí, Praha, Dejvice
Lokalita objektuKlidná část obce
Plocha pozemku13083 m2
PlynPlynovod
OdpadVeřejná kanalizace
VodaVodovod

Origo partneři v Praze 6

Stěhovací služby

Výkup a prodej starého nábytku

Popis

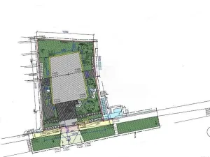
Nabízíme k prodeji pozemek o velikosti 13083 m2 v Praze Dejvicích, v CHKO Tichá Šárka s projektem na výstavbu moderní vily o hrubé podlahové ploše 918 m2.
Výjimečná lokalita Šáreckého údolí nabízí luxusní bydlení v souladu s přírodou – obklopená přírodním parkem, přičemž centrum Prahy je vzdáleno pouhých 5 km. Mezinárodní škola v Praze - ISP je vzdálená 2,5 km.

Makléř

Máte zájem o tento pozemek?

Tímto, v souladu s nařízením Evropského parlamentu a Rady (EU) 2016/679, v platném znění, prohlašuji, že mi je alespoň 16 let a uděluji tak svůj souhlas se zpracováním zadaných údajů (jméno, telefon, e-mail, ip adresa) společnosti B3 Technology, s.r.o., IČ: 07330600, se sídlem Novostavby 126/23, 435 11 Lom (správce dat), za účelem předání dotazu z tohoto formuláře Vámi vybranému inzerentovi a zpětného kontaktování mé osoby. Osobní údaje bude správce zpracovávat manuálně i automaticky přímo prostřednictvím svých zaměstnanců. Informace předané tímto formulářem budou uloženy v databázi správce maximálně po dobu 10 let. Odvolání souhlasu s uložením a zpracováním poskytnutých dat lze e-mailem na info@origo-reality.cz. V případě podezření na neoprávněné použití Vámi poskytnutých údajů máte právo předat podnět k šetření Úřadu pro ochranu osobních údajů. Více informací
Chystáte se prodat nemovitost?
Pomůžeme Vám!

Přihlášení k odběru

Nenechte si ujít nejnovější nabídky prodeje pozemků pro bydlení v Praze 6.