Prodej pozemku pro bydlení, Praha, Pod novým lesem, 447 m2

Pod novým lesem, Praha 6

Cena na vyžádání
/za nemovitost
Získejte výhodnou HYPOTÉKU Chci hypotéku

Parametry pozemku

AdresaPod novým lesem, Praha 6
ID320150
Plocha pozemku447 m2

Origo partneři v Praze 6

Stěhovací služby

Výkup a prodej starého nábytku

Pojištění a finance

Popis

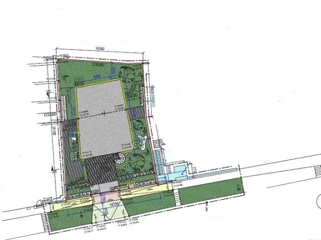
Praha 6 - Veleslavín - prodej stavebního pozemku o ploše 447 m2, který je určen pro rezidenční výstavbu. Zpracována studie a dokumentace na rodinný dům s vnitřní podlahovou plochou 276 m2. Požádáno o vydání stavebního povolení. Momentálně jediný samostatně prodávaný pozemek v této lokalitě. Podrobnosti na dotaz.

Makléř

Máte zájem o tento pozemek?

Tímto, v souladu s nařízením Evropského parlamentu a Rady (EU) 2016/679, v platném znění, prohlašuji, že mi je alespoň 16 let a uděluji tak svůj souhlas se zpracováním zadaných údajů (jméno, telefon, e-mail, ip adresa) společnosti B3 Technology, s.r.o., IČ: 07330600, se sídlem Novostavby 126/23, 435 11 Lom (správce dat), za účelem předání dotazu z tohoto formuláře Vámi vybranému inzerentovi a zpětného kontaktování mé osoby. Osobní údaje bude správce zpracovávat manuálně i automaticky přímo prostřednictvím svých zaměstnanců. Informace předané tímto formulářem budou uloženy v databázi správce maximálně po dobu 10 let. Odvolání souhlasu s uložením a zpracováním poskytnutých dat lze e-mailem na info@origo-reality.cz. V případě podezření na neoprávněné použití Vámi poskytnutých údajů máte právo předat podnět k šetření Úřadu pro ochranu osobních údajů. Více informací
Chystáte se prodat nemovitost?
Pomůžeme Vám!
Theleadway banner

Přihlášení k odběru

Nenechte si ujít nejnovější nabídky prodeje pozemků pro bydlení v Praze 6.