Prodej bytu 2+kk, Salála, Omán, 96 m2 (ID: 2039268)

Salála

422 050 €
/za nemovitost

Parametry bytu

AdresaSalála
IDF23377
StavbaCihlová
Stav objektuProjekt
Patro1. z 2
VybavenoNe
VlastnictvíOsobní
Užitná plocha96 m2
Podlahová plocha110 m2
Elektřina230V
OdpadVeřejná kanalizace
TelekomunikaceInternet
DopravaSilnice, Autobus
VodaVodovod
Terasa
Parkování

Origo partneři

Popis

Jsou místa, kde se život zpomalí a dny dostanou přirozený řád. Kde rána patří moři, světlu a prostoru a večery klidu, který si pamatujete. Právě takový pocit nabízí tento luxusní apartmán v prestižním projektu Amazi, situovaném v ikonickém resortu Hawana Salalah na pobřeží Ománu. Nemovitost, která není jen adresou, ale dlouhodobou hodnotou i místem pro skutečné zážitky.

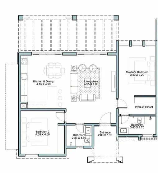
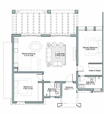
Konkrétní byt 2+kk se nachází v přízemí a nabízí celkovou plochu 110 - m2. Obytný prostor je navržen otevřeně a plynule navazuje na soukromou zahradu o velikosti 460 - m2 s výhledem na lagunu. Právě propojení interiéru s exteriérem dává tomuto bydlení výjimečný charakter. Otevřený obývací pokoj s kuchyňským koutem, velkoformátová okna a klidná ložnice vytvářejí harmonické prostředí pro každodenní život i odpočinek.

Projekt Amazi klade důraz na kvalitu, nadčasový design a komfort. Použité materiály, vzdušná architektura a důraz na soukromí odpovídají standardu prémiových resortních nemovitostí. Byt je ideální jak pro vlastní užívání, tak pro pronájem v celoročně vyhledávané destinaci.

Součástí areálu je privátní pláž, upravené promenády, laguny, restaurace, obchody, vodní sporty a kompletní správa nemovitostí. Nechybí recepce, bezpečné zóny pro rodiny ani přístup ke golfovému hřišti a marině. Celý resort funguje jako živá, ale kultivovaná komunita s vysokou úrovní služeb.

Hawana Salalah patří k nejatraktivnějším lokalitám Ománu. Nabízí jedinečné klima, tropickou zeleň, dlouhé pláže Indického oceánu a stabilní zázemí pro život i investice. Lokalita je dobře dostupná, bezpečná a dlouhodobě roste na hodnotě, což z ní činí zajímavou volbu pro budoucnost.

Nemovitost je nabízena s výhodným platebním plánem. Rezervační záloha činí 10 procent, následně probíhají průběžné platby ve výši 11,25 procenta každé tři měsíce. Tento model umožňuje rozložit investici v čase a zároveň zajistit vstup do prémiového projektu v rané fázi.

Tento apartmán představuje spojení klidného bydlení u moře, resortního komfortu a chytré investice. Pokud hledáte místo, které dává smysl dnes i za několik let, ráda vám poskytnu detailní informace, brožuru projektu a kompletní podporu při celém procesu. Zajistím, aby vaše cesta k nové nemovitosti byla přehledná, bezpečná a bez starostí.

Makléř

Máte zájem o tento byt?

Tímto, v souladu s nařízením Evropského parlamentu a Rady (EU) 2016/679, v platném znění, prohlašuji, že mi je alespoň 16 let a uděluji tak svůj souhlas se zpracováním zadaných údajů (jméno, telefon, e-mail, ip adresa) společnosti B3 Technology, s.r.o., IČ: 07330600, se sídlem Novostavby 126/23, 435 11 Lom (správce dat), za účelem předání dotazu z tohoto formuláře Vámi vybranému inzerentovi a zpětného kontaktování mé osoby. Osobní údaje bude správce zpracovávat manuálně i automaticky přímo prostřednictvím svých zaměstnanců. Informace předané tímto formulářem budou uloženy v databázi správce maximálně po dobu 10 let. Odvolání souhlasu s uložením a zpracováním poskytnutých dat lze e-mailem na info@origo-reality.cz. V případě podezření na neoprávněné použití Vámi poskytnutých údajů máte právo předat podnět k šetření Úřadu pro ochranu osobních údajů. Více informací
Chystáte se prodat nemovitost?
Pomůžeme Vám!

Přihlášení k odběru

Nenechte si ujít nejnovější nabídky prodeje bytů 2+kk.