Prodej bytu 3+kk, Santa Maria, Kapverdy, 73 m2 (ID: 2039178)

Santa Maria

150 000 €
/za nemovitost

Parametry bytu

AdresaSanta Maria
IDF26249
StavbaCihlová
Stav objektuVelmi dobrý
Patro1. z 2
VybavenoAno
VlastnictvíOsobní
Užitná plocha73 m2
Podlahová plocha73 m2
Elektřina230V
OdpadVeřejná kanalizace
TopeníLokální elektrické
TelekomunikaceTelefon, Internet
DopravaSilnice, Autobus
VodaVodovod
Terasa
Bezbarierový přístup
Parkování

Origo partneři

Popis

Exkluzivní 3+kk v první linii u moře | Tortuga Beach Resort, ostrov Sal, Kapverdy

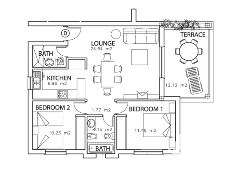
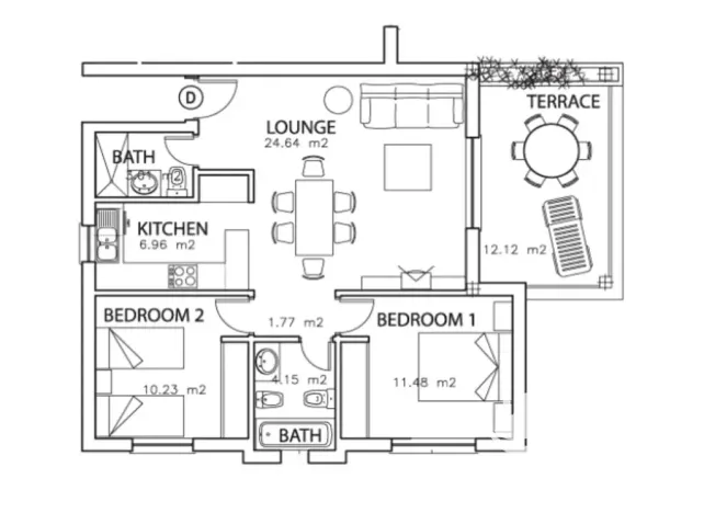
Nabízíme k prodeji výjimečný apartmán o dispozici 3+kk situovaný v první linii u moře v prestižním 5* resortu Tortuga Beach na ostrově Sal, Kapverdy. Tato nemovitost představuje ideální spojení komfortního vlastního zázemí u oceánu a atraktivní investiční příležitosti s pravidelným výnosem.

Apartmán o celkové ploše 73 m² se nachází v přízemí dvoupodlažní vily a disponuje prostornou terasou o velikosti 15,7 m², která nabízí příjemné posezení s atmosférou tropického pobřeží.

Dispozice zahrnuje vstupní předsíň, světlý obývací pokoj s kuchyňským koutem, dvě samostatné ložnice a dvě koupelny s toaletou. Nemovitost se prodává kompletně zařízená, připravená k okamžnému užívání i pronájmu.

Resort Tortuga Beach patří mezi nejvyhledávanější lokality na ostrově Sal díky přímému přístupu na pláž, kvalitním službám a vysokému standardu správy. Součástí nabídky je kompletní celoroční správa pronájmu, což zajišťuje bezstarostný provoz a stabilní pasivní příjem.

Hlavní benefity:
• první linie u moře
• 5* resort s kompletní infrastrukturou
• terasa 15,7 m²
• plně vybavený apartmán
• zajištěná správa pronájmu
• očekávaný výnos 6–7 % ročně
• měsíční poplatek za údržbu €196,31

Kapverdy jsou stabilní a bezpečnou destinací s celoročním slunečným klimatem (25–30 °C) a více než 350 slunečnými dny v roce. Rostoucí turistický ruch a omezená nabídka kvalitního ubytování vytváří dlouhodobě silnou poptávku po pronájmech.

Bezplatné prohlídky jsou možné kdykoli osobně na místě nebo formou online prezentace.

V nabídce máme i další nemovitosti různých velikostí a dispozic – rádi Vám připravíme výběr na míru.

Makléř

Máte zájem o tento byt?

Tímto, v souladu s nařízením Evropského parlamentu a Rady (EU) 2016/679, v platném znění, prohlašuji, že mi je alespoň 16 let a uděluji tak svůj souhlas se zpracováním zadaných údajů (jméno, telefon, e-mail, ip adresa) společnosti B3 Technology, s.r.o., IČ: 07330600, se sídlem Novostavby 126/23, 435 11 Lom (správce dat), za účelem předání dotazu z tohoto formuláře Vámi vybranému inzerentovi a zpětného kontaktování mé osoby. Osobní údaje bude správce zpracovávat manuálně i automaticky přímo prostřednictvím svých zaměstnanců. Informace předané tímto formulářem budou uloženy v databázi správce maximálně po dobu 10 let. Odvolání souhlasu s uložením a zpracováním poskytnutých dat lze e-mailem na info@origo-reality.cz. V případě podezření na neoprávněné použití Vámi poskytnutých údajů máte právo předat podnět k šetření Úřadu pro ochranu osobních údajů. Více informací
Chystáte se prodat nemovitost?
Pomůžeme Vám!

Přihlášení k odběru

Nenechte si ujít nejnovější nabídky prodeje bytů 3+kk.