Prodej rodinného domu, Votice, Pod Okrouhlím, 109 m2

Pod Okrouhlím, Votice

10 490 000 Kč
/za nemovitost
včetně provize, včetně právního servisu
Hypotéka od 46 884 Kč /měs. Chci hypotéku

Parametry domu

AdresaPod Okrouhlím, Votice
ID00895
StavbaCihlová
Stav objektuVe výstavbě
Druh objektuŘadový
Užitná plocha109 m2
Plocha pozemku471 m2
Třída energetické náročnostiA - Mimořádně úsporná
Ukazatel energetické náročnosti43 kWh/m2 za rok
Elektřina120V, 230V
OdpadVeřejná kanalizace
KomunikaceAsfaltová
TelekomunikaceKabelové rozvody
DopravaVlak, Dálnice, Silnice, MHD, Autobus
VodaVodovod
Topné tělesoPodlahové vytápění
Zdroj topeníTepelné čerpadlo
Zdroj teplé vodyTepelné čerpadlo
Parkování

Origo partneři v Voticích

Popis

JEDINEČNÁ NABÍDKA | 5+kk u rybníka | novostavba dvojdomu | dokončení 2027

Představte si místo, kde se každý den probouzíte s výhledem na klidnou hladinu rybníka a okolní zeleň Vám dává pocit absolutního soukromí. Právě zde vzniká moderní novostavba rodinného domu řešeného jako dvojdům – a v této lokalitě půjde o zcela výjimečnou příležitost, která se nebude opakovat.
Nabízíme k prodeji rodinný dům o dispozici 5+kk, který bude evidován jako dvojdům se dvěma bytovými jednotkami. Výstavba bude zahájena v nejbližší době, dokončení je plánováno na rok 2027. V této lokalitě vznikne pouze jeden řadový dvojdům, což z této nabídky činí skutečně jedinečnou příležitost.
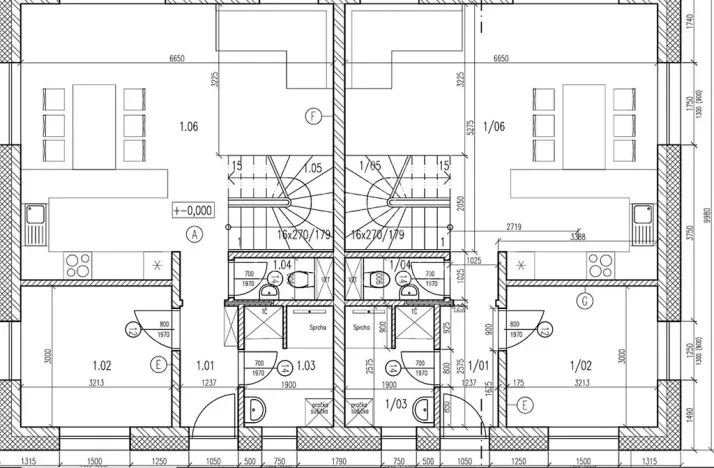
Dispozice je navržena prakticky – v přízemí vstupní zádveří, pokoj/pracovna, koupelna, samostatné WC a prostorný obývací pokoj s kuchyní a vstupem na zahradu. V patře se nachází dva pokoje, ložnice se šatnou a koupelna s toaletou.
Dům bude v energetické třídě A s důrazem na nízké náklady – podlahové vytápění, tepelné čerpadlo De Dietrich, rekuperační jednotka ATREA Duplex proV 360 a akumulace dešťové vody pro zálivku.
Konstrukčně jde o zděnou stavbu z vápenopískových tvarovek se zateplením 300 mm, střecha se sklonem cca 15°. Fasáda v krémovém odstínu, okna a střecha v antracitu.
Standard zahrnuje také kvalitní prvky:
interiérové dveře Single, sprchový kout Form & Style Samoa, závěsné WC RAVAK Craft, dlažby v moderním betonovém designu. Exteriér doplní bioklimatická hliníková pergola. V horním patře bude v koupelně jak vana tak sprchový kout.
Lokalita nabízí kompletní občanskou vybavenost – Lidl, Penny, Pepco, základní i mateřská škola i jazyková škola, kino i koupaliště. Výborná je také dostupnost do Prahy, kam se městskou dopravou dostanete přibližně do jedné hodiny.

Použité fotografie jsou pouze vizualizace, u kterých jsme se snažili co nejvíce přiblížit finálnímu provedení. Pro přesné dispoziční řešení a orientaci se, prosím, řiďte především přiloženými půdorysy, které jsou součástí nabídky.

Makléř

Máte zájem o tento dům?

Tímto, v souladu s nařízením Evropského parlamentu a Rady (EU) 2016/679, v platném znění, prohlašuji, že mi je alespoň 16 let a uděluji tak svůj souhlas se zpracováním zadaných údajů (jméno, telefon, e-mail, ip adresa) společnosti B3 Technology, s.r.o., IČ: 07330600, se sídlem Novostavby 126/23, 435 11 Lom (správce dat), za účelem předání dotazu z tohoto formuláře Vámi vybranému inzerentovi a zpětného kontaktování mé osoby. Osobní údaje bude správce zpracovávat manuálně i automaticky přímo prostřednictvím svých zaměstnanců. Informace předané tímto formulářem budou uloženy v databázi správce maximálně po dobu 10 let. Odvolání souhlasu s uložením a zpracováním poskytnutých dat lze e-mailem na info@origo-reality.cz. V případě podezření na neoprávněné použití Vámi poskytnutých údajů máte právo předat podnět k šetření Úřadu pro ochranu osobních údajů. Více informací
Chystáte se prodat nemovitost?
Pomůžeme Vám!

Přihlášení k odběru

Nenechte si ujít nejnovější nabídky prodeje rodinných domů v Voticích.