Pronájem obchodního prostoru, Havířov - Město, Mickiewiczova, 40 m2

Mickiewiczova, Havířov, Město

8 000 Kč
/za měsíc
+ energie a služby
Získejte výhodnou HYPOTÉKU Chci hypotéku

Parametry nemovitosti

AdresaMickiewiczova, Havířov, Město
ID941223
StavbaCihlová
Stav objektuVelmi dobrý
VybavenoNe
Lokalita objektuCentrum obce
VlastnictvíOsobní
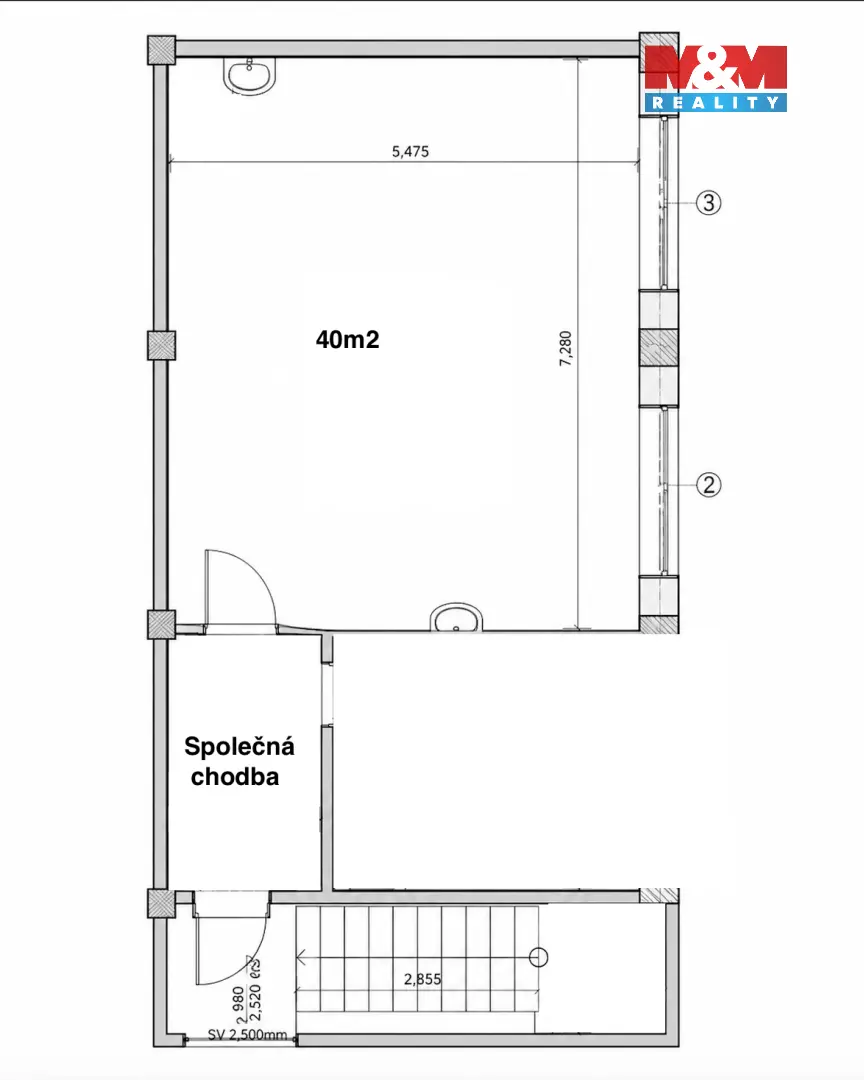
Užitná plocha40 m2

Origo partneři v Havířově

Popis

Pronájem komerčního prostoru 40 m² v centru Havířova. Jedna prostorná místnost v 1. NP cihlového domu (z 2 nadzemních podlaží). Vhodné pro obchod, kancelář nebo služby. Doposud prostor sloužil jako tatérské studio. Součástí je menší kuchyňka, dvě umyvadla, bar, a kancelářský stůl se zídkou. Strategická poloha s výbornou dostupností. Fotografie jsou upraveny o aktuální vybavení tatérky. Některé detaily nemusí odpovídat zcela přesně. Pro více informací a domluvení prohlídky kontaktujte makléře. Cena nájmu je bez služeb a energií. Provize RK ve výši jednoho nájmu.

Makléř

Máte zájem o tuto nemovistost?

Tímto, v souladu s nařízením Evropského parlamentu a Rady (EU) 2016/679, v platném znění, prohlašuji, že mi je alespoň 16 let a uděluji tak svůj souhlas se zpracováním zadaných údajů (jméno, telefon, e-mail, ip adresa) společnosti B3 Technology, s.r.o., IČ: 07330600, se sídlem Novostavby 126/23, 435 11 Lom (správce dat), za účelem předání dotazu z tohoto formuláře Vámi vybranému inzerentovi a zpětného kontaktování mé osoby. Osobní údaje bude správce zpracovávat manuálně i automaticky přímo prostřednictvím svých zaměstnanců. Informace předané tímto formulářem budou uloženy v databázi správce maximálně po dobu 10 let. Odvolání souhlasu s uložením a zpracováním poskytnutých dat lze e-mailem na info@origo-reality.cz. V případě podezření na neoprávněné použití Vámi poskytnutých údajů máte právo předat podnět k šetření Úřadu pro ochranu osobních údajů. Více informací
Chystáte se prodat nemovitost?
Pomůžeme Vám!