Prodej bytu 2+kk, Praha - Nové Město, Vojtěšská, 80 m2

Vojtěšská, Praha, Nové Město

20 900 000 Kč
/za nemovitost
Hypotéka od 93 410 Kč /měs. Chci hypotéku

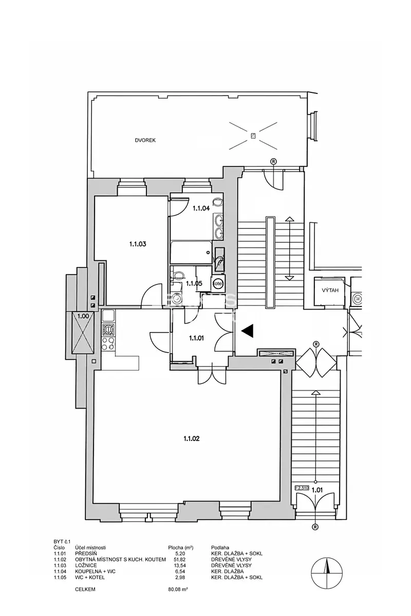
Parametry bytu

AdresaVojtěšská, Praha, Nové Město
ID533514
StavbaCihlová
Stav objektuVelmi dobrý
Patro1.
VybavenoČástečně
VlastnictvíOsobní
Užitná plocha80 m2
Třída energetické náročnostiD - Méně úsporná
Sklep
Výtah
Převod do OV

Origo partneři v Praze 1

Stěhovací služby

Výkup a prodej starého nábytku

Popis

Nabízíme k prodeji velkorysý vzdušný byt 2kk o výměře 80m2 v kompletně renovovaném historickém domě v jedné z nejžádanějších lokalit Prahy 1- Starého Města, jen pár kroků od Národního divadla i Žofína, anebo parku Kampa či Petřínských sadů.

Jde o secesní rohový dům v klidné ulici, stranou rušných turistických tras a zároveň v samém srdci historického jádra města. Tato ideální poloha dává nemovitosti mimořádný kredit ať už jej zvažujete na stálé bydlení, dočasné útočiště při pobytech v Praze, anebo cílíte na solidní pronájem a investici.


Byt je řešený jako velkorysý otevřený prostor, kde dominuje obývací pokoj a na něj navazující kuchyňský kout o celkové výměře 52m2. Obě místnosti jsou samostatně přístupné ze vstupní haly. Výška stropů 3,2 m dává prostoru neobyčejnou vzdušnost a eleganci. K dispozici je jedna samostatná ložnice orientovaná do klidného vnitrobloku a z ní přístupná koupelna se sprchovým koutem a toaletou. Druhá menší koupelna s toaletou je přístupná z haly. K bytu patří sklep o výměře 18m2 s obloukovými stropy, kde jsou ideální podmínky pro umístění vinotéky.

V bytě jsou použity dřevěné parkety, plynový kotel, špaletová dřevěná okna, kvalitní sanita, kuchyňská linka včetně spotřebičů je na vyrobena na míru.


V okolí je veškerá městská infrastruktura a občanská vybavenost, nepřeberné množství obchodů, restaurací, muzeí, historických památek a jiných kulturních příležitostí. Pouhé 3 minuty chůze od domu se nachází zastávka s řadou linek MHD s přímým spojením po celé Praze.

Makléř

Máte zájem o tento byt?

Tímto, v souladu s nařízením Evropského parlamentu a Rady (EU) 2016/679, v platném znění, prohlašuji, že mi je alespoň 16 let a uděluji tak svůj souhlas se zpracováním zadaných údajů (jméno, telefon, e-mail, ip adresa) společnosti B3 Technology, s.r.o., IČ: 07330600, se sídlem Novostavby 126/23, 435 11 Lom (správce dat), za účelem předání dotazu z tohoto formuláře Vámi vybranému inzerentovi a zpětného kontaktování mé osoby. Osobní údaje bude správce zpracovávat manuálně i automaticky přímo prostřednictvím svých zaměstnanců. Informace předané tímto formulářem budou uloženy v databázi správce maximálně po dobu 10 let. Odvolání souhlasu s uložením a zpracováním poskytnutých dat lze e-mailem na info@origo-reality.cz. V případě podezření na neoprávněné použití Vámi poskytnutých údajů máte právo předat podnět k šetření Úřadu pro ochranu osobních údajů. Více informací
Chystáte se prodat nemovitost?
Pomůžeme Vám!

Přihlášení k odběru

Nenechte si ujít nejnovější nabídky prodeje bytů 2+kk v Praze 1.