Prodej rodinného domu, Jeřmanice, 181 m2

Jeřmanice

11 537 000 Kč
/za nemovitost
včetně DPH
Hypotéka od 51 563 Kč /měs. Chci hypotéku

Parametry domu

AdresaJeřmanice
ID01528
StavbaCihlová
Stav objektuProjekt
Druh objektuSamostatný
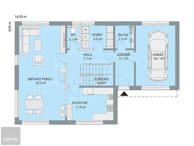
Užitná plocha181 m2
Plocha pozemku1999 m2
Třída energetické náročnostiB - Velmi úsporná
Ukazatel energetické náročnosti115 kWh/m2 za rok

Origo partneři v Jeřmanicích

Rekonstrukce

Úklidové služby

Popis

Prodám nízkoenergetický rodinný dům o dispozici 6+1+garáž s podlahovou plochou 181 m².

Tento rodinný dům představuje ideální spojení moderní architektury s vysokou užitnou hodnotou. Jeho hlavní předností je půdorysné řešení do tvaru L s integrovanou garáží. Dům zaujme čistými liniemi a rovnou střechou, které podtrhují jeho současný vzhled a nadčasový charakter. Nabízí nadstandardní prostor i pro vícečlennou rodinu. Výrazným prvkem je studio nad garáží, které může sloužit jako ateliér, pracovna nebo samostatná bytová jednotka.

Dům bude za uvedenou cenu kompletně dokončen a vybaven (včetně krbového komínu) a připraven k okamžitému nastěhování. Vnější i vnitřní provedení domu provedeme dle Vašeho individuálního výběru.

V celkové ceně nejsou zahrnuty domovní přípojky inženýrských sítí.

Uvedená cena je včetně pozemku, typové základové desky a DPH. Doba výstavby 4 - 5 měsíců od vydání stavebního povolení.

K patě pozemku jsou přivedeny tyto inženýrské sítě: rozvody NN, splašková kanalizace a vodovod.

Obec Jeřmanice se nachází jen cca 6 -10 minut od Liberce. Nabízí základní občanskou vybavenost a příjemné komunitní zázemí – k dispozici je obecní úřad, knihovna, kulturní zázemí i sportovní hřiště.

Velkou výhodou je výborná dopravní dostupnost (rychlostní komunikace i železnice) a blízkost Liberce, kde je kompletní občanská vybavenost – školy, zdravotnictví, obchody i služby. Okolí obce nabízí široké možnosti pro aktivní trávení volného času – turistika, cyklotrasy, běžky i lyžování v nedalekých horách.

Makléř

Máte zájem o tento dům?

Tímto, v souladu s nařízením Evropského parlamentu a Rady (EU) 2016/679, v platném znění, prohlašuji, že mi je alespoň 16 let a uděluji tak svůj souhlas se zpracováním zadaných údajů (jméno, telefon, e-mail, ip adresa) společnosti B3 Technology, s.r.o., IČ: 07330600, se sídlem Novostavby 126/23, 435 11 Lom (správce dat), za účelem předání dotazu z tohoto formuláře Vámi vybranému inzerentovi a zpětného kontaktování mé osoby. Osobní údaje bude správce zpracovávat manuálně i automaticky přímo prostřednictvím svých zaměstnanců. Informace předané tímto formulářem budou uloženy v databázi správce maximálně po dobu 10 let. Odvolání souhlasu s uložením a zpracováním poskytnutých dat lze e-mailem na info@origo-reality.cz. V případě podezření na neoprávněné použití Vámi poskytnutých údajů máte právo předat podnět k šetření Úřadu pro ochranu osobních údajů. Více informací
Chystáte se prodat nemovitost?
Pomůžeme Vám!

Přihlášení k odběru

Nenechte si ujít nejnovější nabídky prodeje rodinných domů v Jeřmanicích.