Prodej rodinného domu, Hradištko, 241 m2 (ID: 2036573)

Hradištko

12 245 000 Kč

včetně provize RK
Hypotéka od 54 728 Kč /měs. Chci hypotéku

Parametry domu

AdresaHradištko
ID20266
StavbaCihlová
VybavenoČástečně
Druh objektuSamostatný
VlastnictvíOsobní
Užitná plocha241 m2
Plocha pozemku1140 m2
Třída energetické náročnostiB - Velmi úsporná
Ukazatel energetické náročnosti128 kWh/m2 za rok

Origo partneři v Hradištku

Popis

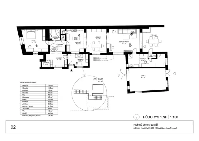
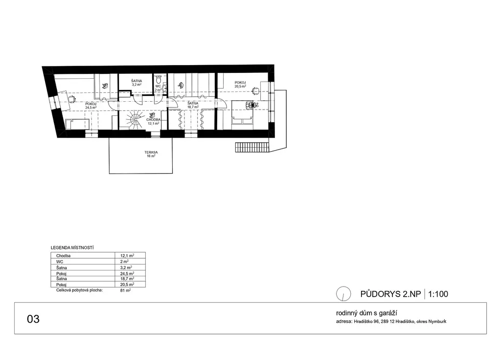
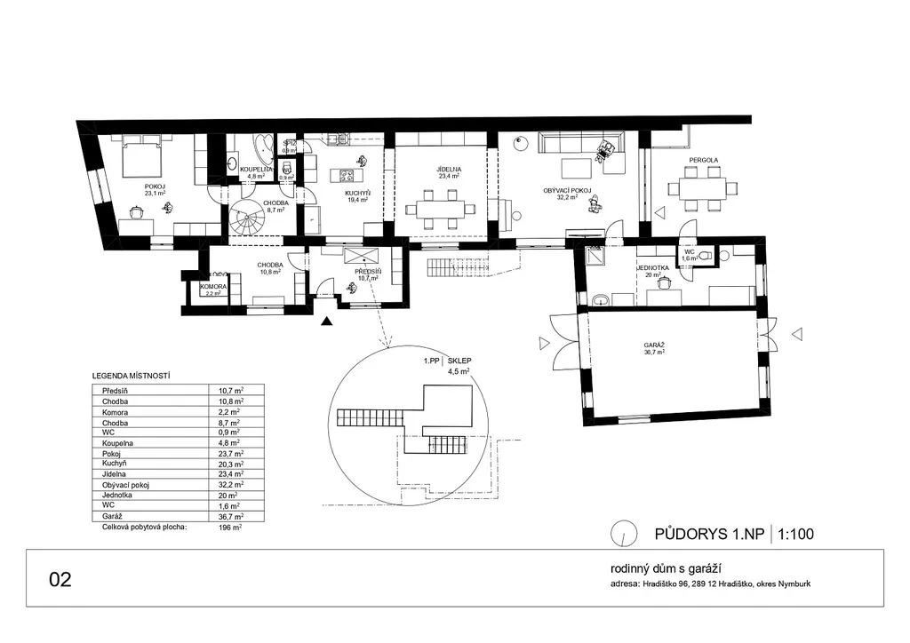
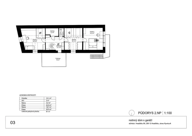
Nabízíme zprostředkování prodeje patrového rodinného domu v klidné části obce Hradištko, s dispozicí 7+1 + garáž 36 m² , stojícího na pozemku o rozloze 1140 m².

Tento cihlový dům byl zkolaudován v roce 2006 a je ve velmi dobrém stavu. Užitná plocha domu činí 241 m² + garáž pro 2 auta 36 m² + pergola. Dále je zde praktický zahradní domek a nadzemní bazén vyhřívaný tepelným čerpadlem. Součástí domu je též malý sklípek o ploše 6 m² přístupný z předsíně.

Ráda bych vyzdvihla prostornou zahradu za domem o výměře 655 m².

V přízemí domu najdete kromě chodby a předsíně ložnici, obývací pokoj s krbovými kamny, kuchyň, jídelnu, prostornou pergolu, koupelnu, WC a také samostatnou bytovou jednotku (se sprchovým koutem a WC) se samostatným vchodem. Tato jednotka je v současnosti využívána jako pracovna, ale může sloužit jako samostatná garsonka.

V prvním patře se nachází 2 pokoje, WC, malá šatna a velká průchozí šatna, která může sloužit jako další pokoj.

Vytápění domu je zajištováno tepelným čerpadlem vzduch – vzduch (v pokojích jsou klimatizační jednotky), dále je k dispozici elektrokotel – radiátory, a v obývacím pokoji krbová kamna. Dům je kompletně zateplený. Energetická třída domu je B, s ukazatelem energetické náročnosti 128 kWh/m²/rok. Pokud by si nový majitel nainstalovat FVT, energetická třída bude A.

Tento dům je ideální volbou pro ty, kteří hledají klidné bydlení v příjemné lokalitě s výhodou blízkosti lesa, řeky (Labe), množstvím cyklostezek, s možnostmi výletů, např. Kersko, vzdálené 3km.
V Hradištku je ZŠ do 5. třídy, MŠ, hospoda. Veškerá infrastruktura je pak s v nedaleké Sadské (5km). Autobusová zastávka s přímými spoji do Sadské a Nymburka je 400 m od domu.

Prohlídky jsou možné po předchozí domluvě. Pro více informací o této nemovitosti nebo sjednání prohlídky nás prosím kontaktujte nebo vyplňte níže uvedený formulář. Rádi vám též pomůžeme s vyřízením hypotéky za výhodných podmínek. Těším se na viděnou s vámi v Hradištku 96. Vaše makléřka Zdenka Chloubová

Makléř

Máte zájem o tento dům?

Tímto, v souladu s nařízením Evropského parlamentu a Rady (EU) 2016/679, v platném znění, prohlašuji, že mi je alespoň 16 let a uděluji tak svůj souhlas se zpracováním zadaných údajů (jméno, telefon, e-mail, ip adresa) společnosti B3 Technology, s.r.o., IČ: 07330600, se sídlem Novostavby 126/23, 435 11 Lom (správce dat), za účelem předání dotazu z tohoto formuláře Vámi vybranému inzerentovi a zpětného kontaktování mé osoby. Osobní údaje bude správce zpracovávat manuálně i automaticky přímo prostřednictvím svých zaměstnanců. Informace předané tímto formulářem budou uloženy v databázi správce maximálně po dobu 10 let. Odvolání souhlasu s uložením a zpracováním poskytnutých dat lze e-mailem na info@origo-reality.cz. V případě podezření na neoprávněné použití Vámi poskytnutých údajů máte právo předat podnět k šetření Úřadu pro ochranu osobních údajů. Více informací
Chystáte se prodat nemovitost?
Pomůžeme Vám!

Přihlášení k odběru

Nenechte si ujít nejnovější nabídky prodeje rodinných domů v Hradištku (okr. Nymburk).