Pronájem bytu 3+kk, Chomutov, Žižkovo náměstí, 103 m2 (ID: 2036423)

Žižkovo náměstí, Chomutov

19 990 Kč
/za měsíc
Získejte výhodnou HYPOTÉKU Chci hypotéku

Parametry bytu

AdresaŽižkovo náměstí, Chomutov
IDMR15062
StavbaSmíšená
Stav objektuPo rekonstrukci
Patro16. z 16
Typ objektuPatrový
VlastnictvíOsobní
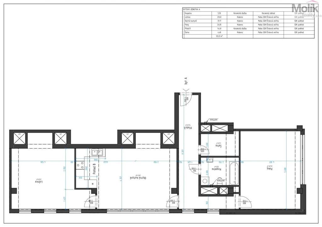
Užitná plocha103 m2
Podlahová plocha103 m2
Bezbarierový přístup

Origo partneři v Chomutově

Okna a dveře

Popis

Nabízíme k pronájmu atraktivní, nově zrekonstruovaný byt o dispozici 3+kk a celkové výměře 103 m², situovaný v centru města Chomutov.
Byty jsou k dispozici ve 13. až 16. nadzemním podlaží, přičemž výběr konkrétního patra ponecháváme na Vás. Dispozice nabízí moderní a praktické uspořádání s dostatkem prostoru pro pohodlné bydlení. Lokalita v centru města zajišťuje výbornou dostupnost veškeré občanské vybavenosti, obchodů, služeb i dopravního spojení.
V bytě od dokončení rekonstrukce nikdo nebydlel, budete tak jeho prvními nájemníky.
Po předchozí domluvě s majitelem je také možné byt za měsíční navýšení nájmu dovybavit.

Měsíční nájemné činí 19.990 Kč + zálohy na služby, elektřina bude převedena na nájemníka.
Nutno složit kauci ve výši jednoho nájmu, provizi RK ve výši jednoho nájmu a platí se vždy dopředný nájem.
K bytu je možné zajistit parkování na soukromém parkovišti před domem za 1.500 Kč+ DPH měsíčně.
Byt je volný ihned k nastěhování.

V případě zájmu o prohlídku nás neváhejte kontaktovat.

Makléř

Máte zájem o tento byt?

Tímto, v souladu s nařízením Evropského parlamentu a Rady (EU) 2016/679, v platném znění, prohlašuji, že mi je alespoň 16 let a uděluji tak svůj souhlas se zpracováním zadaných údajů (jméno, telefon, e-mail, ip adresa) společnosti B3 Technology, s.r.o., IČ: 07330600, se sídlem Novostavby 126/23, 435 11 Lom (správce dat), za účelem předání dotazu z tohoto formuláře Vámi vybranému inzerentovi a zpětného kontaktování mé osoby. Osobní údaje bude správce zpracovávat manuálně i automaticky přímo prostřednictvím svých zaměstnanců. Informace předané tímto formulářem budou uloženy v databázi správce maximálně po dobu 10 let. Odvolání souhlasu s uložením a zpracováním poskytnutých dat lze e-mailem na info@origo-reality.cz. V případě podezření na neoprávněné použití Vámi poskytnutých údajů máte právo předat podnět k šetření Úřadu pro ochranu osobních údajů. Více informací
Chystáte se prodat nemovitost?
Pomůžeme Vám!

Přihlášení k odběru

Nenechte si ujít nejnovější nabídky pronájmu bytů 3+kk v Chomutově.