Prodej rodinného domu, Křišťanovice, 192 m2 (ID: 2035632)

Křišťanovice

2 900 000 Kč
/za nemovitost
Hypotéka od 12 961 Kč /měs. Chci hypotéku

Parametry domu

AdresaKřišťanovice
ID1383
StavbaCihlová
Stav objektuVelmi dobrý
Typ objektuPřízemní
Druh objektuŘadový
Užitná plocha192 m2
Zastavěná plocha227 m2
Plocha pozemku1236 m2
Třída energetické náročnostiG - Mimořádně nehospodárná
Elektřina230V
OdpadJímka
KomunikaceAsfaltová, Zpevněná
TelekomunikaceTelefon, Internet
DopravaSilnice, Autobus
VodaVodovod
Převod do OV

Origo partneři v Křišťanovicích

Popis

Hledáte nemovitost, kde rozhodujete vy, co z ní vznikne?
Právě jste ji našli.

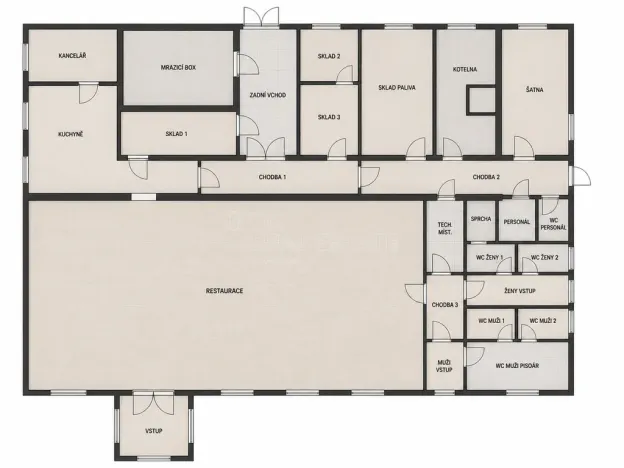
Nabízím k prodeji objekt bývalé hospůdky v obci Křišťanovice, který můžete přetvořit na rodinný dům, penzion nebo výnosný podnikatelský projekt.

✔ užitná plocha cca 192 m²
✔ pozemek 1 236 m²
✔ cihlová, suchá stavba
✔ napojení na vodu a elektřinu
✔ možnost rekolaudace na bydlení

Obrovská výhoda? Nemusíte stavět od nuly. Máte hotový základ, který vám ušetří čas i statisíce.

- Lokalita, která prodává sama:
- Obec Křišťanovice leží v krásné přírodě a jen 6 km od přehrady Slezská Harta – ideální pro rekreaci, turistiku i podnikání v cestovním ruchu.

- Tohle není běžná nemovitost.
- Tohle je příležitost pro někoho, kdo chce vydělat nebo vytvořit něco vlastního.

Zavolejte dřív než ostatní. Tyhle příležitosti z trhu rychle mizí.

Makléř

Máte zájem o tento dům?

Tímto, v souladu s nařízením Evropského parlamentu a Rady (EU) 2016/679, v platném znění, prohlašuji, že mi je alespoň 16 let a uděluji tak svůj souhlas se zpracováním zadaných údajů (jméno, telefon, e-mail, ip adresa) společnosti B3 Technology, s.r.o., IČ: 07330600, se sídlem Novostavby 126/23, 435 11 Lom (správce dat), za účelem předání dotazu z tohoto formuláře Vámi vybranému inzerentovi a zpětného kontaktování mé osoby. Osobní údaje bude správce zpracovávat manuálně i automaticky přímo prostřednictvím svých zaměstnanců. Informace předané tímto formulářem budou uloženy v databázi správce maximálně po dobu 10 let. Odvolání souhlasu s uložením a zpracováním poskytnutých dat lze e-mailem na info@origo-reality.cz. V případě podezření na neoprávněné použití Vámi poskytnutých údajů máte právo předat podnět k šetření Úřadu pro ochranu osobních údajů. Více informací
Chystáte se prodat nemovitost?
Pomůžeme Vám!

Přihlášení k odběru

Nenechte si ujít nejnovější nabídky prodeje rodinných domů v Křišťanovicích.