Prodej rodinného domu, Brno, Slatinská, 314 m2

Slatinská, Brno, Židenice

21 550 000 Kč
/za nemovitost
včetně odměny RK a právních služeb
Hypotéka od 96 315 Kč /měs. Chci hypotéku

Parametry domu

AdresaSlatinská, Brno, Židenice
IDN117588
StavbaCihlová
Stav objektuPřed rekonstrukcí
VybavenoNe
Druh objektuRohový
Lokalita objektuKlidná část obce
Užitná plocha314 m2
Plocha pozemku482 m2
Třída energetické náročnostiG - Mimořádně nehospodárná
PlynPlynovod
OdpadVeřejná kanalizace
KomunikaceAsfaltová
VodaVodovod
Garáž
Sklep
Bezbarierový přístup
Parkování

Origo partneři v Brně

Popis

Nabízíme výjimečný rodinný dům, který není jen nemovitostí, ale promyšleným projektem budoucího bydlení. Koncový řadový dům z roku 1968 stojí na úpatí Bílé hory v klidné části Židenic. Původní cihlová stavba s kamennými prvky, krbem a netradičními výškovými úrovněmi má výrazný charakter.

Současní majitelé pro něj nechali zpracovat kompletní architektonickou studii rekonstrukce, která je součástí prodeje. Kupující tak získává dům s historií i jasnou vizí moderní přestavby.

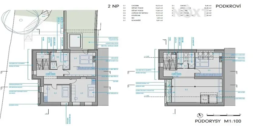
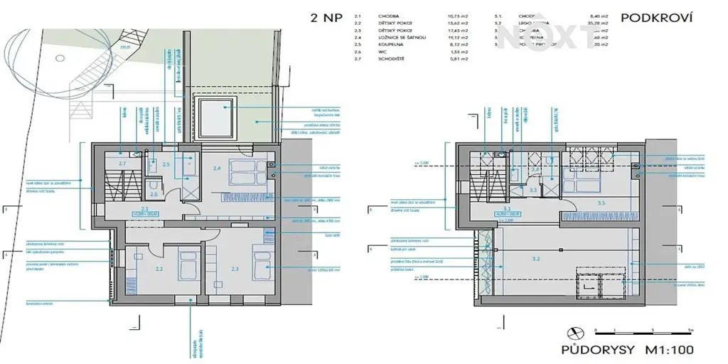
Dům má 3 nadzemní podlaží, plnohodnotný suterén, zahradu orientovanou na jih a celkovou užitnou plochu 314,2 m². Dispozice 6+2 a více nabízí široké možnosti pro rodinné i vícegenerační bydlení.

Technické parametry:
- 1.PP: 86,75 m²
- 1.NP: 86,29 m²
- 2.NP: 70,35 m²
- podkroví: 70,81 m²
- zastavěná plocha: 135,72 m²
- objem stavby: 1 430 m³
- parcely: 4570/1 a 4570/2, k.ú. Židenice
- stav: před rekonstrukcí

Suterén je navržen pro dvě garážová stání a praktické zázemí.
První patro tvoří hlavní obytná část s kuchyní, jídelnou, obývacím prostorem, krbem, kuchyňským ostrůvkem, venkovní kuchyní a přímým vstupem na dvorek.
Součástí je i samostatný salon, který lze využít jako pracovnu nebo další bytovou jednotku.
Druhé patro nabízí ložnici rodičů, dětské pokoje a koupelnu.
Podkroví přidává pokoj pro hosty a atraktivní výhled na panorama Brna.

Velkým benefitem je členitá zahrada s terasami, altánem, ohništěm, bazénkem a dostatkem soukromí.
Jižní orientace zajišťuje světlo i krásné výhledy.

Lokalita nabízí školy, školky, obchody, služby, sportoviště i rychlé spojení do centra Brna.
Blízkost Bílé hory přidává kontakt s přírodou a dlouhodobý investiční potenciál.

Proč právě tento dům?
- součástí prodeje je detailně zpracovaná architektonická studie rekonstrukce včetně stavebního povolení
- výjimečných 314 m² užitné plochy v širším centru Brna
- dvě garážová stání – v této lokalitě velmi vzácný benefit
- možnost vícegeneračního bydlení nebo kombinace bydlení a práce
- autentické prvky původní stavby v kombinaci s moderní architekturou
- zahrada s altánem, venkovní kuchyní, ohništěm a bazénkem
- výhled na Brno a bezprostřední blízkost zeleně

Pokud hledáte rodinný dům s charakterem, velkorysým prostorem a potenciálem vytvořit skutečně výjimečné bydlení,

Nemovitost je vhodná také jako dlouhodobá investice v lokalitě, kde poptávka po kvalitním rodinném bydlení stabilně roste. Pro komunikaci uvádějte evidenční číslo zakázky N117588.

Makléř

Máte zájem o tento dům?

Tímto, v souladu s nařízením Evropského parlamentu a Rady (EU) 2016/679, v platném znění, prohlašuji, že mi je alespoň 16 let a uděluji tak svůj souhlas se zpracováním zadaných údajů (jméno, telefon, e-mail, ip adresa) společnosti B3 Technology, s.r.o., IČ: 07330600, se sídlem Novostavby 126/23, 435 11 Lom (správce dat), za účelem předání dotazu z tohoto formuláře Vámi vybranému inzerentovi a zpětného kontaktování mé osoby. Osobní údaje bude správce zpracovávat manuálně i automaticky přímo prostřednictvím svých zaměstnanců. Informace předané tímto formulářem budou uloženy v databázi správce maximálně po dobu 10 let. Odvolání souhlasu s uložením a zpracováním poskytnutých dat lze e-mailem na info@origo-reality.cz. V případě podezření na neoprávněné použití Vámi poskytnutých údajů máte právo předat podnět k šetření Úřadu pro ochranu osobních údajů. Více informací
Chystáte se prodat nemovitost?
Pomůžeme Vám!

Přihlášení k odběru

Nenechte si ujít nejnovější nabídky prodeje rodinných domů v Brně.