Prodej rodinného domu, Křižínkov, 254 m2

Křižínkov

3 750 000 Kč
/za nemovitost
Hypotéka od 16 760 Kč /měs. Chci hypotéku

Parametry domu

AdresaKřižínkov
ID29636
StavbaCihlová
Stav objektuPřed rekonstrukcí
Typ objektuPatrový
Druh objektuŘadový
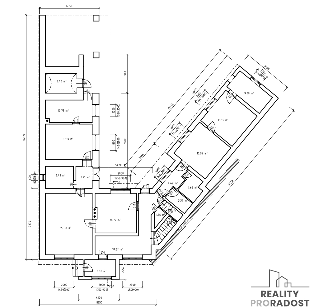
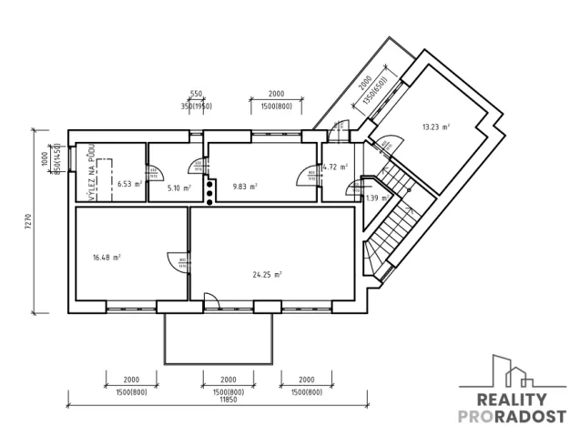
Užitná plocha254 m2
Podlahová plocha294 m2
Plocha pozemku893 m2
Třída energetické náročnostiG - Mimořádně nehospodárná
Elektřina400V
PlynPlynovod
KomunikaceAsfaltová, Štěrková
DopravaDálnice, Silnice
VodaStudna
Převod do OV

Origo partneři v Křižínkově

Popis

Velký dům na návsi v Křižínkově, který nabízí výjimečný prostor a široké možnosti využití. Nemovitost má více než 15 místností na dvou podlažích, stodolu, uzavřený dvůr a zahradu, což z ní dělá ideální řešení pro vícegenerační bydlení, kombinaci bydlení a podnikání nebo například ateliér či uměleckou dílnu. Tomu přispěje i zadní příjezd.

Dům je aktuálně ve stavu započaté rekonstrukce. Odkrytí konstrukcí však ukázalo, že stavba je suchá, cihlová a ve velmi dobrém technickém stavu. Nový majitel tak získává solidní základ a zároveň volnost přizpůsobit si dispozici i standard podle vlastních představ.

K dispozici jsou všechny důležité sítě – obecní kanalizace, plynová přípojka, dostatečně kapacitní elektrická přípojka a vlastní studna.

Velkou výhodou je poloha přímo na návsi. Na dohled je obchod, obecní úřad, hospoda i dětské a sportovní hřiště. Lokalita zároveň nabízí výbornou dostupnost – Velká Bíteš cca 7 minut, nájezd na D1 do 10 minut, Brno přibližně 30 minut.

Nemovitost je vhodná pro ty, kteří hledají prostor, flexibilitu a možnost realizovat vlastní představu o bydlení či podnikání.
Starost o financování nechejte na nás, a pokud budete potřebovat pomoc s rekonstrukcí, i to umíme zařídit.

Více informací najdete na: https://tomikoceski.cz/rd-krizinkov/
Těším se na Vás na osobní prohlídce!

Makléř

Máte zájem o tento dům?

Tímto, v souladu s nařízením Evropského parlamentu a Rady (EU) 2016/679, v platném znění, prohlašuji, že mi je alespoň 16 let a uděluji tak svůj souhlas se zpracováním zadaných údajů (jméno, telefon, e-mail, ip adresa) společnosti B3 Technology, s.r.o., IČ: 07330600, se sídlem Novostavby 126/23, 435 11 Lom (správce dat), za účelem předání dotazu z tohoto formuláře Vámi vybranému inzerentovi a zpětného kontaktování mé osoby. Osobní údaje bude správce zpracovávat manuálně i automaticky přímo prostřednictvím svých zaměstnanců. Informace předané tímto formulářem budou uloženy v databázi správce maximálně po dobu 10 let. Odvolání souhlasu s uložením a zpracováním poskytnutých dat lze e-mailem na info@origo-reality.cz. V případě podezření na neoprávněné použití Vámi poskytnutých údajů máte právo předat podnět k šetření Úřadu pro ochranu osobních údajů. Více informací
Chystáte se prodat nemovitost?
Pomůžeme Vám!

Přihlášení k odběru

Nenechte si ujít nejnovější nabídky prodeje rodinných domů v Křižínkově.