Prodej rodinného domu, České Budějovice, 114 m2 (ID: 2034598)

České Budějovice

8 250 000 Kč
/za nemovitost
Hypotéka od 36 873 Kč /měs. Chci hypotéku

Parametry domu

AdresaČeské Budějovice
StavbaCihlová
Stav objektuVe výstavbě
Druh objektuŘadový
Lokalita objektuOkraj obce
Užitná plocha114 m2
Zastavěná plocha71 m2
Plocha pozemku311 m2
Třída energetické náročnostiB - Velmi úsporná
Elektřina230V
OdpadVeřejná kanalizace
KomunikaceAsfaltová
DopravaSilnice, Autobus
VodaVodovod
Topné tělesoPodlahové vytápění
Zdroj topeníTepelné čerpadlo
Zdroj teplé vodyTepelné čerpadlo
Parkování

Origo partneři v Českých Budějovicích

Výkup a prodej starého nábytku

Popis

Exkluzivní nabídka prodeje novostavby řadových rodinných domů v malebné obci Radošovice.
Výstavba projektu se blíží do finální fáze, v současné době se dokončují interiéry jednotlivých domů, což umožňuje novým majitelům doladit si finální podobu dle vlastních představ.
V budově je pouze pět domů, takže jde o jedinečnou příležitost pro klidné a moderní bydlení.
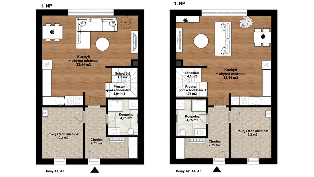
Domy mají dispozici 5+kk, zastavěnou plochu 71 m2, užitnou plochu 114,5 m2 a pozemek až 311 m2.
Domy jsou označené jako A1 – A5
Každý dům má zastavěnou plochu 71 m² a celkovou užitnou plochu 114,5 m²
Dispozice domu je 5+kk. V přízemí se nachází chodba o velikosti 8,28 m2, technická místnost 8,75 m2 se samostatným vchodem z ulice, obytná místnost s kuchyní 34,09 m2, koupelna 4,79 m2, prostor pod schodištěm 1,52 m2 a schodiště 2,8 m2.
V patře pak najdete chodbu 4,34 m2, ložnici 13,18 m2, ložnici 12,15 m2, ložnici 10,45 m2, ložnici (pokoj) 9,46 m2, koupelnu 4,74 m2 a schodiště 3,8 m2.
Celková velikost pozemku činí 202 až 311 m2 včetně zastavěné plochy, přičemž na pozemku jsou k dispozici dvě parkovací místa.

Velký důraz je kladen na energetickou úspornost domu, což se odráží v jeho energetickém štítku PENB – B, který zaručuje velmi nízké náklady na provoz.
Termín zahájení výstavby 04/2025
Termín dokončení výstavby 06/2026
Zákazník má možnost do konce výstavby zvolit konečnou podobu svého domu, včetně výběru podlahových krytin, vnitřních dveří, obkladů, dlažeb a sanity koupelny. Standardy budou zájemcům předloženy.
Do konce ledna 2026 je možná i změna vnitřních příček a dispozice.
Radošovice jsou malebnou jihočeskou obcí s rozlehlou návsí, kde se nachází kostelík a statky s malovanými štíty ve stylu selského baroka.
Obec je vzdálená pouhých 19 km od centra Českých Budějovic a je výborně dopravně dostupná hned třemi příjezdovými komunikacemi. Z obce je také výborná dostupnost linkovým autobusem s častými spoji.
Domy se nachází na okraji obce, pouze 150 m od návsi, kde se nachází zastávka autobusu, obchod, restaurace a mateřská škola. Tato lokalita nabízí ideální kombinaci klidného bydlení a dostupnosti veškeré občanské vybavenosti.

Makléř

Máte zájem o tento dům?

Tímto, v souladu s nařízením Evropského parlamentu a Rady (EU) 2016/679, v platném znění, prohlašuji, že mi je alespoň 16 let a uděluji tak svůj souhlas se zpracováním zadaných údajů (jméno, telefon, e-mail, ip adresa) společnosti B3 Technology, s.r.o., IČ: 07330600, se sídlem Novostavby 126/23, 435 11 Lom (správce dat), za účelem předání dotazu z tohoto formuláře Vámi vybranému inzerentovi a zpětného kontaktování mé osoby. Osobní údaje bude správce zpracovávat manuálně i automaticky přímo prostřednictvím svých zaměstnanců. Informace předané tímto formulářem budou uloženy v databázi správce maximálně po dobu 10 let. Odvolání souhlasu s uložením a zpracováním poskytnutých dat lze e-mailem na info@origo-reality.cz. V případě podezření na neoprávněné použití Vámi poskytnutých údajů máte právo předat podnět k šetření Úřadu pro ochranu osobních údajů. Více informací
Chystáte se prodat nemovitost?
Pomůžeme Vám!